Eladó Kereskedelmi és ipari ingatlan
Hirdetéskód: 9305907
OTP Ingatlanpont - Takács Zsuzsanna
Felújításhoz személyi kölcsönt keres? Kalkuláljon itt! →2925.00 m2
ALAPTERÜLET0
SZOBASZÁMnincs megadva
ÉPÍTÉSnincs megadva
FŰTÉS- CSOK igénybe vehető nem
- Tetőtér beépíthető nem
- Építés éve 1960
- Klíma nem
- Szigetelt nem
A+++
A++
A+
A
B
C
D
E
F
G
H
I
Az ingatlan leírása
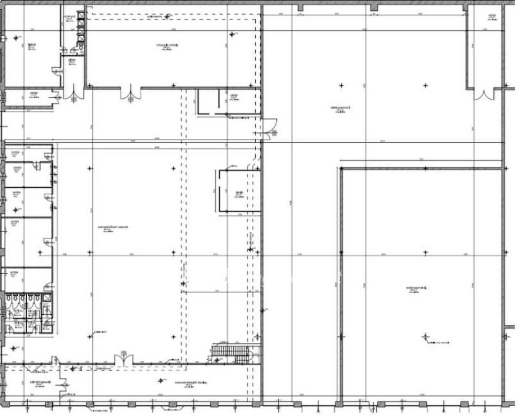
Eladásra kínálunk Csepelen XXI. kerületben a Csepel Művek területén 3061 nm-es telken elhelyezkedő 2925 négyzetméteres raktárt. Belmagassága átlagosan 10 méter.
Ipari, 3,5m x 4m-es kapukkal rendelkezik, melyek lehetővé teszik a rakodást és behajtást a teherautók számára.
Az épület a WM Művek területén található, amely személy- és tehergépjárművel a csepeli gerincúton közelíthető meg, a rendkívül jó tömegközlekedés pedig a H7 HÉV-nek és számos buszjáratnak köszönhető. Az ipartelep saját belső úthálózata, nagy közműkapacitása és hűtött raktárai komoly forgalmat lebonyolító vállalatok működését is képesek támogatni, ám variálható belső kialakítási lehetőségei közép- és egyéni vállalatok számára is ideálissá teszik. Raktárakat és csarnok kínálunk 150 nm-től akár több ezer nm-ig. Területei ideálisak logisztikai és gyártó tevékenységhez is, amelyekhez irodai háttérelhelyezést is tudunk biztosítani korszerű, légkondicionált irodákban. Kiváló tömegközlekedés, Csepeli gerincút közvetlen kapcsolattal, Akár daruzott és nagy belmagasságú csarnokok, Rugalmasan alakítható belső területek, Kerítéssel körbekerített, kamerarendszerrel ellátott telep, Díjmentes parkolóövezet, Saját vizesblokk, Raktárterület, Kamerarendszer, Egyedi fogyasztásmérők, Ipari kapu, Ipari áram, Betonaljzat. A megadott ár nettó + 27 % ÁFA fizetendő. Az OTP Ingatlanpont, mint egyetlen közvetlen banki hátterű ingatlanközvetítő társaság teljes körű ügyintézéssel áll az eladók és a vevők rendelkezésére! A kínálatunkból választott ingatlan finanszírozásához minősített fogyasztóbarát, piaci és kedvezményes hitel- és lízingkonstrukciókat kínálunk (lakásvásárlási hitel, CSOK plusz, szabad felhasználású hitel, babaváró hitel, céges hitelek, pályázatok). Az adásvételi szerződés megkötéséhez igény szerint megbízható ügyvédi közreműködést biztosítunk, és segítséget nyújtunk az adásvételhez kapcsolódó egyéb ügyek intézéséhez. Ha az új ingatlana megvásárlásához a jelenlegi ingatlanát el kell adnia, abban is szívesen segítünk.
M321604
Ipari, 3,5m x 4m-es kapukkal rendelkezik, melyek lehetővé teszik a rakodást és behajtást a teherautók számára.
Az épület a WM Művek területén található, amely személy- és tehergépjárművel a csepeli gerincúton közelíthető meg, a rendkívül jó tömegközlekedés pedig a H7 HÉV-nek és számos buszjáratnak köszönhető. Az ipartelep saját belső úthálózata, nagy közműkapacitása és hűtött raktárai komoly forgalmat lebonyolító vállalatok működését is képesek támogatni, ám variálható belső kialakítási lehetőségei közép- és egyéni vállalatok számára is ideálissá teszik. Raktárakat és csarnok kínálunk 150 nm-től akár több ezer nm-ig. Területei ideálisak logisztikai és gyártó tevékenységhez is, amelyekhez irodai háttérelhelyezést is tudunk biztosítani korszerű, légkondicionált irodákban. Kiváló tömegközlekedés, Csepeli gerincút közvetlen kapcsolattal, Akár daruzott és nagy belmagasságú csarnokok, Rugalmasan alakítható belső területek, Kerítéssel körbekerített, kamerarendszerrel ellátott telep, Díjmentes parkolóövezet, Saját vizesblokk, Raktárterület, Kamerarendszer, Egyedi fogyasztásmérők, Ipari kapu, Ipari áram, Betonaljzat. A megadott ár nettó + 27 % ÁFA fizetendő. Az OTP Ingatlanpont, mint egyetlen közvetlen banki hátterű ingatlanközvetítő társaság teljes körű ügyintézéssel áll az eladók és a vevők rendelkezésére! A kínálatunkból választott ingatlan finanszírozásához minősített fogyasztóbarát, piaci és kedvezményes hitel- és lízingkonstrukciókat kínálunk (lakásvásárlási hitel, CSOK plusz, szabad felhasználású hitel, babaváró hitel, céges hitelek, pályázatok). Az adásvételi szerződés megkötéséhez igény szerint megbízható ügyvédi közreműködést biztosítunk, és segítséget nyújtunk az adásvételhez kapcsolódó egyéb ügyek intézéséhez. Ha az új ingatlana megvásárlásához a jelenlegi ingatlanát el kell adnia, abban is szívesen segítünk.
M321604