Eladó Kereskedelmi és ipari ingatlan
Hirdetéskód: 9281430
Domus Plusz Partner Kft. (OC)
Felújításhoz személyi kölcsönt keres? Kalkuláljon itt! →1230.00 m2
ALAPTERÜLET0
SZOBASZÁMnincs megadva
ÉPÍTÉSnincs megadva
FŰTÉS- CSOK igénybe vehető nem
- Tetőtér beépíthető nem
- Építés éve 1975
- Klíma nem
- Szigetelt nem
A+++
A++
A+
A
B
C
D
E
F
G
H
I
Az ingatlan leírása
XX. kerület központjában, forgalmas utcáról nyíló, Önálló Épület Eladó.
Telek mérete: 1179nm
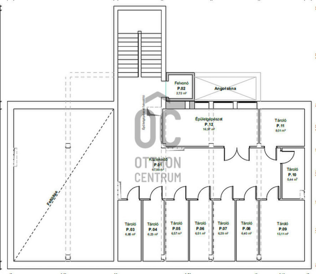
Épület: pince szint, földszint + 2 emelet + tetőtér
Pince hasznos mérete: 152nm
Földszint hasznos mérete: 218nm
I. és II. emelet hasznos mérete: 235nm
Tetőtér hasznos mérete: 187nm
Lépcsőház mérete ezekben nincs benne
Hátsó melléképület mérete: 198nm
Hasznosítható: 10 lakásos Társasház kocsi beállókkal, Intézmény épület, Szálloda, Iroda, Oktatási Intézmény, Iskola, Óvoda
Hasznosítási javaslat: Társasház, garázzsal, tárolókkal - Építési osztály 9-11 lakásra ad engedélyt
Műszaki jellemzők: száraz masszív pince, megerősített alapozás, tégla falak: épület váza rendben van, tégláig kell csak visszabontani
Ipari árammal is el van látva
Tulajdoni lap szerinti besorolás: Kivett Tanműhely, Udvar
Cég a tulajdonos, az ár nettó ár, fordított áfás
Villany, víz, gáz, csatorna kiépítve
Építési övezet: Vt-H/Ln3
Üres, már nem működik benne semmi, felújítandó az állapot
Lokáció tökéletes, közelben Iskola, Óvoda, Bevásárlási lehetőségek, tömegközlekedés szempontjából is ideális, számtalan busz és villamos megálló van a közelben, megközelíthető bármelyik kerület
Telek mérete: 1179nm
Épület: pince szint, földszint + 2 emelet + tetőtér
Pince hasznos mérete: 152nm
Földszint hasznos mérete: 218nm
I. és II. emelet hasznos mérete: 235nm
Tetőtér hasznos mérete: 187nm
Lépcsőház mérete ezekben nincs benne
Hátsó melléképület mérete: 198nm
Hasznosítható: 10 lakásos Társasház kocsi beállókkal, Intézmény épület, Szálloda, Iroda, Oktatási Intézmény, Iskola, Óvoda
Hasznosítási javaslat: Társasház, garázzsal, tárolókkal - Építési osztály 9-11 lakásra ad engedélyt
Műszaki jellemzők: száraz masszív pince, megerősített alapozás, tégla falak: épület váza rendben van, tégláig kell csak visszabontani
Ipari árammal is el van látva
Tulajdoni lap szerinti besorolás: Kivett Tanműhely, Udvar
Cég a tulajdonos, az ár nettó ár, fordított áfás
Villany, víz, gáz, csatorna kiépítve
Építési övezet: Vt-H/Ln3
Üres, már nem működik benne semmi, felújítandó az állapot
Lokáció tökéletes, közelben Iskola, Óvoda, Bevásárlási lehetőségek, tömegközlekedés szempontjából is ideális, számtalan busz és villamos megálló van a közelben, megközelíthető bármelyik kerület