Eladó Kereskedelmi és ipari ingatlan
Hirdetéskód: 9281042
Szi-We Otthona Kft.
Felújításhoz személyi kölcsönt keres? Kalkuláljon itt! →511.00 m2
ALAPTERÜLET0
SZOBASZÁMnincs megadva
ÉPÍTÉSnincs megadva
FŰTÉS- CSOK igénybe vehető nem
- Tetőtér beépíthető nem
- Építés éve 2001
- Klíma nem
- Szigetelt nem
A+++
A++
A+
A
B
C
D
E
F
G
H
I
Az ingatlan leírása
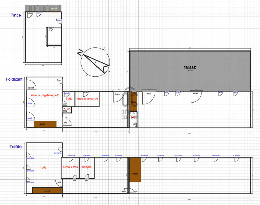
Kispest frekventált részén eladó egy sokoldalúan hasznosítható üzleti ingatlan, jó megközelíthetőséggel, utcafronti elhelyezkedéssel. A 545 m²-es telken egy 238 m² alapterületű, háromszintes (pince + földszint + tetőtér), jelenleg is üzletként és raktárként funkcionáló épület valamint egy 134m²-es terasz található.
A födszinten egy utcafronti üzlettér, egy kisméretű irodai szoba, egy dolgozói öltöző zuhanyzókkal, illetve két nagy alapterületű műhely/raktár kapott helyet, több bejárattal és kapuval.
A félnyeregtetős, 3,5 m csúcsmagasságú beépített tetőtéren egy nagyobb irodai helyiség, egy fürdőszoba, egy konyha, illetve üzemi funkciókra alkalmas tér található.
Az épület alatt egy 2,5 m belmagasságú pince biztosít extra raktározási lehetőséget.
A 134 m²-es terasz (fedett udvari rész) alkalmas pakolásra, tárolásra vagy kültéri munkavégzésre.
Az aszfaltozott udvarnak köszönhetően az ingatlan alkalmas kisebb méretű teherautók fogadására és rakodására is.
Ideális lehet:
kereskedelmi tevékenységre
bemutatóterem + műhely kombinációra
szerviznek, üzemnek
központi irodának raktárral
webáruházas logisztikai bázisnak
oktatóközpontnak
egészségügyi központnak
sportközpontnak
Jó lokáció, rugalmasan alakítható terek, komplex üzleti működésre optimalizált kialakítás.
Beépíthetőség: 60% maximális beépíthetőség.
Szintterületi mutató: Maximum 1,9 m²/m².
Maximális építménymagasság: 10,5 m.
A födszinten egy utcafronti üzlettér, egy kisméretű irodai szoba, egy dolgozói öltöző zuhanyzókkal, illetve két nagy alapterületű műhely/raktár kapott helyet, több bejárattal és kapuval.
A félnyeregtetős, 3,5 m csúcsmagasságú beépített tetőtéren egy nagyobb irodai helyiség, egy fürdőszoba, egy konyha, illetve üzemi funkciókra alkalmas tér található.
Az épület alatt egy 2,5 m belmagasságú pince biztosít extra raktározási lehetőséget.
A 134 m²-es terasz (fedett udvari rész) alkalmas pakolásra, tárolásra vagy kültéri munkavégzésre.
Az aszfaltozott udvarnak köszönhetően az ingatlan alkalmas kisebb méretű teherautók fogadására és rakodására is.
Ideális lehet:
kereskedelmi tevékenységre
bemutatóterem + műhely kombinációra
szerviznek, üzemnek
központi irodának raktárral
webáruházas logisztikai bázisnak
oktatóközpontnak
egészségügyi központnak
sportközpontnak
Jó lokáció, rugalmasan alakítható terek, komplex üzleti működésre optimalizált kialakítás.
Beépíthetőség: 60% maximális beépíthetőség.
Szintterületi mutató: Maximum 1,9 m²/m².
Maximális építménymagasság: 10,5 m.