Eladó Kereskedelmi és ipari ingatlan
Hirdetéskód: 9294014
OTP Ingatlanpont - Takács Zsuzsanna
Felújításhoz személyi kölcsönt keres? Kalkuláljon itt! →675.00 m2
ALAPTERÜLET0
SZOBASZÁMnincs megadva
ÉPÍTÉSnincs megadva
FŰTÉS- CSOK igénybe vehető nem
- Tetőtér beépíthető nem
- Építés éve 2007
- Klíma nem
- Szigetelt nem
A+++
A++
A+
A
B
C
D
E
F
G
H
I
Az ingatlan leírása
Eladásra kínálunk Budapest XIII. kerület, Forgách utcában, jól megközelíthető, központi helyen egy 750 nm alapterületű, önálló helyrajzi számon nyilvántartott ingatlant.
Az utcafrontról a teljesen felszerelt, működő, 4 állásos autószerelő műhelybe 2 szekcionált garázskapun lehet bejutni. Ebből nyílnak a hozzá tartozó kiszolgáló helyiségek: öltöző, zuhanyozó és WC.
A műhelyhez kapcsolódik továbbá egy iroda, mely a kapubejáró felől is megközelíthető.
A hátsó udvarban további 2 állásos lakatosműhely van kialakítva csempézett szerelőaknákkal. Ehhez a csarnokhoz is kapcsolódnak vizes helyiségek.
Az udvarban fedett kocsibeálló, alatta egy további szerelőakna, valamint egy 16 000 l űrtartalmú, süllyesztett esővíztároló került kialakításra.
Az épület 2007-ben épült tégla falazattal, 15 cm-es hőszigeteléssel, műanyag nyílászárókkal.
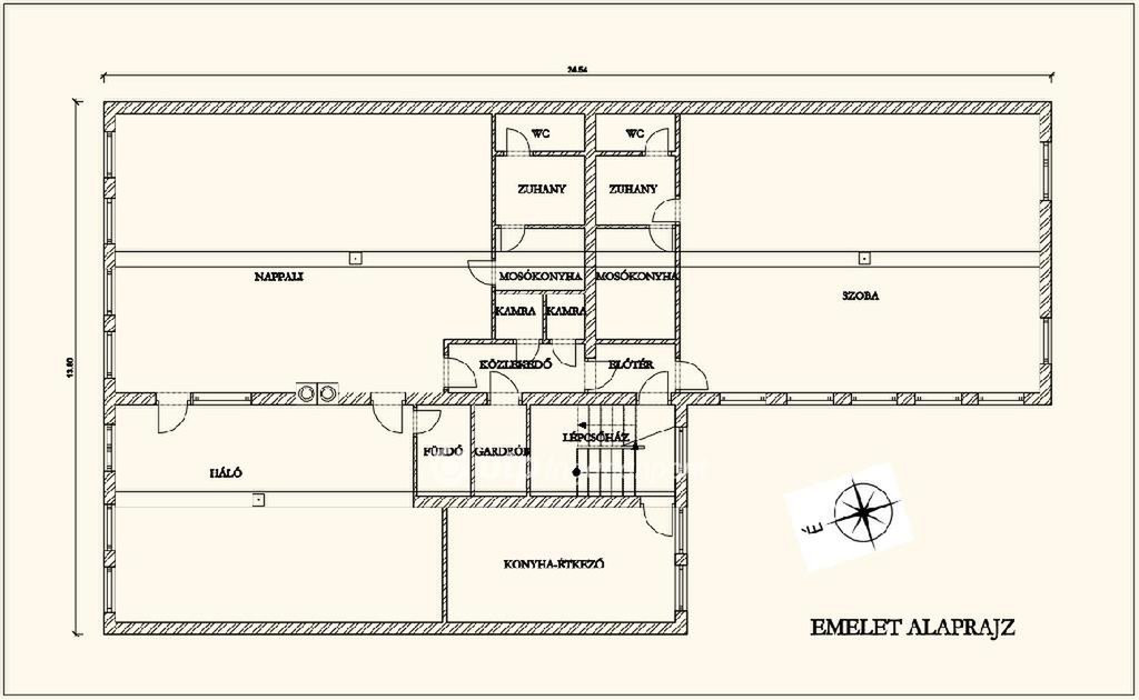
A műhely felett 2 lakószint található. A lakóterek a lépcsőházból nyíló külön bejáratokkal jól elkülönülnek, hatalmas helyiségekkel rendelkeznek. A sok ablaknak köszönhetően a szobák világosak, az udvari oldalon egy kisebb erkély is kialakításra került.
Az épület belsejében találhatóak a vizes blokkok. Az ingatlanban összesen 4 db zuhanyozós, 1 db káddal felszerelt fürdő, és 5 db WC kapott helyet.
Lakáscélra jelenleg a konyhát, két szobát, fürdőt, gardróbot használja a tulajdonos. Az épület többi része nincs belakva.
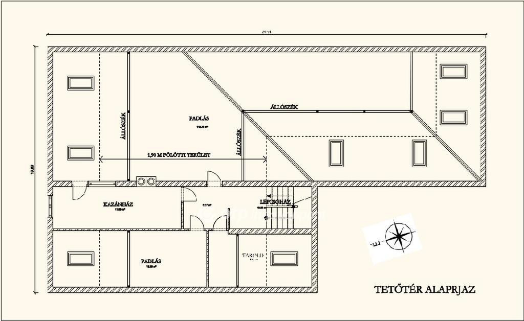
A tetőtérben található a kazán és a melegvíz tartály, egy tároló, és két hatalmas tetőtéri rész, mely igény szerint szobákra, akár önálló lakásokra tagolható.
A fűtésről gázkazán gondoskodik radiátoros hőleadókkal, illetve a légkondicionáló készülékek mind fűtésre, mind hűtésre alkalmasak.
A személy- és vagyonvédelem érdekében az épület távfelügyelethez bekötött riasztórendszerrel, füstérzékelőkkel és kamerarendszerrel van felszerelve.
Az ingatlan a helyi építési szabályzat (XIII. Kerületi HÉSZ) hatálya alá tartozik, jellemzően városias, intenzív beépítésű területen, közel a Váci úti irodafolyosóhoz.
Övezeti típus: Általában vegyes (V) vagy lakó (L) övezet, figyelembe véve a környék irodaházait és lakóépületeit.
Beépítési mód: A környező telkeken a zártsorú vagy szabadonálló beépítés jellemző.
Intenzitás: Magasabb beépíthetőségi százalék és építménymagasság engedélyezett, mint a külsőbb kerületrészeken.
Az épület hatalmas terei, és a gépészeti kialakítás rengeteg kiaknázatlan lehetőséget rejtenek: akár további vállalkozási célokra: iroda, szolgáltatás stb., akár 4-5 db önálló lakás kialakítására teszik alkalmassá.
M321468
Az OTP Ingatlanpont, mint egyetlen közvetlen banki hátterű ingatlanközvetítő társaság teljes körű ügyintézéssel áll az eladók és a vevők rendelkezésére! A kínálatunkból választott ingatlan finanszírozásához minősített fogyasztóbarát, piaci és kedvezményes hitel- és lízingkonstrukciókat kínálunk (lakásvásárlási hitel, CSOK plusz, szabad felhasználású hitel, babaváró hitel, céges hitelek, pályázatok, amennyiben az ügyfél és az ingatlan megfelel a feltételeknek). Az adásvételi szerződés megkötéséhez igény szerint megbízható ügyvédi közreműködést biztosítunk, és segítséget nyújtunk az adásvételhez kapcsolódó egyéb ügyek intézéséhez.
Ha az új ingatlana megvásárlásához a jelenlegi ingatlanát el kell adnia, abban is szívesen segítünk.
Az utcafrontról a teljesen felszerelt, működő, 4 állásos autószerelő műhelybe 2 szekcionált garázskapun lehet bejutni. Ebből nyílnak a hozzá tartozó kiszolgáló helyiségek: öltöző, zuhanyozó és WC.
A műhelyhez kapcsolódik továbbá egy iroda, mely a kapubejáró felől is megközelíthető.
A hátsó udvarban további 2 állásos lakatosműhely van kialakítva csempézett szerelőaknákkal. Ehhez a csarnokhoz is kapcsolódnak vizes helyiségek.
Az udvarban fedett kocsibeálló, alatta egy további szerelőakna, valamint egy 16 000 l űrtartalmú, süllyesztett esővíztároló került kialakításra.
Az épület 2007-ben épült tégla falazattal, 15 cm-es hőszigeteléssel, műanyag nyílászárókkal.
A műhely felett 2 lakószint található. A lakóterek a lépcsőházból nyíló külön bejáratokkal jól elkülönülnek, hatalmas helyiségekkel rendelkeznek. A sok ablaknak köszönhetően a szobák világosak, az udvari oldalon egy kisebb erkély is kialakításra került.
Az épület belsejében találhatóak a vizes blokkok. Az ingatlanban összesen 4 db zuhanyozós, 1 db káddal felszerelt fürdő, és 5 db WC kapott helyet.
Lakáscélra jelenleg a konyhát, két szobát, fürdőt, gardróbot használja a tulajdonos. Az épület többi része nincs belakva.
A tetőtérben található a kazán és a melegvíz tartály, egy tároló, és két hatalmas tetőtéri rész, mely igény szerint szobákra, akár önálló lakásokra tagolható.
A fűtésről gázkazán gondoskodik radiátoros hőleadókkal, illetve a légkondicionáló készülékek mind fűtésre, mind hűtésre alkalmasak.
A személy- és vagyonvédelem érdekében az épület távfelügyelethez bekötött riasztórendszerrel, füstérzékelőkkel és kamerarendszerrel van felszerelve.
Az ingatlan a helyi építési szabályzat (XIII. Kerületi HÉSZ) hatálya alá tartozik, jellemzően városias, intenzív beépítésű területen, közel a Váci úti irodafolyosóhoz.
Övezeti típus: Általában vegyes (V) vagy lakó (L) övezet, figyelembe véve a környék irodaházait és lakóépületeit.
Beépítési mód: A környező telkeken a zártsorú vagy szabadonálló beépítés jellemző.
Intenzitás: Magasabb beépíthetőségi százalék és építménymagasság engedélyezett, mint a külsőbb kerületrészeken.
Az épület hatalmas terei, és a gépészeti kialakítás rengeteg kiaknázatlan lehetőséget rejtenek: akár további vállalkozási célokra: iroda, szolgáltatás stb., akár 4-5 db önálló lakás kialakítására teszik alkalmassá.
M321468
Az OTP Ingatlanpont, mint egyetlen közvetlen banki hátterű ingatlanközvetítő társaság teljes körű ügyintézéssel áll az eladók és a vevők rendelkezésére! A kínálatunkból választott ingatlan finanszírozásához minősített fogyasztóbarát, piaci és kedvezményes hitel- és lízingkonstrukciókat kínálunk (lakásvásárlási hitel, CSOK plusz, szabad felhasználású hitel, babaváró hitel, céges hitelek, pályázatok, amennyiben az ügyfél és az ingatlan megfelel a feltételeknek). Az adásvételi szerződés megkötéséhez igény szerint megbízható ügyvédi közreműködést biztosítunk, és segítséget nyújtunk az adásvételhez kapcsolódó egyéb ügyek intézéséhez.
Ha az új ingatlana megvásárlásához a jelenlegi ingatlanát el kell adnia, abban is szívesen segítünk.