Eladó Kereskedelmi és ipari ingatlan
Hirdetéskód: 9325207
GDN Ingatlanhálózat - AllStars
Felújításhoz személyi kölcsönt keres? Kalkuláljon itt! →96.00 m2
ALAPTERÜLET4
SZOBASZÁMnincs megadva
ÉPÍTÉSGáz (cirkó)
FŰTÉS- CSOK igénybe vehető nem
- Tetőtér beépíthető nem
- Fűtés Gáz (cirkó)
- Klíma nem
- Szigetelt nem
A+++
A++
A+
A
B
C
D
E
F
G
H
I
Az ingatlan leírása
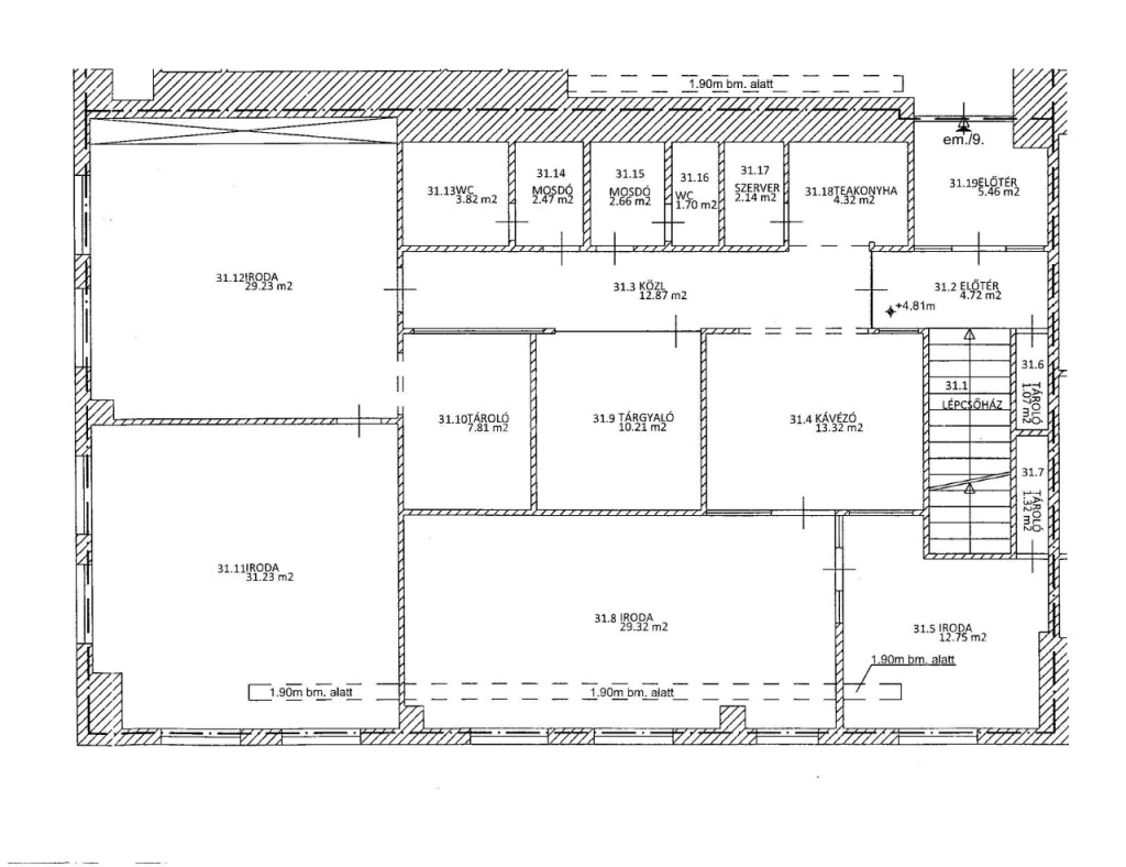
Eladó 1/2 tulajdonrész – felújított iroda Albertfalván, kiváló közlekedéssel
Budapest XI. kerületében, Albertfalván, a Budafoki út közelében, ipari környezetben kínálunk megvételre egy 192 m²-es, felújított irodahelyiség 1/2 tulajdonjogát.
Az ingatlan rendezett jogi háttérrel rendelkezik (társasház, önálló helyrajzi számú irodák, saját mérőórák), délkeleti tájolású, és saját parkolóval is ellátott.
Főbb jellemzők:
- Teljes körű felújítás: 2020
(vezetékek, burkolatok, nyílászárók)
- Beépített konyha
- Minden helyiség klimatizált
- Riasztórendszer
- Kiváló megközelíthetőség személy- és teherautóval egyaránt
Közlekedés:
- M0 körgyűrű: ~2 km
- 6-os főút: ~1 km
- M1–M7 bevezető szakasz: ~5 km
- Rákóczi híd: ~3 km
- Repülőtér: ~50 perc autóval
- 33 és 133E buszok megállója az épület előtt
- További busz- és villamosjáratok: 5–10 perc séta
Az ingatlan elhelyezkedése és infrastruktúrája ideális választás lehet irodai, logisztikai vagy szolgáltatási tevékenységhez.
További információért vagy megtekintés egyeztetéséhez keressen bizalommal! ...TOVÁBBI, TÖBBEZRES INGATLAN KÍNÁLAT: - GDN azonosító: 395201
Budapest XI. kerületében, Albertfalván, a Budafoki út közelében, ipari környezetben kínálunk megvételre egy 192 m²-es, felújított irodahelyiség 1/2 tulajdonjogát.
Az ingatlan rendezett jogi háttérrel rendelkezik (társasház, önálló helyrajzi számú irodák, saját mérőórák), délkeleti tájolású, és saját parkolóval is ellátott.
Főbb jellemzők:
- Teljes körű felújítás: 2020
(vezetékek, burkolatok, nyílászárók)
- Beépített konyha
- Minden helyiség klimatizált
- Riasztórendszer
- Kiváló megközelíthetőség személy- és teherautóval egyaránt
Közlekedés:
- M0 körgyűrű: ~2 km
- 6-os főút: ~1 km
- M1–M7 bevezető szakasz: ~5 km
- Rákóczi híd: ~3 km
- Repülőtér: ~50 perc autóval
- 33 és 133E buszok megállója az épület előtt
- További busz- és villamosjáratok: 5–10 perc séta
Az ingatlan elhelyezkedése és infrastruktúrája ideális választás lehet irodai, logisztikai vagy szolgáltatási tevékenységhez.
További információért vagy megtekintés egyeztetéséhez keressen bizalommal! ...TOVÁBBI, TÖBBEZRES INGATLAN KÍNÁLAT: - GDN azonosító: 395201