Eladó Kereskedelmi és ipari ingatlan
Hirdetéskód: 9197285
GDN Ingatlanhálózat - AllStars
99 m2
ALAPTERÜLET0
SZOBASZÁMnincs megadva
ÉPÍTÉSEgyéb fűtés
FŰTÉS- CSOK igénybe vehető nem
- Tetőtér beépíthető nem
- Fűtés Egyéb fűtés
- Klíma nem
- Szigetelt nem
A+++
A++
A+
A
B
C
D
E
F
G
H
I
Az ingatlan leírása
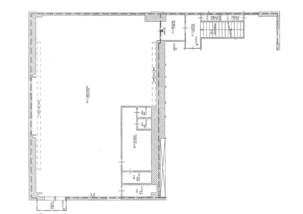
Eladó felújított, 199 m²-es táncterem Albertfalván, saját parkolóval!
Budapest XI. kerületében, Albertfalva frekventált részén, a Budafoki út közelében, ipari környezetben eladó egy 199 m²-es, 2024-ben teljeskörűen felújított táncterem 1/2 tulajdoni hányada.
Az ingatlan rendezett jogi hátterű, saját parkolóval és kiváló közlekedési kapcsolatokkal rendelkezik!
Főbb jellemzők
Alapterület: 199 m²
Tulajdoni hányad: 1/2
Felújítás éve: 2024 (új elektromos és vízvezeték-hálózat, burkolatok, nyílászárók, mosdó, tusoló, öltöző)
Felszereltség: riasztó, klíma
Tájolás: északnyugati
Parkolás: saját parkolóhely az épület előtt
Jogi helyzet: rendezett
Közlekedés és megközelíthetőség
Közlekedési szempontból kiemelkedő elhelyezkedés:
M0-s körgyűrű csomópont: 2 km
6-os főút: 1 km
M1–M7 bevezető: 5 km
Rákóczi híd budai hídfője: 3 km
Repülőtér: kb. 50 perc autóval
Tömegközlekedés: 33-as és 133E buszmegálló közvetlenül az épület előtt, további busz- és villamosjáratok 5–10 perc sétára ...TOVÁBBI, TÖBBEZRES INGATLAN KÍNÁLAT: - GDN azonosító: 388994
Budapest XI. kerületében, Albertfalva frekventált részén, a Budafoki út közelében, ipari környezetben eladó egy 199 m²-es, 2024-ben teljeskörűen felújított táncterem 1/2 tulajdoni hányada.
Az ingatlan rendezett jogi hátterű, saját parkolóval és kiváló közlekedési kapcsolatokkal rendelkezik!
Főbb jellemzők
Alapterület: 199 m²
Tulajdoni hányad: 1/2
Felújítás éve: 2024 (új elektromos és vízvezeték-hálózat, burkolatok, nyílászárók, mosdó, tusoló, öltöző)
Felszereltség: riasztó, klíma
Tájolás: északnyugati
Parkolás: saját parkolóhely az épület előtt
Jogi helyzet: rendezett
Közlekedés és megközelíthetőség
Közlekedési szempontból kiemelkedő elhelyezkedés:
M0-s körgyűrű csomópont: 2 km
6-os főút: 1 km
M1–M7 bevezető: 5 km
Rákóczi híd budai hídfője: 3 km
Repülőtér: kb. 50 perc autóval
Tömegközlekedés: 33-as és 133E buszmegálló közvetlenül az épület előtt, további busz- és villamosjáratok 5–10 perc sétára ...TOVÁBBI, TÖBBEZRES INGATLAN KÍNÁLAT: - GDN azonosító: 388994