Eladó Kereskedelmi és ipari ingatlan
Hirdetéskód: 9196198
GDN Ingatlanhálózat - AllStars
Felújításhoz személyi kölcsönt keres? Kalkuláljon itt! →96.00 m2
ALAPTERÜLET4
SZOBASZÁMnincs megadva
ÉPÍTÉSGáz (cirkó)
FŰTÉS- CSOK igénybe vehető nem
- Tetőtér beépíthető nem
- Fűtés Gáz (cirkó)
- Klíma nem
- Szigetelt nem
A+++
A++
A+
A
B
C
D
E
F
G
H
I
Az ingatlan leírása
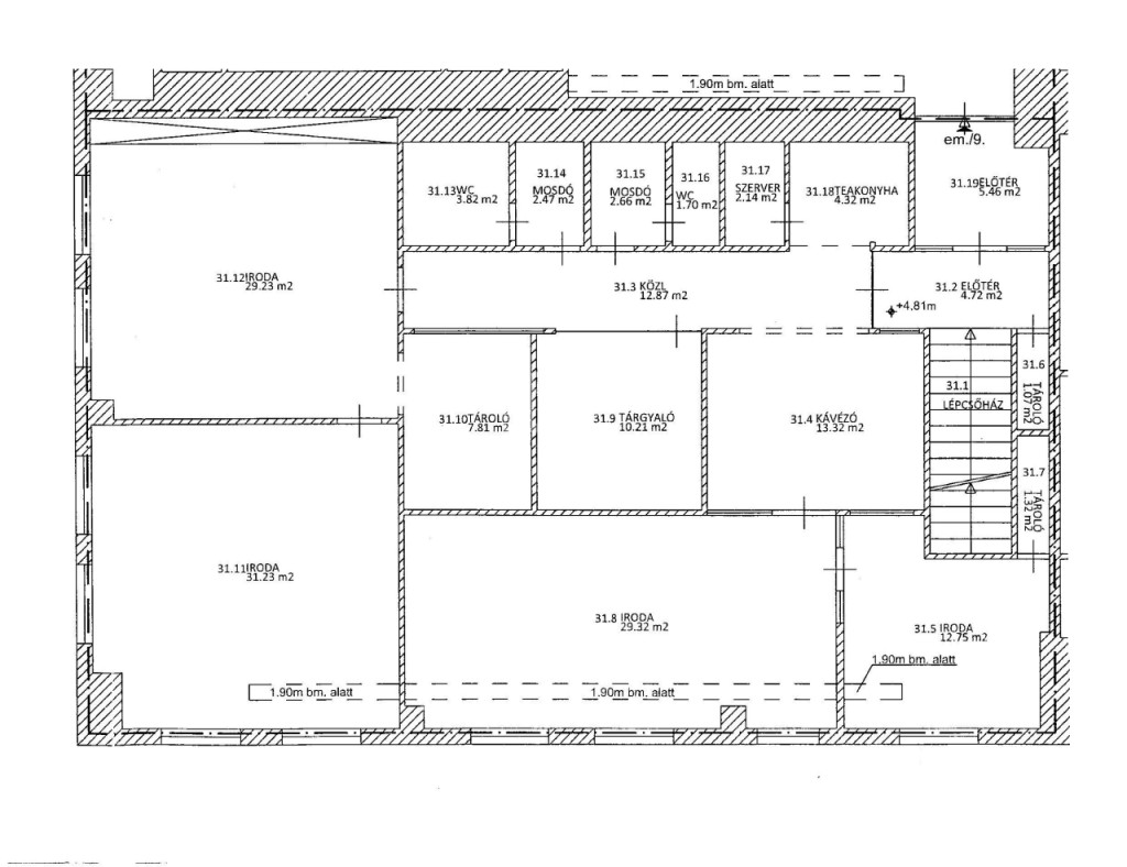
Budapest XI. kerület, Albertfalván, a budafoki út közelében, ipari területen lévő 192 m2-es felújított irodahelyiség 1/2 tulajdonjoga eladó!
Az ingatlan rendezett jogi háttérrel (társasház önálló helyrajzi számú irodákkal, saját mérők), délkeleti tájolással és saját parkolóval rendelkezik. Elsőrendű autós és teherautós közlekedési kapcsolat. 2020-ban felújításon esett át (vezetékek, burkolatok, nyílászárók, beépített konyha) riasztóval és valamennyi helyisége klímával van felszerelve. Közlekedési szempontból az iroda páratlan lehetőségeket nyújt. Az MO körgyűrű csomópontja mindössze 2 km-re, a 6-os főút 1000 méterre található, míg az M1 és M7 közös bevezető szakasza 5 km-re helyezkedik el. A Rákóczi híd budai hídfője 3 km-re van, és a repülőtér autóval 50 perc alatt elérhető. A közlekedés még egyszerűbbé válik, hiszen a 33,133E buszok az épület előtt állnak meg, míg további busz- és villamosjáratok mindössze 5-10 perces sétával elérhetők. ...TOVÁBBI, TÖBBEZRES INGATLAN KÍNÁLAT: - GDN azonosító: 388858
Az ingatlan rendezett jogi háttérrel (társasház önálló helyrajzi számú irodákkal, saját mérők), délkeleti tájolással és saját parkolóval rendelkezik. Elsőrendű autós és teherautós közlekedési kapcsolat. 2020-ban felújításon esett át (vezetékek, burkolatok, nyílászárók, beépített konyha) riasztóval és valamennyi helyisége klímával van felszerelve. Közlekedési szempontból az iroda páratlan lehetőségeket nyújt. Az MO körgyűrű csomópontja mindössze 2 km-re, a 6-os főút 1000 méterre található, míg az M1 és M7 közös bevezető szakasza 5 km-re helyezkedik el. A Rákóczi híd budai hídfője 3 km-re van, és a repülőtér autóval 50 perc alatt elérhető. A közlekedés még egyszerűbbé válik, hiszen a 33,133E buszok az épület előtt állnak meg, míg további busz- és villamosjáratok mindössze 5-10 perces sétával elérhetők. ...TOVÁBBI, TÖBBEZRES INGATLAN KÍNÁLAT: - GDN azonosító: 388858