Eladó Kereskedelmi és ipari ingatlan
Hirdetéskód: 9256714
Szi-We Otthona Kft.
212.00 m2
ALAPTERÜLET0
SZOBASZÁMnincs megadva
ÉPÍTÉSnincs megadva
FŰTÉS- CSOK igénybe vehető nem
- Tetőtér beépíthető nem
- Klíma nem
- Szigetelt nem
A+++
A++
A+
A
B
C
D
E
F
G
H
I
Az ingatlan leírása
Eladásra kínálunk egy kivételes adottságokkal rendelkező, rendkívül jól látható üzlethelyiséget az Országház és a Kossuth Lajos tér közvetlen közelében, Budapest V. kerületének egyik legfrekventáltabb részén. A környéken nap mint nap turisták tömegei fordulnak meg, a Parlament és a mindössze 300 méterre található Duna-part pedig önmagukban is kiemelt turisztikai attrakciónak számítanak. A Kossuth tér környezetében rendkívül korlátozott számban érhetők el üzlethelyiségek, így az ingatlan hasznosítása komoly piaci lehetőséget rejt magában.
Az ingatlan megközelíthetősége kiváló: 240 méteren belül elérhető a 2-es villamos ikonikus Duna-parti vonala, míg a 4-es és 6-os villamos megállói villamossal 1, gyalogosan mindössze 5 percre találhatók, gyors összeköttetést biztosítva a város számos pontja felé. További előnyt jelent a Kossuth Lajos tér közelsége, ahonnan az M2-es metróval és a 2-es villamossal is könnyedén megközelíthető az ingatlan.
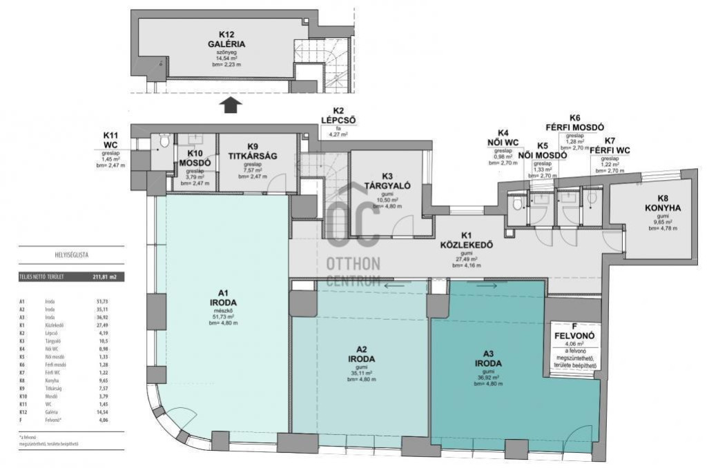
A saroképület földszintjén elhelyezkedő üzlethelyiség tulajdoni lap szerint 188 m², tényleges alapterülete azonban 212 m². Korábban irodai funkciót látott el, jelenleg üresen áll. Az ingatlan belső kialakítása rendkívül rugalmas: a társasház középső főfala teljes hosszban kiváltásra került, kizárólag tartópillérek maradtak meg. A jelenlegi tégla válaszfalak bontásával – szerkezeti beavatkozás nélkül – a teljes terület egybenyitható. Az üzlethelyiség összesen 7 utcai üvegportállal rendelkezik, sarokelhelyezkedésének köszönhetően pedig kiváló láthatóságot és figyelemfelkeltő megjelenést biztosít.
További értéknövelő tényező, hogy a közelben található a Kúria Kossuth téri épülete, amelynek felújítása jelenleg is zajlik. A munkálatok befejezését követően a környező utcák díszburkolatot kapnak, amely lehetőséget teremt vendéglátóipari terasz bérlésére is.
Az ingatlan vételára nettó ár, amelyet további ÁFA terhel. ÁFA-alany vásárló esetén a fordított ÁFA szabályai alkalmazandók, így az ÁFA megfizetése nem szükséges.
Várjuk szíves érdeklődését!
Az ingatlan megközelíthetősége kiváló: 240 méteren belül elérhető a 2-es villamos ikonikus Duna-parti vonala, míg a 4-es és 6-os villamos megállói villamossal 1, gyalogosan mindössze 5 percre találhatók, gyors összeköttetést biztosítva a város számos pontja felé. További előnyt jelent a Kossuth Lajos tér közelsége, ahonnan az M2-es metróval és a 2-es villamossal is könnyedén megközelíthető az ingatlan.
A saroképület földszintjén elhelyezkedő üzlethelyiség tulajdoni lap szerint 188 m², tényleges alapterülete azonban 212 m². Korábban irodai funkciót látott el, jelenleg üresen áll. Az ingatlan belső kialakítása rendkívül rugalmas: a társasház középső főfala teljes hosszban kiváltásra került, kizárólag tartópillérek maradtak meg. A jelenlegi tégla válaszfalak bontásával – szerkezeti beavatkozás nélkül – a teljes terület egybenyitható. Az üzlethelyiség összesen 7 utcai üvegportállal rendelkezik, sarokelhelyezkedésének köszönhetően pedig kiváló láthatóságot és figyelemfelkeltő megjelenést biztosít.
További értéknövelő tényező, hogy a közelben található a Kúria Kossuth téri épülete, amelynek felújítása jelenleg is zajlik. A munkálatok befejezését követően a környező utcák díszburkolatot kapnak, amely lehetőséget teremt vendéglátóipari terasz bérlésére is.
Az ingatlan vételára nettó ár, amelyet további ÁFA terhel. ÁFA-alany vásárló esetén a fordított ÁFA szabályai alkalmazandók, így az ÁFA megfizetése nem szükséges.
Várjuk szíves érdeklődését!