Eladó Kereskedelmi és ipari ingatlan
Hirdetéskód: 9269583

Duna House Csillaghegy

Felújításhoz személyi kölcsönt keres? Kalkuláljon itt! →
810.00 m2
ALAPTERÜLET
0
SZOBASZÁM
nincs megadva
ÉPÍTÉS
Gáz (cirkó)
FŰTÉS
  • CSOK igénybe vehető nem
  • Tetőtér beépíthető nem
  • Építés éve 1995
  • Fűtés Gáz (cirkó)
  • Klíma nem
  • Szigetelt nem
Energetikai besorolás: Nincs meghatározva
A+++
A++
A+
A
B
C
D
E
F
G
H
I

Az MBH Bank személyi kölcsön ajánlata

Fizetett hirdetés
1 millió Ft
6 évre
20 585 Ft/hó
THM: 14.5%
Részletek →
2 millió Ft
6 évre
41 169 Ft/hó
THM: 14.5%
Részletek →
3 millió Ft
6 évre
61 754 Ft/hó
THM: 14.5%
Részletek →

A tájékoztatás nem teljes körű és nem minősül ajánlattételnek.

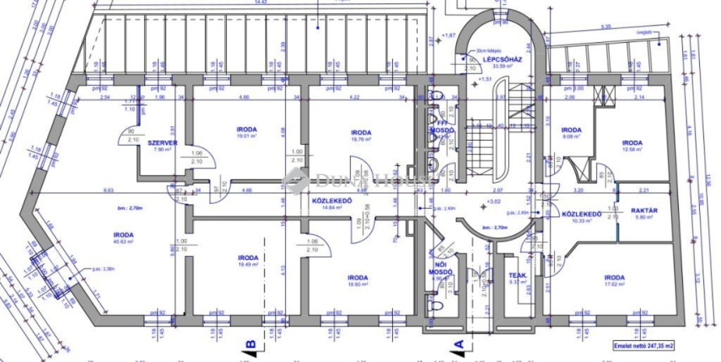
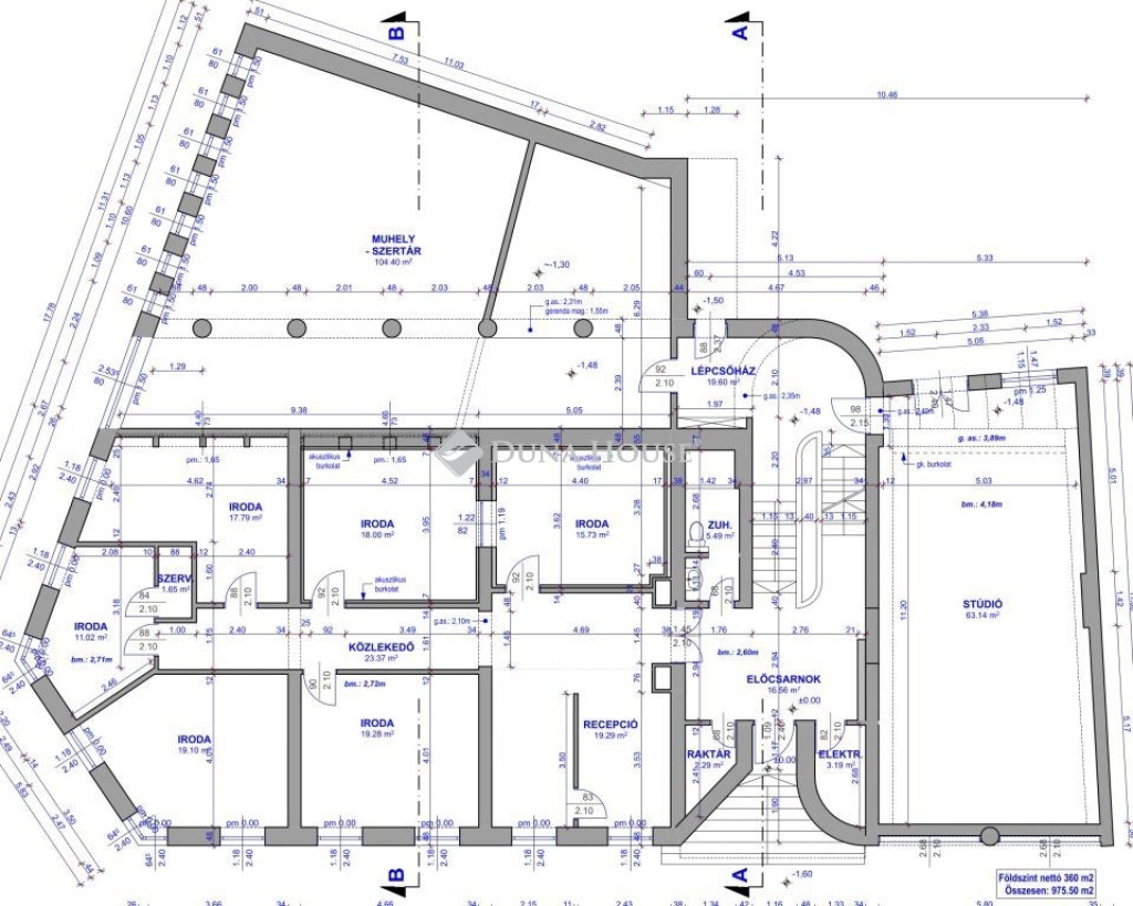
Az ingatlan leírása

Eladó irodaház frekventált lokáció mellett, a Kolosy tér és a Szépvölgyi út közelében!

A négy szintes, ÖNÁLLÓ épület tökéletesen alkalmas cégközpont, irodák, egészségügyi intézmény, klinika, rendelő számára.
A funkció váltás is lehetséges: akár lakás, szállás jellegű, kereskedelmi, szolgáltató, alapintézményi: oktatási, egészségügyi, szociális, hitéleti, kulturális, igazgatási, valamint egyéb intézményi, irodai, vendéglátó, sport, önálló parkolóház, mélygarázs létesíthető.

Az épület pinceszint + földszint + 2 emeletből áll.

A helyiségben 5 különálló vizsgáló található, amelyek egyenként kb. 15 m²-esek, valamint egy kialakított steril műtőrész és műtő előkészítő is rendelkezésre áll.


Főbb jellemzők:

-Modern kialakítás, közelmúltban történt felújítás

-műterem, moziszoba, közösségi konyha, fürdők, irodák


Az épület kiváló elhelyezkedéssel és infrastruktúrával rendelkezik, remek befektetési lehetőség!

1Ft

Térkép

Ingatlan adásvétel ügyvédi díja
600 000 Ft
a hirdetésben szereplő ár alapján
  • A vételár 0,45%-a
  • Szerződéscsomag teljeskörű képviselettel
  • Ingyenes tulajdoni lap ellenőrzés
  • Az ÁFA-t már tartalmazza
Érdekel az ajánlat →
A tájékoztatás nem teljes körű és nem minősül ajánlattételnek. Minimum díj: 150 000 Ft, maximum díj: 600 000 Ft. A díj kizárólag lakóingatlan adásvételére vonatkozik.

A hirdető elérhetősége

Duna House Csillaghegy

Cseh Klaudia
+36 20 420