Eladó Kereskedelmi és ipari ingatlan
Hirdetéskód: 9269582
Duna House Csillaghegy
810.00 m2
ALAPTERÜLET0
SZOBASZÁMnincs megadva
ÉPÍTÉSnincs megadva
FŰTÉS- CSOK igénybe vehető nem
- Tetőtér beépíthető nem
- Építés éve 1995
- Klíma nem
- Szigetelt nem
A+++
A++
A+
A
B
C
D
E
F
G
H
I
Az ingatlan leírása
Eladó irodaház frekventált lokáció mellett, a Kolosy tér és a Szépvölgyi út közelében!
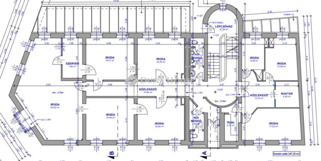
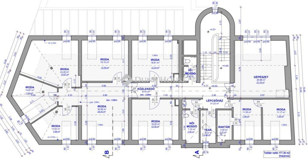
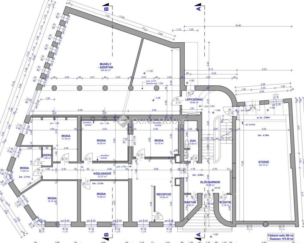
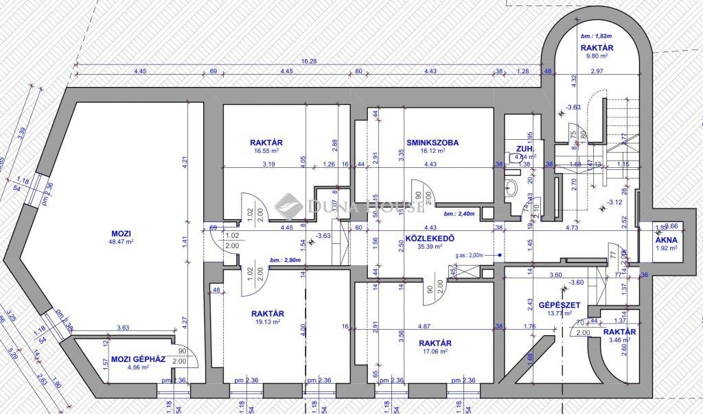
A négy szintes, ÖNÁLLÓ épület tökéletesen alkalmas cégközpont, irodák, egészségügyi intézmény, klinika, rendelő számára.
A funkció váltás is lehetséges: akár lakás, szállás jellegű, kereskedelmi, szolgáltató, alapintézményi: oktatási, egészségügyi, szociális, hitéleti, kulturális, igazgatási, valamint egyéb intézményi, irodai, vendéglátó, sport, önálló parkolóház, mélygarázs létesíthető.
Az épület pinceszint + földszint + 2 emeletből áll.
A helyiségben 5 különálló vizsgáló található, amelyek egyenként kb. 15 m²-esek, valamint egy kialakított steril műtőrész és műtő előkészítő is rendelkezésre áll.
Főbb jellemzők:
-Modern kialakítás, közelmúltban történt felújítás
-műterem, moziszoba, közösségi konyha, fürdők, irodák
Az épület kiváló elhelyezkedéssel és infrastruktúrával rendelkezik, remek befektetési lehetőség!
14Ft
A négy szintes, ÖNÁLLÓ épület tökéletesen alkalmas cégközpont, irodák, egészségügyi intézmény, klinika, rendelő számára.
A funkció váltás is lehetséges: akár lakás, szállás jellegű, kereskedelmi, szolgáltató, alapintézményi: oktatási, egészségügyi, szociális, hitéleti, kulturális, igazgatási, valamint egyéb intézményi, irodai, vendéglátó, sport, önálló parkolóház, mélygarázs létesíthető.
Az épület pinceszint + földszint + 2 emeletből áll.
A helyiségben 5 különálló vizsgáló található, amelyek egyenként kb. 15 m²-esek, valamint egy kialakított steril műtőrész és műtő előkészítő is rendelkezésre áll.
Főbb jellemzők:
-Modern kialakítás, közelmúltban történt felújítás
-műterem, moziszoba, közösségi konyha, fürdők, irodák
Az épület kiváló elhelyezkedéssel és infrastruktúrával rendelkezik, remek befektetési lehetőség!
14Ft