Eladó Kereskedelmi és ipari ingatlan
Hirdetéskód: 9308611
OTP Ingatlanpont - Takács Zsuzsanna
Felújításhoz személyi kölcsönt keres? Kalkuláljon itt! →900.00 m2
ALAPTERÜLET0
SZOBASZÁMnincs megadva
ÉPÍTÉSGáz (cirkó)
FŰTÉS- CSOK igénybe vehető nem
- Tetőtér beépíthető nem
- Építés éve 1990
- Fűtés Gáz (cirkó)
- Klíma nem
- Szigetelt nem
A+++
A++
A+
A
B
C
D
E
F
G
H
I
Az ingatlan leírása
Befektetők figyelem! Kiváló fejlesztési projekt Budaörs szívében!
Eladó egy 1.515 nm-es telken fekvő, 900 nm összterületű ingatlanegyüttes Budaörs központi részén! Az ingatlan sokoldalú hasznosítási lehetőségeivel, kiemelkedő bérleti hozamával és stratégiai elhelyezkedésével remek befektetési lehetőséget kínál.
Főbb jellemzők:
Épületek összesen: 900 nm
Elhelyezkedés: M1-M7 csomópont közelében, Budapest könnyen elérhető
Funkciók: szálló, munkásszálló, irodák, bemutatóterem, raktár
Épületek és kapacitás:
A épület: 221 nm, kétszintes szálló, 30 fő elszállásolására
B épület: Közös használatú teakonyha
C épület: 221 nm, földszintes szálló, 18 fő kapacitással
D & E épületek: Tárolók, irodák, bemutatóterem, összesen 278 nm
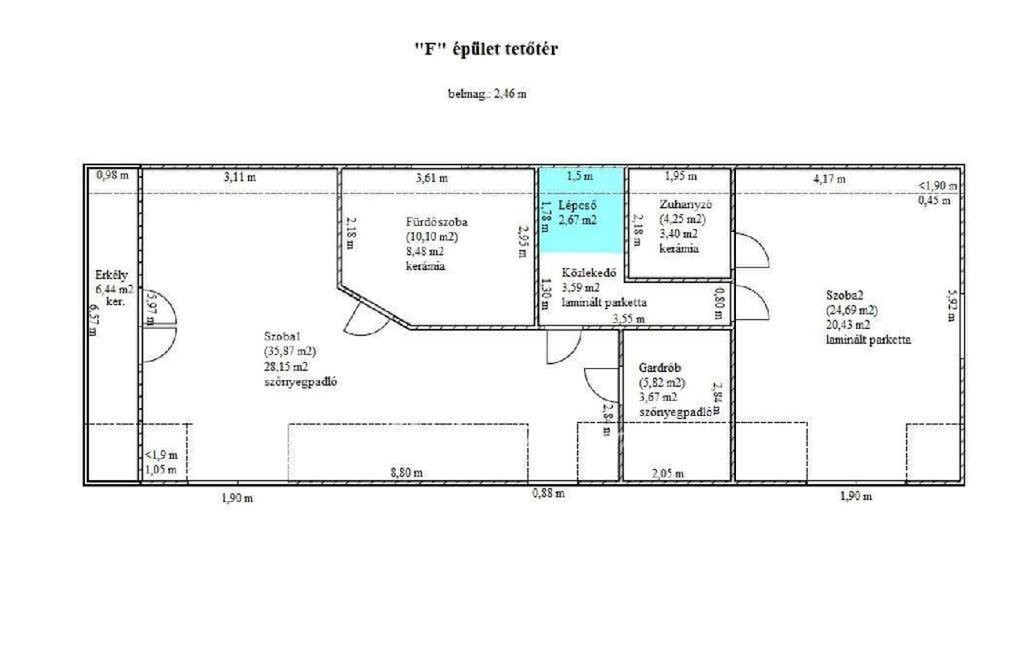
F épület: 183 nm lakóház, 12 fő befogadására, saját terasszal
Kiemelt előnyök:
Jövedelmező befektetés: az ingatlan jelenleg is bérbe van adva
Rugalmas hasznosítás: szállás, irodák, raktárak, üzleti célok
Kiváló közlekedés: buszmegálló 5 perc sétára, autópálya pár percre
Teljes közműellátottság: víz, villany, gáz, csatorna
Biztonság: kamerarendszerrel felszerelt
M322471
Az OTP Ingatlanpont, mint egyetlen közvetlen banki hátterű ingatlanközvetítő társaság teljes körű ügyintézéssel áll az eladók és a vevők rendelkezésére! A kínálatunkból választott ingatlan finanszírozásához minősített fogyasztóbarát, piaci és kedvezményes hitel- és lízingkonstrukciókat kínálunk (lakásvásárlási hitel, CSOK plusz, szabad felhasználású hitel, babaváró hitel, céges hitelek, pályázatok, amennyiben az ügyfél és az ingatlan megfelel a feltételeknek). Az adásvételi szerződés megkötéséhez igény szerint megbízható ügyvédi közreműködést biztosítunk, és segítséget nyújtunk az adásvételhez kapcsolódó egyéb ügyek intézéséhez.
Ha az új ingatlana megvásárlásához a jelenlegi ingatlanát el kell adnia, abban is szívesen segítünk.
Eladó egy 1.515 nm-es telken fekvő, 900 nm összterületű ingatlanegyüttes Budaörs központi részén! Az ingatlan sokoldalú hasznosítási lehetőségeivel, kiemelkedő bérleti hozamával és stratégiai elhelyezkedésével remek befektetési lehetőséget kínál.
Főbb jellemzők:
Épületek összesen: 900 nm
Elhelyezkedés: M1-M7 csomópont közelében, Budapest könnyen elérhető
Funkciók: szálló, munkásszálló, irodák, bemutatóterem, raktár
Épületek és kapacitás:
A épület: 221 nm, kétszintes szálló, 30 fő elszállásolására
B épület: Közös használatú teakonyha
C épület: 221 nm, földszintes szálló, 18 fő kapacitással
D & E épületek: Tárolók, irodák, bemutatóterem, összesen 278 nm
F épület: 183 nm lakóház, 12 fő befogadására, saját terasszal
Kiemelt előnyök:
Jövedelmező befektetés: az ingatlan jelenleg is bérbe van adva
Rugalmas hasznosítás: szállás, irodák, raktárak, üzleti célok
Kiváló közlekedés: buszmegálló 5 perc sétára, autópálya pár percre
Teljes közműellátottság: víz, villany, gáz, csatorna
Biztonság: kamerarendszerrel felszerelt
M322471
Az OTP Ingatlanpont, mint egyetlen közvetlen banki hátterű ingatlanközvetítő társaság teljes körű ügyintézéssel áll az eladók és a vevők rendelkezésére! A kínálatunkból választott ingatlan finanszírozásához minősített fogyasztóbarát, piaci és kedvezményes hitel- és lízingkonstrukciókat kínálunk (lakásvásárlási hitel, CSOK plusz, szabad felhasználású hitel, babaváró hitel, céges hitelek, pályázatok, amennyiben az ügyfél és az ingatlan megfelel a feltételeknek). Az adásvételi szerződés megkötéséhez igény szerint megbízható ügyvédi közreműködést biztosítunk, és segítséget nyújtunk az adásvételhez kapcsolódó egyéb ügyek intézéséhez.
Ha az új ingatlana megvásárlásához a jelenlegi ingatlanát el kell adnia, abban is szívesen segítünk.