Eladó Kereskedelmi és ipari ingatlan
Hirdetéskód: 9245278
Füredi Kapu (DunaHouse)
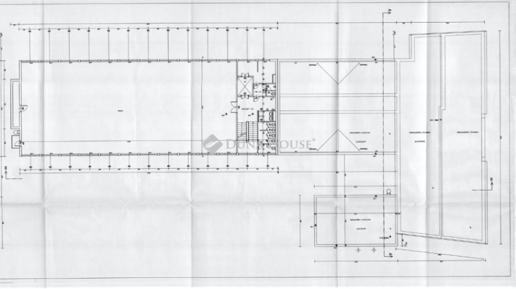
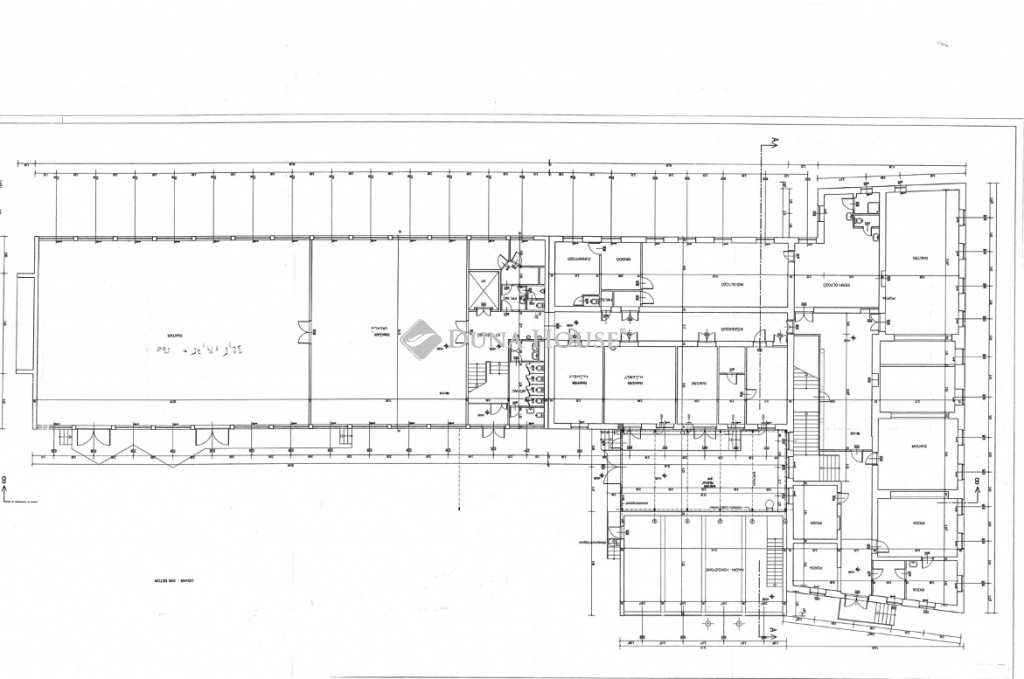
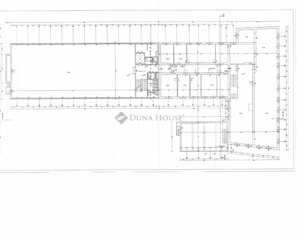
3030.00 m2
ALAPTERÜLET0
SZOBASZÁMnincs megadva
ÉPÍTÉSnincs megadva
FŰTÉS- CSOK igénybe vehető nem
- Tetőtér beépíthető nem
- Építés éve 1961
- Klíma nem
- Szigetelt nem
A+++
A++
A+
A
B
C
D
E
F
G
H
I
Az ingatlan leírása
Kiemelkedő fejlesztési lehetőség Berettyóújfalu belvárosában – sokoldalúan hasznosítható ipari ingatlan eladó!
Berettyóújfalu központjában kínálunk eladásra egy 3030 m²-es alapterületű, téglaépítésű, jó műszaki állapotú ipari ingatlant, amely 2021–2022-ben felújításon esett át. Az elhelyezkedése és mérete révén az ingatlan rendkívül széles körben hasznosítható, akár azonnali működtetésre, akár fejlesztési célokra.
Főbb jellemzők:
3030 m² alapterület
Tégla szerkezet, felújított állapot
Gáz központi fűtés
Két utcáról megközelíthető, kamionos behajtási lehetőséggel
Belvárosi lokáció: buszmegálló 2 perc, M4 autópálya 8 perc
Hasznosítási lehetőségek:
Idősek otthona, szociális vagy egészségügyi intézmény
Lakóingatlan-fejlesztés
Irodaház, szolgáltató- vagy oktatási központ
Kereskedelmi, logisztikai vagy könnyűipari tevékenység
A kiemelt belvárosi elhelyezkedés, a nagy alapterület és a rugalmas átalakíthatóság együttese ritka befektetési lehetőséget kínál.
Ez az ingatlan ideális választás befektetők, vállalkozók és intézményfenntartók számára, akik hosszú távon értékálló és jól hasznosítható fejlesztési alapot keresnek.
Bővebb információért forduljon hozzám bizalommal!
Berettyóújfalu központjában kínálunk eladásra egy 3030 m²-es alapterületű, téglaépítésű, jó műszaki állapotú ipari ingatlant, amely 2021–2022-ben felújításon esett át. Az elhelyezkedése és mérete révén az ingatlan rendkívül széles körben hasznosítható, akár azonnali működtetésre, akár fejlesztési célokra.
Főbb jellemzők:
3030 m² alapterület
Tégla szerkezet, felújított állapot
Gáz központi fűtés
Két utcáról megközelíthető, kamionos behajtási lehetőséggel
Belvárosi lokáció: buszmegálló 2 perc, M4 autópálya 8 perc
Hasznosítási lehetőségek:
Idősek otthona, szociális vagy egészségügyi intézmény
Lakóingatlan-fejlesztés
Irodaház, szolgáltató- vagy oktatási központ
Kereskedelmi, logisztikai vagy könnyűipari tevékenység
A kiemelt belvárosi elhelyezkedés, a nagy alapterület és a rugalmas átalakíthatóság együttese ritka befektetési lehetőséget kínál.
Ez az ingatlan ideális választás befektetők, vállalkozók és intézményfenntartók számára, akik hosszú távon értékálló és jól hasznosítható fejlesztési alapot keresnek.
Bővebb információért forduljon hozzám bizalommal!