Eladó Kereskedelmi és ipari ingatlan
Hirdetéskód: 9124293
GDN Ingatlanhálózat - Sashalom
Felújításhoz személyi kölcsönt keres? Kalkuláljon itt! →700.00 m2
ALAPTERÜLET0
SZOBASZÁMnincs megadva
ÉPÍTÉSnincs megadva
FŰTÉS- CSOK igénybe vehető nem
- Tetőtér beépíthető nem
- Klíma nem
- Szigetelt nem
A+++
A++
A+
A
B
C
D
E
F
G
H
I
Az ingatlan leírása
SOKOLDALÚ IPARI INGATLAN KIVÁLÓ ELHELYEZKEDÉSSEL – BEFEKTETŐKNEK, CÉGEKNEK, FEJLESZTŐKNEK!!!
Fedezd fel ezt a páratlan adottságokkal rendelkező ipari ingatlant, amely tökéletes választás lehet raktározási, gyártási vagy logisztikai tevékenységre, de akár hosszú távú befektetésként is megállja a helyét.
Ingatlan jellemzői:
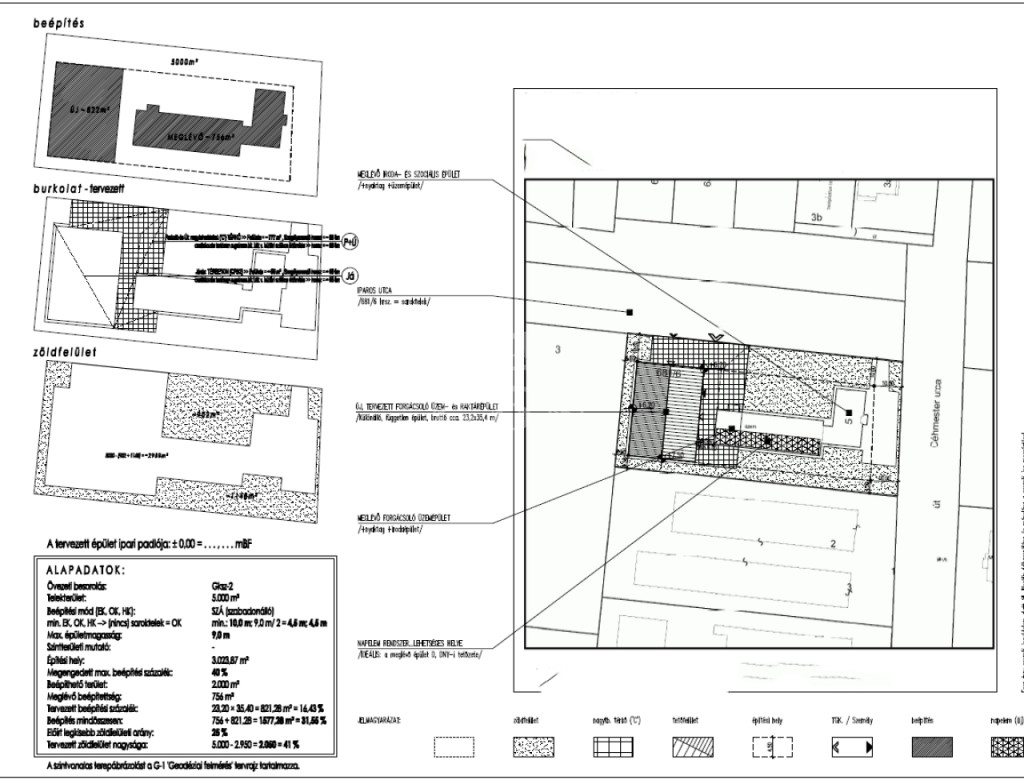
Fűtött, szigetelt csarnok – kb. 700 m² alapterülettel, ipari kapuval, raktározásra, gyártásra vagy akár szerviz tevékenységre is alkalmas.
Tágas, 5 000 m²-es telek – jól kihasználható szabadtéri területekkel, kamionos megközelíthetőséggel, bővíthetőséggel.
Két külön elektromos hálózat lett kialakítva, külön mérőórákkal:
Az egyik egy 3×65 A-s, ad-vesz órás rendszer, melyhez 40 kW-os napelem tartozik, éves szaldós elszámolással – rendkívül kedvező üzemeltetés mellett.
A másik egy 3×125 A-s ipari csatlakozás, mely az építhető új csarnok sarkánál lép be a telekre, és földkábelen keresztül jut el a meglévő csarnokhoz.
Teljes közműellátottság – ipari áramon túl víz, csatorna, gáz, internet is rendelkezésre áll.
Aszfaltozott megközelítés – könnyen elérhető főútvonalról, pár perc távolságra M3-as.
Saját, zárt telephely – biztonságos, többféle célú hasznosításra is előkészített.
Fejlesztési és üzleti lehetőségek:
Több csarnok, iroda vagy kiszolgáló egység is építhető – a telek adottságai lehetővé teszik az ingatlan továbbfejlesztését.
Logisztikai vagy gyártóbázis kialakításához kiváló – köszönhetően a könnyű megközelíthetőségnek és a tágas telekterületnek.
Energiahatékony üzemeltetés – a napelemrendszer révén akár közel nulla energiaigény is megvalósítható.
Kiváló ár-érték arány – ideális hosszú távú beruházás vagy cégközpont kialakítására.
Ideális célcsoport:
Gyártó, logisztikai, szállítmányozási vagy szerviz szolgáltatást nyújtó vállalkozások
Beruházók, akik hosszú távon hasznosítanának ipari területet bérbeadás vagy saját működés céljából
Cégek, amelyek saját központot keresnek Budapest vonzáskörzetében
Ami kiemeli a többi közül:
Azonnal birtokba vehető, jól karbantartott ipari létesítmény
Kiépített kettős elektromos rendszer napelemmel és nagy teljesítményű ipari betáplálással
Stratégiai elhelyezkedés Pest megye egyik legjobban fejlődő ipari zónájában
Az ingatlan céggel együtt is eladó, akárcsak a magas minőségű Hyundai és DMG 10 tengelyes, száladagolós CNC esztergák, utóbbi egyéb pénzügyi megállapodást igényel.
További információért vagy megtekintésért vedd fel a kapcsolatot még ma!
Ez a telephely egy kivételes lehetőség azoknak, akik nem csupán egy ingatlant, hanem jövőbeni stabilitást és növekedést keresnek. Ne hagyd ki – ritkán adódik hasonló adottságú ipari ingatlan ezen a környéken.
Amennyiben hirdetésem felkeltette érdeklődését, várom hívását, akár hétvégén is! V.I. ...TOVÁBBI, TÖBBEZRES INGATLAN KÍNÁLAT: - GDN azonosító: 385067
Fedezd fel ezt a páratlan adottságokkal rendelkező ipari ingatlant, amely tökéletes választás lehet raktározási, gyártási vagy logisztikai tevékenységre, de akár hosszú távú befektetésként is megállja a helyét.
Ingatlan jellemzői:
Fűtött, szigetelt csarnok – kb. 700 m² alapterülettel, ipari kapuval, raktározásra, gyártásra vagy akár szerviz tevékenységre is alkalmas.
Tágas, 5 000 m²-es telek – jól kihasználható szabadtéri területekkel, kamionos megközelíthetőséggel, bővíthetőséggel.
Két külön elektromos hálózat lett kialakítva, külön mérőórákkal:
Az egyik egy 3×65 A-s, ad-vesz órás rendszer, melyhez 40 kW-os napelem tartozik, éves szaldós elszámolással – rendkívül kedvező üzemeltetés mellett.
A másik egy 3×125 A-s ipari csatlakozás, mely az építhető új csarnok sarkánál lép be a telekre, és földkábelen keresztül jut el a meglévő csarnokhoz.
Teljes közműellátottság – ipari áramon túl víz, csatorna, gáz, internet is rendelkezésre áll.
Aszfaltozott megközelítés – könnyen elérhető főútvonalról, pár perc távolságra M3-as.
Saját, zárt telephely – biztonságos, többféle célú hasznosításra is előkészített.
Fejlesztési és üzleti lehetőségek:
Több csarnok, iroda vagy kiszolgáló egység is építhető – a telek adottságai lehetővé teszik az ingatlan továbbfejlesztését.
Logisztikai vagy gyártóbázis kialakításához kiváló – köszönhetően a könnyű megközelíthetőségnek és a tágas telekterületnek.
Energiahatékony üzemeltetés – a napelemrendszer révén akár közel nulla energiaigény is megvalósítható.
Kiváló ár-érték arány – ideális hosszú távú beruházás vagy cégközpont kialakítására.
Ideális célcsoport:
Gyártó, logisztikai, szállítmányozási vagy szerviz szolgáltatást nyújtó vállalkozások
Beruházók, akik hosszú távon hasznosítanának ipari területet bérbeadás vagy saját működés céljából
Cégek, amelyek saját központot keresnek Budapest vonzáskörzetében
Ami kiemeli a többi közül:
Azonnal birtokba vehető, jól karbantartott ipari létesítmény
Kiépített kettős elektromos rendszer napelemmel és nagy teljesítményű ipari betáplálással
Stratégiai elhelyezkedés Pest megye egyik legjobban fejlődő ipari zónájában
Az ingatlan céggel együtt is eladó, akárcsak a magas minőségű Hyundai és DMG 10 tengelyes, száladagolós CNC esztergák, utóbbi egyéb pénzügyi megállapodást igényel.
További információért vagy megtekintésért vedd fel a kapcsolatot még ma!
Ez a telephely egy kivételes lehetőség azoknak, akik nem csupán egy ingatlant, hanem jövőbeni stabilitást és növekedést keresnek. Ne hagyd ki – ritkán adódik hasonló adottságú ipari ingatlan ezen a környéken.
Amennyiben hirdetésem felkeltette érdeklődését, várom hívását, akár hétvégén is! V.I. ...TOVÁBBI, TÖBBEZRES INGATLAN KÍNÁLAT: - GDN azonosító: 385067