Eladó Kereskedelmi és ipari ingatlan
Hirdetéskód: 9242810
Med-Dekor Kft.
Felújításhoz személyi kölcsönt keres? Kalkuláljon itt! →2000.00 m2
ALAPTERÜLET0
SZOBASZÁMnincs megadva
ÉPÍTÉSEgyéb fűtés
FŰTÉS- CSOK igénybe vehető nem
- Tetőtér beépíthető nem
- Építés éve 1998
- Fűtés Egyéb fűtés
- Klíma nem
- Szigetelt nem
A+++
A++
A+
A
B
C
D
E
F
G
H
I
Az ingatlan leírása
lsózsolcai ipari parkban, gyártás beszüntetése után a tulajdonos értékesíteni kívánja tulajdonában álló ipari létesítményt.
A telek mérete 15000m2, melyből kb 10000 van jelenleg körbekerítve és hasznosítva, ám az szabad döntés alapján bármikor módosítható.
A rajta található felépítmény 3 részből tevődik össze, annak ellenére, hogy összeépített.
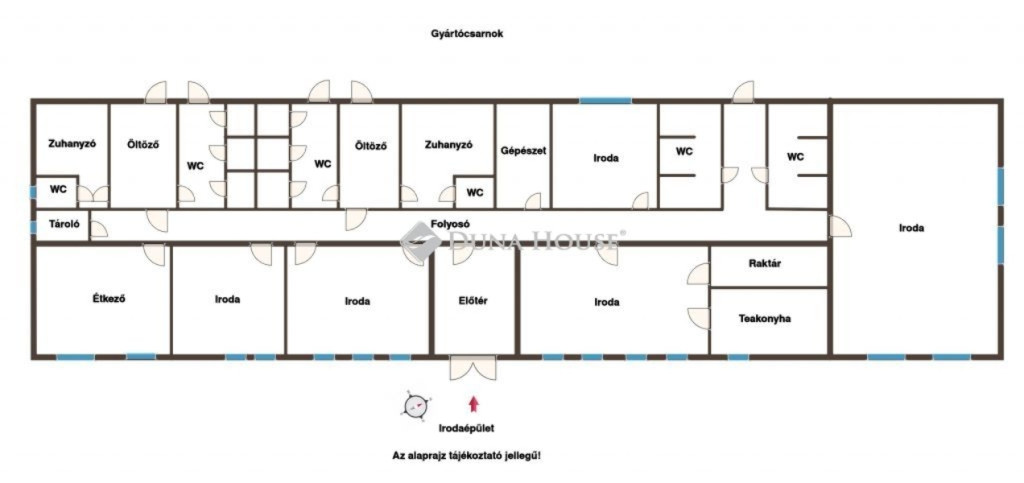
- 300m2-es irodarész, mely tégla falazatú, műanyag nyílászárókkal rendelkezik, irodák, öltözők és egyéb szociális helyiségek kaptak helyet benne
- 800m2-es fűtött gyártócsarnok, mely daruzott, padlója jó állapotú, nagy teherbírású acélhajas beton
- 800m2-es raktár
Az udvaron jelenleg is terhelhető burkolattal rendelkezik, targoncás és kamionforgalom számára, valamint az irodaépület előtt parkoló biztosít helyet a személygépjárművek részére.
2017-ben a jelenlegi tulajdonos teljeskörűen felújította, ekkor került be az új 34kW-os gázkazán, a műanyag nyílászárók, stb.
Külön előnye, hogy dedikált transzformátor állomásról kapja az elektromos áramot (3x1000A), mely kisfeszültségű 400V, így nem vonatkoznak rá a nagyfeszültség üzemeltetési feltételei, illetve kötelezően alkalmazandó szakember személye is megspórolható.
Gáz és víz is iparilag méretezett, minden teljeskörűen engedélyeztetett és tervezett kialakítású.
Az ipari parkban számos országos/multinacionális cég jelen van, adott telephely remek fekvéssel rendelkezik, 2 irányból is megközelíthető, autópálya közelében.
Állapotát tekintve azonnal munkára fogható, belakható - a gyártás 2 hónapja szűnt meg, az állagmegóvásra fordítanak és rendben tartják.
Továbbá rendelkezik egy jóváhagyott építési engedéllyel is, egy 1000m2-es ponyva raktár tekintetében, mely a tervek szerint bármikor megvalósítható.
A hirdetési ár nettó ár, azt további 27% ÁFA terheli.
A telek mérete 15000m2, melyből kb 10000 van jelenleg körbekerítve és hasznosítva, ám az szabad döntés alapján bármikor módosítható.
A rajta található felépítmény 3 részből tevődik össze, annak ellenére, hogy összeépített.
- 300m2-es irodarész, mely tégla falazatú, műanyag nyílászárókkal rendelkezik, irodák, öltözők és egyéb szociális helyiségek kaptak helyet benne
- 800m2-es fűtött gyártócsarnok, mely daruzott, padlója jó állapotú, nagy teherbírású acélhajas beton
- 800m2-es raktár
Az udvaron jelenleg is terhelhető burkolattal rendelkezik, targoncás és kamionforgalom számára, valamint az irodaépület előtt parkoló biztosít helyet a személygépjárművek részére.
2017-ben a jelenlegi tulajdonos teljeskörűen felújította, ekkor került be az új 34kW-os gázkazán, a műanyag nyílászárók, stb.
Külön előnye, hogy dedikált transzformátor állomásról kapja az elektromos áramot (3x1000A), mely kisfeszültségű 400V, így nem vonatkoznak rá a nagyfeszültség üzemeltetési feltételei, illetve kötelezően alkalmazandó szakember személye is megspórolható.
Gáz és víz is iparilag méretezett, minden teljeskörűen engedélyeztetett és tervezett kialakítású.
Az ipari parkban számos országos/multinacionális cég jelen van, adott telephely remek fekvéssel rendelkezik, 2 irányból is megközelíthető, autópálya közelében.
Állapotát tekintve azonnal munkára fogható, belakható - a gyártás 2 hónapja szűnt meg, az állagmegóvásra fordítanak és rendben tartják.
Továbbá rendelkezik egy jóváhagyott építési engedéllyel is, egy 1000m2-es ponyva raktár tekintetében, mely a tervek szerint bármikor megvalósítható.
A hirdetési ár nettó ár, azt további 27% ÁFA terheli.