Eladó Kereskedelmi és ipari ingatlan
Hirdetéskód: 9248076
OTP Ingatlanpont Csongrád
176.00 m2
ALAPTERÜLET0
SZOBASZÁMnincs megadva
ÉPÍTÉSnincs megadva
FŰTÉS- CSOK igénybe vehető nem
- Tetőtér beépíthető nem
- Építés éve 2002
- Klíma nem
- Szigetelt nem
A+++
A++
A+
A
B
C
D
E
F
G
H
I
Az ingatlan leírása
Eladó bejáratott vendégház Abádszalók központjában - azonnal indítható vállalkozás, teljes felszereléssel!
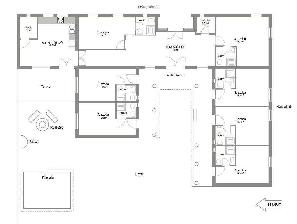
Abádszalókon, a Tisza-tó egyik legkedveltebb üdülővárosában kínálunk eladásra egy kiváló állapotú, 2002-ben épült, folyamatosan karbantartott vendégházat, amely azonnal használatba vehető - akár vállalkozásindításhoz, akár saját pihenésre, nyaralásra!
Telekméret: 637 nm.
Épület alapterülete: 176,8 nm.
Szerkezet: beton alap, tégla falazat, cserépfedés.
Vendégszobák: 7 különálló szoba, összesen 20 férőhellyel.
Tágas közösségi tér az épületen belül - tökéletes nagyobb társaságoknak, családoknak.
Teljesen felszerelt konyha és étkező.
Külső szolgáltatások:
Filagória, sütés-főzés lehetőség az udvaron
Kerti medence - vendégek nagy kedvence
Gondozott udvar, kellemes zöld környezet
További előnyök:
Kívül-belül kiváló állapotban
Teljes berendezéssel és felszereléssel eladó bútorok, konyhai eszközök, ágyneműk, minden marad.
Bejáratott vendégházként üzemel, visszatérő vendégkörrel.
Strand és Tisza-tó mindössze 5 perc séta, boltok, éttermek, közszolgáltatások szintén pár perc alatt elérhetők gyalogosan.
Ez az ingatlan tökéletes választás:
vendéglátásban gondolkodó vállalkozóknak
nyaraltatásból élőknek, befektetőknek
vagy akár többgenerációs nyaralónak, saját célra
Ne maradjon le róla!
Kérdés esetén, vagy időpont egyeztetésre keressen bizalommal!
Abádszalókon, a Tisza-tó egyik legkedveltebb üdülővárosában kínálunk eladásra egy kiváló állapotú, 2002-ben épült, folyamatosan karbantartott vendégházat, amely azonnal használatba vehető - akár vállalkozásindításhoz, akár saját pihenésre, nyaralásra!
Telekméret: 637 nm.
Épület alapterülete: 176,8 nm.
Szerkezet: beton alap, tégla falazat, cserépfedés.
Vendégszobák: 7 különálló szoba, összesen 20 férőhellyel.
Tágas közösségi tér az épületen belül - tökéletes nagyobb társaságoknak, családoknak.
Teljesen felszerelt konyha és étkező.
Külső szolgáltatások:
Filagória, sütés-főzés lehetőség az udvaron
Kerti medence - vendégek nagy kedvence
Gondozott udvar, kellemes zöld környezet
További előnyök:
Kívül-belül kiváló állapotban
Teljes berendezéssel és felszereléssel eladó bútorok, konyhai eszközök, ágyneműk, minden marad.
Bejáratott vendégházként üzemel, visszatérő vendégkörrel.
Strand és Tisza-tó mindössze 5 perc séta, boltok, éttermek, közszolgáltatások szintén pár perc alatt elérhetők gyalogosan.
Ez az ingatlan tökéletes választás:
vendéglátásban gondolkodó vállalkozóknak
nyaraltatásból élőknek, befektetőknek
vagy akár többgenerációs nyaralónak, saját célra
Ne maradjon le róla!
Kérdés esetén, vagy időpont egyeztetésre keressen bizalommal!