Eladó Iroda, irodaház
Hirdetéskód: 9226441

-

Felújításhoz személyi kölcsönt keres? Kalkuláljon itt! →
900.00 m2
ALAPTERÜLET
0
SZOBASZÁM
Tégla
ÉPÍTÉS
Gáz (cirkó)
FŰTÉS
  • Belső szintek 2
  • Parkolási lehetőség Önálló garázs
  • Fűtés Gáz (cirkó)
  • Építőanyag Tégla
  • Klíma igen
  • Akadálymentesített nem
Energetikai besorolás: Nincs meghatározva
A+++
A++
A+
A
B
C
D
E
F
G
H
I

Az MBH Bank személyi kölcsön ajánlata

Fizetett hirdetés
1 millió Ft
6 évre
20 585 Ft/hó
THM: 14.5%
Részletek →
2 millió Ft
6 évre
41 169 Ft/hó
THM: 14.5%
Részletek →
3 millió Ft
6 évre
61 754 Ft/hó
THM: 14.5%
Részletek →

A tájékoztatás nem teljes körű és nem minősül ajánlattételnek.

Az ingatlan leírása

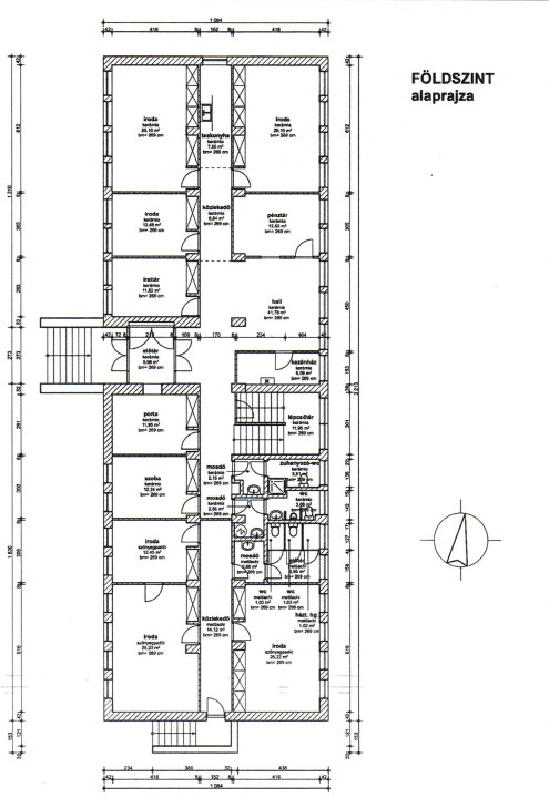
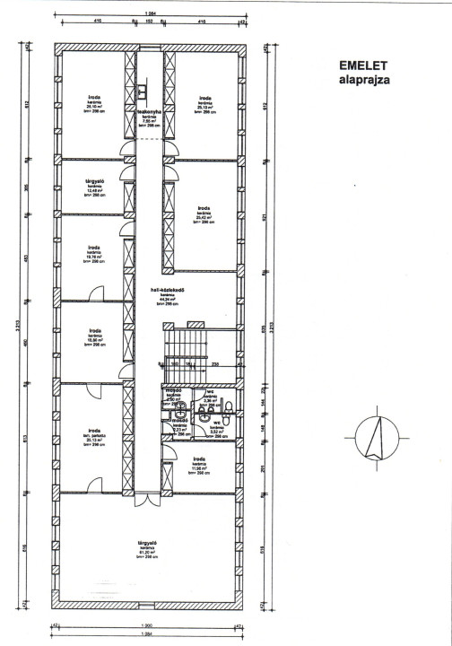
Tolna Vármegye negyedik legnagyobb népességű városában Bonyhádon megvételre kínálok egy jó állapotú három szintes irodaházat. Az ingatlan Bonyhád központjában, rendkívül frekventált környéken található. A három szint összesen 910 m2, az alagsort tárolásra használják, míg a földszinten és az emeleten különböző méretű irodák, szociálishelyiségek, fürdőszoba, két teakonyha, 60 m2- es tárgyaló, közösségi tér, kazánház, porta és lépcsőház lett kialakítva. Az ingatlan jó állapotú, 2012-ben történt egy nagyobb felújítás, de azóta is folyamatosan újítják, modernizálják és karbantartják. Három rétegű műanyagnyílászárókat és minőségi fa belső ajtókat építettek be, burkolatokat felújították, villanyhálózatot teljes egészében felújították (ipari áram), 50 KW-os napelem rendszert telepítettek (elegendő áramot termel az egész épület fogyasztásához), fűtésrendszert korszerűsítették (gáz kazán és elektromos kazán). A 2459 m2-es saját területen rendelkezésre áll egy nagy parkoló és három garázs is a gépjárművek részére.


Az ingatlan szinte 100%-a folyamatosan használva van. Több irodát már rég óta megbízható bérlők használják  , akik maradnának szívesen, ha van rá lehetőség. A tulajdonos is egy évig visszabérelné az irodaházat.


Hasznosítását tekintve jó lehetőség lehet idősek otthona vagy akár társasház kialakítására is. A tulajdonos korábban már utána járt és lehetőség van még egy szint ráépítésére, így növelve az ingatlan méretét és értékét. Ár: 350 Mft.


Megtekintésére kizárólag irodánkkal előre egyeztetett időpontban lehetséges!

Térkép

A hirdető elérhetősége

László Zsolt e.v.

+3070065