Eladó Ház- házrész
Hirdetéskód: 9183763
DUX Nekretnine d.o.o. - Horváth Lajos
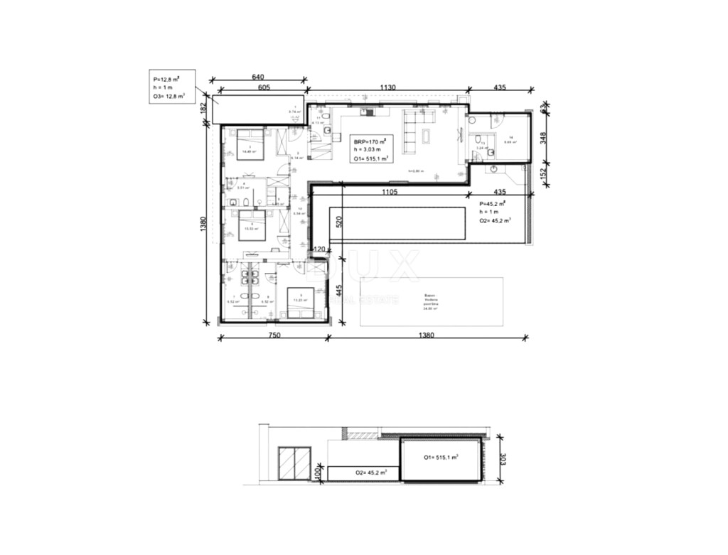
170 m2
ALAPTERÜLET4
SZOBASZÁMnincs megadva
ÉPÍTÉSnincs megadva
FŰTÉS- CSOK igénybe vehető nem
- Tetőtér beépíthető nem
- Építés éve 2025
- Klíma nem
- Szigetelt nem
A+++
A++
A+
A
B
C
D
E
F
G
H
I
Az ingatlan leírása
ISTRIA, ŽMINJ - Modern designház medencével
Ha Európa minden útja Rómába vezet, akkor Isztria összes útja Žminjbe vezet - Isztria szívébe, 379 méteres tengerszint feletti magasságban. Žminj ősidők óta fontos közlekedési csomópont. Összekötötte az egész Isztriai-félszigetet. Kivételes természeti szépségének, végtelen rétjeinek, szőlőültetvényeinek, termékeny földjeinek, ősi erdőinek és újonnan felfedezett barlangjainak köszönhetően ez a megfelelő hely a természettel való kapcsolatteremtésre. A zöld, egészséges és fenntartható turizmus jellemzi ezt a települést, amely lenyűgöző nemcsak területileg, hanem kulturálisan és gasztronómiailag is. Žminj festői területén 33 település és 112 falu található. Žminj városától nem messze eladó egy modern designház medencével. A mikrolokáció egy kis isztriai város hiteles élményét kínálja, meghittséget, mentességet minden fáradságtól és szünetet a zajtól, miközben közel van Isztria dinamikus városaihoz, amelyek számos szolgáltatást kínálnak. A kényelmes elhelyezkedés mellett az ingatlant a kivitelezés minősége is jellemzi, amely hosszú távú elégedettséget és életminőséget garantál. A ház építészetével formailag és színeiben illeszkedik a településbe és a tájba, a természeti környezet és a modern design szinergiáját teremtve. Egyetlen lakóegységként definiálják, amelynek felülete egy funkcionális alaprajzú szinten oszlik meg. Egy nyitott koncepciójú térből áll, amely egyesíti a konyhát, az étkezőt és a nappalit, fedett teraszra nyíló kijárattal, három hálószobából saját fürdőszobával és egy vendég WC-ből. Az alaprajzot egy külső bejárattal rendelkező technikai helyiség és WC egészíti ki. Az udvar parkosított és kerített, a tökéletes harmóniát pedig egy fűtött medence napozóval teszi teljessé. Az ingatlan megadott ára a bútorozatlan végső befejezettségi szintre vonatkozik, amely lehetővé teszi a végső dekorációt a saját kívánságok és preferenciák szerint. Az ár tartalmazza a hőszivattyús padlófűtést, a napelemeket, az elektromos autók töltőállomását és a videómegfigyelést. Az ingatlan kiváló elhelyezkedése és belső és külső térbeli elrendezése lehetőséget kínál egy kényelmes családi életre vagy egy turisztikai bérbeadó vállalkozásba való befektetésre.
Tisztelt ügyfeleink, az ügynöki jutalék felszámítása az Általános Üzleti Feltételeknek megfelelően történik:
Ha Európa minden útja Rómába vezet, akkor Isztria összes útja Žminjbe vezet - Isztria szívébe, 379 méteres tengerszint feletti magasságban. Žminj ősidők óta fontos közlekedési csomópont. Összekötötte az egész Isztriai-félszigetet. Kivételes természeti szépségének, végtelen rétjeinek, szőlőültetvényeinek, termékeny földjeinek, ősi erdőinek és újonnan felfedezett barlangjainak köszönhetően ez a megfelelő hely a természettel való kapcsolatteremtésre. A zöld, egészséges és fenntartható turizmus jellemzi ezt a települést, amely lenyűgöző nemcsak területileg, hanem kulturálisan és gasztronómiailag is. Žminj festői területén 33 település és 112 falu található. Žminj városától nem messze eladó egy modern designház medencével. A mikrolokáció egy kis isztriai város hiteles élményét kínálja, meghittséget, mentességet minden fáradságtól és szünetet a zajtól, miközben közel van Isztria dinamikus városaihoz, amelyek számos szolgáltatást kínálnak. A kényelmes elhelyezkedés mellett az ingatlant a kivitelezés minősége is jellemzi, amely hosszú távú elégedettséget és életminőséget garantál. A ház építészetével formailag és színeiben illeszkedik a településbe és a tájba, a természeti környezet és a modern design szinergiáját teremtve. Egyetlen lakóegységként definiálják, amelynek felülete egy funkcionális alaprajzú szinten oszlik meg. Egy nyitott koncepciójú térből áll, amely egyesíti a konyhát, az étkezőt és a nappalit, fedett teraszra nyíló kijárattal, három hálószobából saját fürdőszobával és egy vendég WC-ből. Az alaprajzot egy külső bejárattal rendelkező technikai helyiség és WC egészíti ki. Az udvar parkosított és kerített, a tökéletes harmóniát pedig egy fűtött medence napozóval teszi teljessé. Az ingatlan megadott ára a bútorozatlan végső befejezettségi szintre vonatkozik, amely lehetővé teszi a végső dekorációt a saját kívánságok és preferenciák szerint. Az ár tartalmazza a hőszivattyús padlófűtést, a napelemeket, az elektromos autók töltőállomását és a videómegfigyelést. Az ingatlan kiváló elhelyezkedése és belső és külső térbeli elrendezése lehetőséget kínál egy kényelmes családi életre vagy egy turisztikai bérbeadó vállalkozásba való befektetésre.
Tisztelt ügyfeleink, az ügynöki jutalék felszámítása az Általános Üzleti Feltételeknek megfelelően történik: