Eladó Ház- házrész
Hirdetéskód: 9325548

OTP Ingatlanpont Siófok

Felújításhoz személyi kölcsönt keres? Kalkuláljon itt! →
87.00 m2
ALAPTERÜLET
3
SZOBASZÁM
nincs megadva
ÉPÍTÉS
Gáz (konvektor)
FŰTÉS
  • CSOK igénybe vehető nem
  • Tetőtér beépíthető nem
  • Építés éve 1928
  • Fűtés Gáz (konvektor)
  • Klíma nem
  • Szigetelt nem
Energetikai besorolás: Nincs meghatározva
A+++
A++
A+
A
B
C
D
E
F
G
H
I

Az MBH Bank személyi kölcsön ajánlata

Fizetett hirdetés
1 millió Ft
6 évre
20 585 Ft/hó
THM: 14.5%
Részletek →
2 millió Ft
6 évre
41 169 Ft/hó
THM: 14.5%
Részletek →
3 millió Ft
6 évre
61 754 Ft/hó
THM: 14.5%
Részletek →

A tájékoztatás nem teljes körű és nem minősül ajánlattételnek.

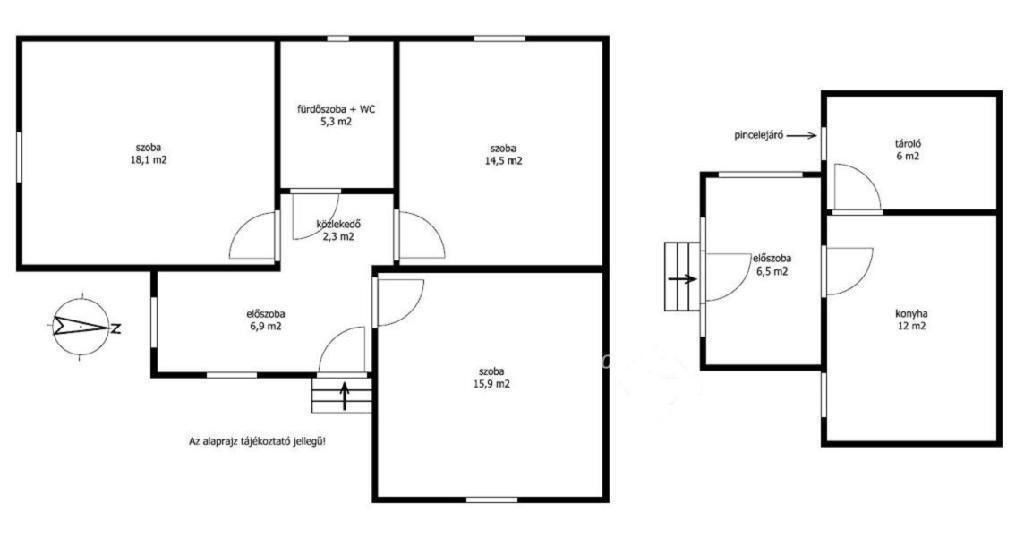
Az ingatlan leírása

Balaton déli part, Zamárdi, 87 m2 családi ház, 730 m2 telek eladó. Az ingatlan a település lakóövezetében helyezkedik el, 600 méterre a kiépített szabadstrandtól. A 63 m2-es lakóház lakóterét egy 24 m2-es külön épületben nyári konyha egészíti ki tárolóval és pincével. A családi ház fűtését gázkonvektor biztosítja, a melegvízről bojler gondoskodik. Az ingatlan értékét növeli egy több lehetőséget rejtő melléképület, illetve egy fúrt kút, ami ellátja a hangulatos, dísznövényekkel, valamint alma- és diófával ültetett, tágas kertet. Az ingatlan kiválóan alkalmas állandó lakhatásra és nyaralásra is, de tökéletes választás lehet befektetési céllal kiadásra is. A kisebb épület könnyen átalakítható egy önálló apartmanná, a saját termésű gyümölcs pedig igazi kincs a mai világban. Lokáció tekintetében ritka lehetőség egy közkedvelt településen, párszáz méterre a strandtól, vasútállomástól, bevásárlási lehetőségtől. Bővebb információért keressen telefonon!

Térkép

Ingatlan adásvétel ügyvédi díja
405 000 Ft
a hirdetésben szereplő ár alapján
  • A vételár 0,45%-a
  • Szerződéscsomag teljeskörű képviselettel
  • Ingyenes tulajdoni lap ellenőrzés
  • Az ÁFA-t már tartalmazza
Érdekel az ajánlat →
A tájékoztatás nem teljes körű és nem minősül ajánlattételnek. Minimum díj: 150 000 Ft, maximum díj: 600 000 Ft. A díj kizárólag lakóingatlan adásvételére vonatkozik.

A hirdető elérhetősége

OTP Ingatlanpont Siófok

Szűcs Adrienn
+36 70 698