Eladó Ház- házrész
Hirdetéskód: 9324700

OTP Ingatlanpont Siófok

Felújításhoz személyi kölcsönt keres? Kalkuláljon itt! →
122.00 m2
ALAPTERÜLET
3
SZOBASZÁM
nincs megadva
ÉPÍTÉS
Egyéb fűtés
FŰTÉS
  • CSOK igénybe vehető nem
  • Tetőtér beépíthető nem
  • Építés éve 2008
  • Fűtés Egyéb fűtés
  • Klíma nem
  • Szigetelt nem
Energetikai besorolás: Nincs meghatározva
A+++
A++
A+
A
B
C
D
E
F
G
H
I

Az MBH Bank személyi kölcsön ajánlata

Fizetett hirdetés
1 millió Ft
6 évre
20 585 Ft/hó
THM: 14.5%
Részletek →
2 millió Ft
6 évre
41 169 Ft/hó
THM: 14.5%
Részletek →
3 millió Ft
6 évre
61 754 Ft/hó
THM: 14.5%
Részletek →

A tájékoztatás nem teljes körű és nem minősül ajánlattételnek.

Az ingatlan leírása

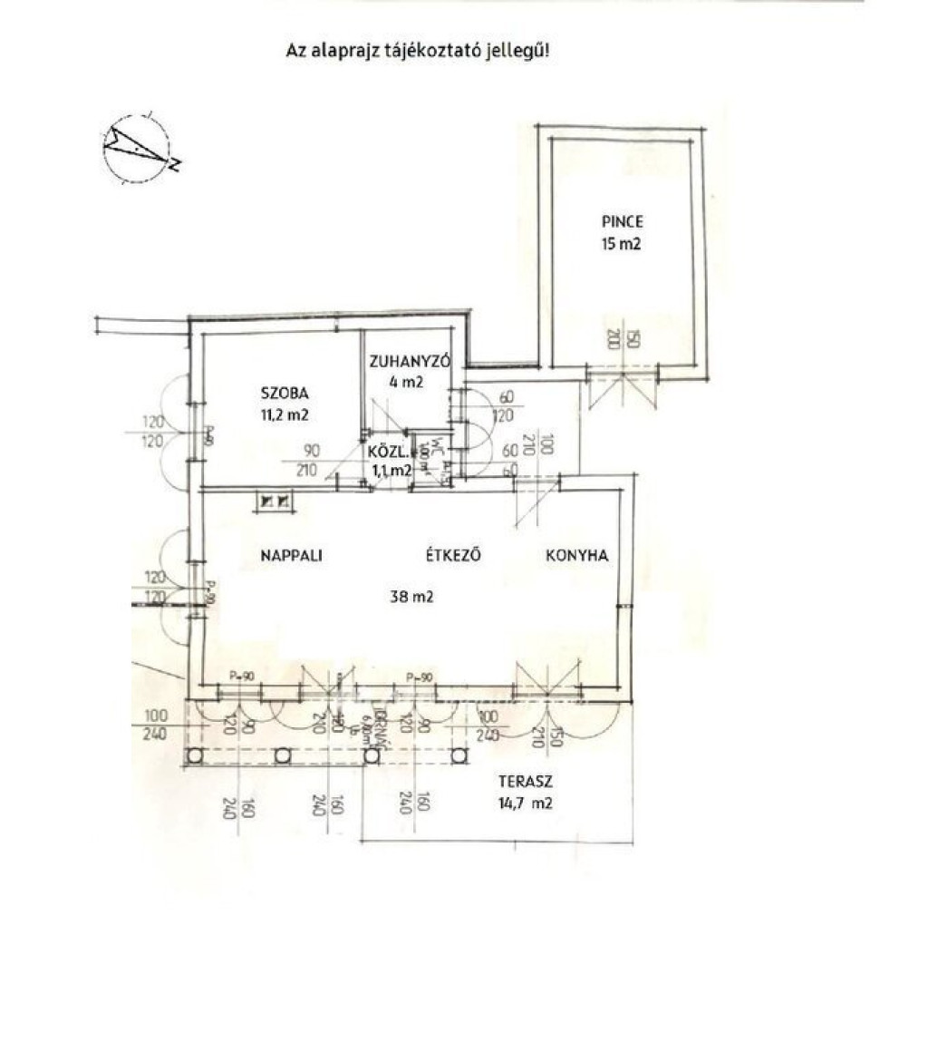
Zamárdi-Kóhegyen nyaralónak, állandó otthonnak, kereskedelmi szálláshelynek egyaránt tökéletesen alkalmas kiváló állapotú két lakrészes ház eladó 2500 m2-es hangulatos, intim telken. Az épület két lakása külön bejáraton megközelíthető, így két generáció együttélésére, nyaralására, vagy kiadásra ideális. 3 évre érvényes 2 csillagos szálláshely minősítéssel rendelkezik, mely átruházható az új tulajdonosra. A földszinti épületrész 2008-ban épült, a tetőráépítés 2019-ben készült el. Az eredetileg is nagy igényességgel megépített ház minden elemében gondosan karbantartott, kiváló állapotú. Műszaki tartalom: 38-as Porotherm tégla, 5 cm hőszigeteléssel, 15 cm tetőszigeteléssel, Hofstadter nyílászárók szúnyoghálóval. A fűtést 2 kályha és egy klíma adja jelenleg, de megtörtént a radiátorok és a padlófűtés előkészítése is. A melegvizet bojlerek szolgáltatják. A földszinti, keleti fekvésű lakrészben egy hálószoba kapott helyet és egy közel 40 m2-es amerikai konyhás nappali terasz-, és pince kapcsolattal. Még egy szoba kialakítására igény esetén van lehetőség. A tetőtéri nyugati fekvésű lakrésznek egy 27 m2-es amerikai konyhás nappalija és három hálószobája van. A kertben szilva-, meggy-, cseresznye, alma-,barack-, mandula- diófák, szőlő, dísznövények és a kiváló állapotú boltíves borospince emelik tovább az ingatlan értékét. Minden részletében hamisítatlan kő-hegyi hangulat. Az ingatlan aszfaltos úton megközelíthető. A Balaton-part (Zamárdi szabadstrand) távolsága 1,5 km. Megtekintésért kérem, hívjon!

Az energetikai tanúsítvány készítése folyamatban van, amint rendelkezésre áll, úgy azzal a hirdetés frissítésre kerül.

Térkép

Ingatlan adásvétel ügyvédi díja
600 000 Ft
a hirdetésben szereplő ár alapján
  • A vételár 0,45%-a
  • Szerződéscsomag teljeskörű képviselettel
  • Ingyenes tulajdoni lap ellenőrzés
  • Az ÁFA-t már tartalmazza
Érdekel az ajánlat →
A tájékoztatás nem teljes körű és nem minősül ajánlattételnek. Minimum díj: 150 000 Ft, maximum díj: 600 000 Ft. A díj kizárólag lakóingatlan adásvételére vonatkozik.

A hirdető elérhetősége

OTP Ingatlanpont Siófok

Szűcs Adrienn
+36 70 698