Eladó Ház- házrész
Hirdetéskód: 9267657
OC-Zalaegerszeg Eötvös
77.00 m2
ALAPTERÜLET3
SZOBASZÁMnincs megadva
ÉPÍTÉSnincs megadva
FŰTÉS- CSOK igénybe vehető nem
- Tetőtér beépíthető nem
- Építés éve 1920
- Klíma nem
- Szigetelt nem
A+++
A++
A+
A
B
C
D
E
F
G
H
I
Az ingatlan leírása
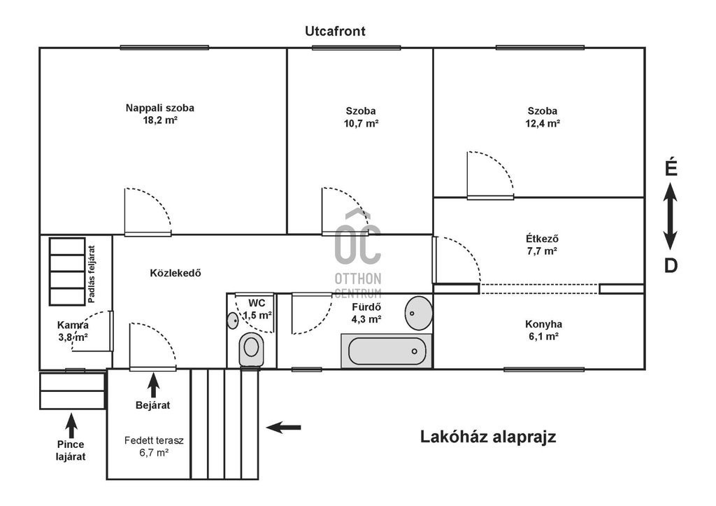
Zalaegerszeg belvárosában a Vizslapark szomszédságában 3 szobás, 85 m2-es polgári stílusú kertes ház vált eladóvá, melynek jellemzői a következők.
- A tégla építésű, bruttó 85 m2-es (nettó 77 m2) ingatlan 457 m2-es telken helyezkedik
el.
- A ház az 1920-as években épült, azonban jelenlegi tulajdonosa a 80-as évek közepén az
akkori kor igényeinek megfelelően teljes mértékben felújította.
- A tető héjazata Bramac cserép borítást kapott.
- A ház külső falazata is megújult.
- A föld alapú pince födémrészét megerősítették, lejáratát felújították.
- A villamosvezetékek – aluminiumra -, vízvezetékek cseréje megtörtént.
- A gázt az ingatlanba bevezették.
- A hidegburkolatokat korszerűsítették, a szobákat parkettával látták el, melyek jelenleg
is tökéletes állapotban vannak.
- Jelenlegi fűtése gázkonvektorral biztosított. Ezek burkolata egyedi és különleges, a ház
belső varázsával tökéletesen harmonizál.
- A nyílászárók fa szerkezetűek, a bejárati ajtót kívülről egy fa szerkezetű ajtó védi,
szigeteli.
- Melegvíz ellátása villanybojlerrel történik.
- Az udvarban szintén tégla építésű garázs, tárolók, állatok tartására (tyúkok, szárnyasok)
alkalmas házikó található.
- A tárolók számtalan lehetőséget (házi kondi helyiség, hobby helyiség, családi wellness
rész szaunával, jakuzzival stb.) rejtenek magukban. Ezek megvalósítása az új
tulajdonos fantáziájára van bízva.
- A föld alapú pince hőmérséklete lehetővé teszi növények, akár gyümölcsök, zöldségek
téli raktározását. Avagy a mókuskerékbe zárt, kifacsaró hétköznapok ellensúlyozásaként
borospince kialakítását, ahol a család és a barátok romantikus hangulatú körülmények
között felhőtlenül beszélgethetnek és kortyolgathatják a zamatos nedűket.
- Az örökzöldekkel, virágokkal, gyümölcsfával tarkított udvar is bővelkedik lehetőségekben,
mely az új gazda ötleteinek megvalósítására vár.
…és kinek is ajánlanám ezt az ingatlant?
Valójában annak szól ez a kis ékszerdoboz, aki hűséggel fordul a múlt építészete felé, és meglátja benne a saját jövőjének lehetőségét. Aki hisz abban, hogy a régi dolgok nem elavultak, csupán új életre várnak – modern formában, de változatlan lélekkel.
Irodánk teljes körű szolgáltatást nyújt kereső ügyfeleknek, amennyiben Önnek hitelre van szüksége, segítünk!
Szakszerű tanácsadással, teljes körű ingyenes hitel és CSOK ügyintézéssel, energetikai tanúsítvány elkészítésével és kedvező díjszabású ügyvéddel nyújtunk segítséget!
Ha Ön is szeretne többet megtudni erről az ingatlanról, vagy kérdései lennének, ne habozzon felkeresni minket bizalommal.
Az Ön elégedettsége a legfontosabb számunkra, és örömmel segítünk Önnek a legjobb döntés meghozatalában.
- A tégla építésű, bruttó 85 m2-es (nettó 77 m2) ingatlan 457 m2-es telken helyezkedik
el.
- A ház az 1920-as években épült, azonban jelenlegi tulajdonosa a 80-as évek közepén az
akkori kor igényeinek megfelelően teljes mértékben felújította.
- A tető héjazata Bramac cserép borítást kapott.
- A ház külső falazata is megújult.
- A föld alapú pince födémrészét megerősítették, lejáratát felújították.
- A villamosvezetékek – aluminiumra -, vízvezetékek cseréje megtörtént.
- A gázt az ingatlanba bevezették.
- A hidegburkolatokat korszerűsítették, a szobákat parkettával látták el, melyek jelenleg
is tökéletes állapotban vannak.
- Jelenlegi fűtése gázkonvektorral biztosított. Ezek burkolata egyedi és különleges, a ház
belső varázsával tökéletesen harmonizál.
- A nyílászárók fa szerkezetűek, a bejárati ajtót kívülről egy fa szerkezetű ajtó védi,
szigeteli.
- Melegvíz ellátása villanybojlerrel történik.
- Az udvarban szintén tégla építésű garázs, tárolók, állatok tartására (tyúkok, szárnyasok)
alkalmas házikó található.
- A tárolók számtalan lehetőséget (házi kondi helyiség, hobby helyiség, családi wellness
rész szaunával, jakuzzival stb.) rejtenek magukban. Ezek megvalósítása az új
tulajdonos fantáziájára van bízva.
- A föld alapú pince hőmérséklete lehetővé teszi növények, akár gyümölcsök, zöldségek
téli raktározását. Avagy a mókuskerékbe zárt, kifacsaró hétköznapok ellensúlyozásaként
borospince kialakítását, ahol a család és a barátok romantikus hangulatú körülmények
között felhőtlenül beszélgethetnek és kortyolgathatják a zamatos nedűket.
- Az örökzöldekkel, virágokkal, gyümölcsfával tarkított udvar is bővelkedik lehetőségekben,
mely az új gazda ötleteinek megvalósítására vár.
…és kinek is ajánlanám ezt az ingatlant?
Valójában annak szól ez a kis ékszerdoboz, aki hűséggel fordul a múlt építészete felé, és meglátja benne a saját jövőjének lehetőségét. Aki hisz abban, hogy a régi dolgok nem elavultak, csupán új életre várnak – modern formában, de változatlan lélekkel.
Irodánk teljes körű szolgáltatást nyújt kereső ügyfeleknek, amennyiben Önnek hitelre van szüksége, segítünk!
Szakszerű tanácsadással, teljes körű ingyenes hitel és CSOK ügyintézéssel, energetikai tanúsítvány elkészítésével és kedvező díjszabású ügyvéddel nyújtunk segítséget!
Ha Ön is szeretne többet megtudni erről az ingatlanról, vagy kérdései lennének, ne habozzon felkeresni minket bizalommal.
Az Ön elégedettsége a legfontosabb számunkra, és örömmel segítünk Önnek a legjobb döntés meghozatalában.