Eladó Ház- házrész
Hirdetéskód: 9255237
Duna House - Zalaegerszeg
142.00 m2
ALAPTERÜLET4
SZOBASZÁMnincs megadva
ÉPÍTÉSnincs megadva
FŰTÉS- CSOK igénybe vehető nem
- Tetőtér beépíthető nem
- Építés éve 2026
- Klíma nem
- Szigetelt nem
A+++
A++
A+
A
B
C
D
E
F
G
H
I
Az ingatlan leírása
ÚJ ÉPÍTÉSŰ A++, 2 TERASZOS CSALÁDI HÁZ ELADÓ ZALAEGERSZEGEN A GEBÁRTI-TÓ KÖZELÉBEN!
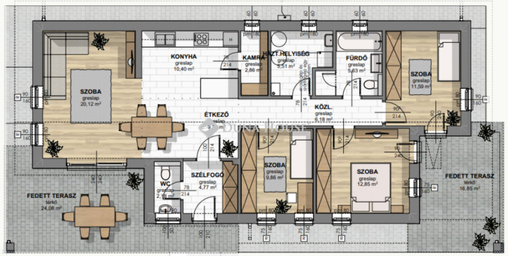
Eladásra kínálunk Zalaegerszegen, a kedvelt Gébárti-tó közelében egy 142 m²-es, új építésű, 2 teraszos családi házat, 545 m²-es telken, korszerű műszaki megoldásokkal és átgondolt alaprajzzal
Az ingatlan 3 szoba + tágas nappali elrendezésű, a két terasz pedig tökéletes lehetőséget biztosít pihenésre, családi és baráti összejövetelekhez, illetve a nappali természetes meghosszabbításaként szolgál a jó időben.
A ház 30 cm-es YTONG főfalakkal épül, kiváló hő- és vízszigeteléssel. A födémen 30 cm vastag, magas minőségű hőszigetelés, a homlokzaton 10 cm-es hőszigetelő rendszer biztosítja az alacsony energiafelhasználást és a kellemes belső klímát.
Fűtés és hűtés:
Az épület fűtése és meleg víz-ellátása levegő-víz rendszerű hőszivattyúval, padlófűtéssel történik, a hűtés fan-coil rendszerű. Tartalékként kondenzációs gázkazán is beépítésre kerül, H tarifás mérővel. A fürdőszobában elektromos törölközőszárító radiátor is helyet kap.
Nyílászárók és árnyékolás:
Prémium minőségű, 3 rétegű üvegezéssel ellátott Kömmerling 76 nyílászárók, Rolo vasalatokkal, antracit színben. A redőnyök és szúnyoghálók a vételár részét képezik, motoros kivitelben is kérhetők.
Belső kialakítás:
8 db fehér CPL beltéri ajtó
Hideg- és meleg burkolatok bruttó 8.000 Ft/m²-ig a vételár részeként
Igényesen csempézett vizes helyiségek
Glettelés után kétszeri fehér festés (egyedi szín felár ellenében)
Választható bejárati ajtó 150.000 Ft értékben, benne az árban
A tető antracit színű cserépfedéssel és minőségi bádogos szerkezetekkel készül.
Ez az otthon ideális választás azoknak, akik természetközeli környezetben, mégis Zalaegerszegen, modern, energiatakarékos, új építésű, teraszos családi házat keresnek.
További információért és megtekintésért keressen bizalommal!
Eladásra kínálunk Zalaegerszegen, a kedvelt Gébárti-tó közelében egy 142 m²-es, új építésű, 2 teraszos családi házat, 545 m²-es telken, korszerű műszaki megoldásokkal és átgondolt alaprajzzal
Az ingatlan 3 szoba + tágas nappali elrendezésű, a két terasz pedig tökéletes lehetőséget biztosít pihenésre, családi és baráti összejövetelekhez, illetve a nappali természetes meghosszabbításaként szolgál a jó időben.
A ház 30 cm-es YTONG főfalakkal épül, kiváló hő- és vízszigeteléssel. A födémen 30 cm vastag, magas minőségű hőszigetelés, a homlokzaton 10 cm-es hőszigetelő rendszer biztosítja az alacsony energiafelhasználást és a kellemes belső klímát.
Fűtés és hűtés:
Az épület fűtése és meleg víz-ellátása levegő-víz rendszerű hőszivattyúval, padlófűtéssel történik, a hűtés fan-coil rendszerű. Tartalékként kondenzációs gázkazán is beépítésre kerül, H tarifás mérővel. A fürdőszobában elektromos törölközőszárító radiátor is helyet kap.
Nyílászárók és árnyékolás:
Prémium minőségű, 3 rétegű üvegezéssel ellátott Kömmerling 76 nyílászárók, Rolo vasalatokkal, antracit színben. A redőnyök és szúnyoghálók a vételár részét képezik, motoros kivitelben is kérhetők.
Belső kialakítás:
8 db fehér CPL beltéri ajtó
Hideg- és meleg burkolatok bruttó 8.000 Ft/m²-ig a vételár részeként
Igényesen csempézett vizes helyiségek
Glettelés után kétszeri fehér festés (egyedi szín felár ellenében)
Választható bejárati ajtó 150.000 Ft értékben, benne az árban
A tető antracit színű cserépfedéssel és minőségi bádogos szerkezetekkel készül.
Ez az otthon ideális választás azoknak, akik természetközeli környezetben, mégis Zalaegerszegen, modern, energiatakarékos, új építésű, teraszos családi házat keresnek.
További információért és megtekintésért keressen bizalommal!