Eladó Ház- házrész
Hirdetéskód: 9309349
OC-Zalaegerszeg Eötvös
Felújításhoz személyi kölcsönt keres? Kalkuláljon itt! →
Ez a hirdetés megfelelhet a FIX 3%-os programnak.
Tudj meg többet a részletekről itt.
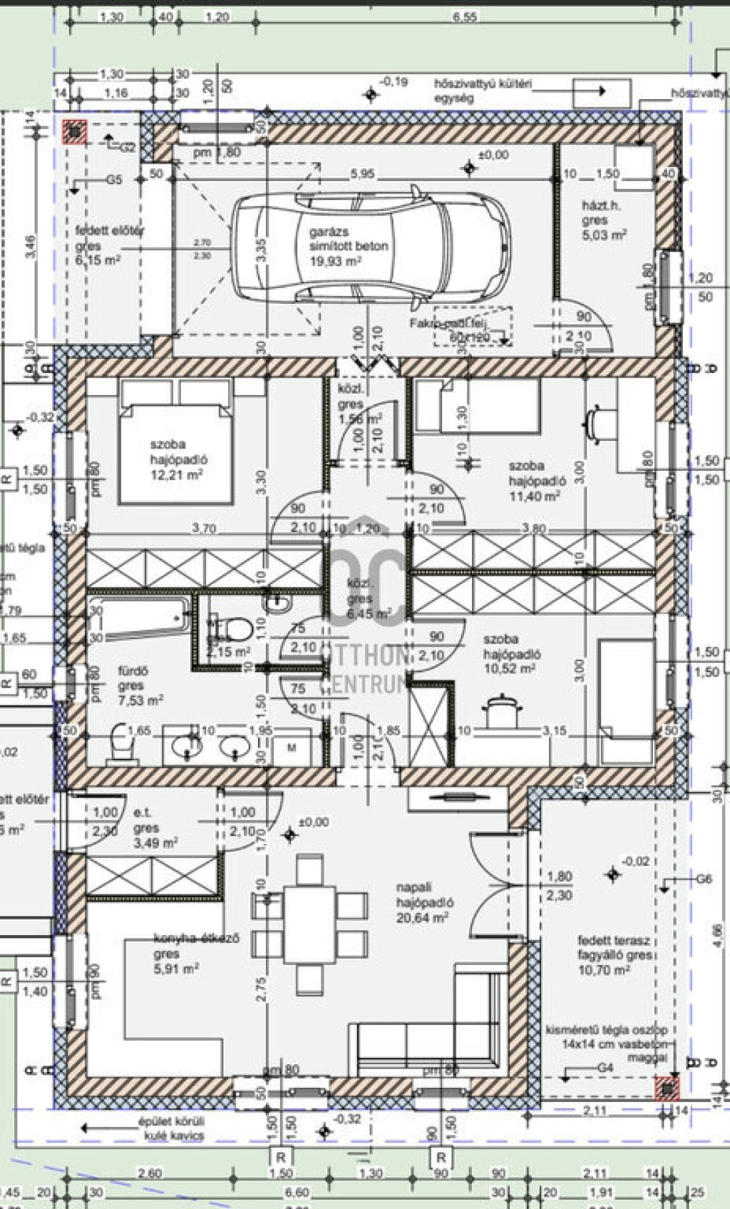
130.00 m2
ALAPTERÜLET4
SZOBASZÁMnincs megadva
ÉPÍTÉSEgyéb fűtés
FŰTÉS- CSOK igénybe vehető nem
- Tetőtér beépíthető nem
- Építés éve 2026
- Fűtés Egyéb fűtés
- Klíma nem
- Szigetelt nem
A+++
A++
A+
A
B
C
D
E
F
G
H
I
Az ingatlan leírása
Van egy pont, amikor már nem kompromisszumot keresi, hanem végre azt, ami igazán Önhöz illik. Ez a 130 nm-es, egyszintes családi ház pontosan erről szól.
Tágas nappali + 3 külön nyíló szoba – ahol mindenki megtalálja a saját terét. Letisztult formák, modern megoldások és egy otthon, ami már az első pillanatban megérinti.
Amitől igazán különleges:
- 700 nm-es telek
- Nappali +3 szoba
- Garázs
– Masszív Porotherm 30 N+F neo Rapid Dryfix falazat + 20 cm hőszigetelés → nyugalom és energiatakarékosság
– 3 rétegű, barna fóliás nyílászárók → elegancia kívül-belül
– Rejtett redőnyrendszer szúnyoghálóval → praktikum kompromisszumok nélkül
– Bramac Tectura Novo antracit tető → karakteres megjelenés
– BOSCH hőszivattyús rendszer padlófűtéssel → jövőálló technológia, alacsony rezsi
– Prémium Ravak és Grohe fürdőszobai szaniterek → válassza ki, ami igazán Ön
– Szabadon választható burkolatok → formálja a saját stílusára
A kulcsrakész állapot nem csak ígéret:
– térkövezett kocsibeálló
– járda
– minden készen áll, hogy beköltözzön
Ez nem egy sablonház. Ez egy lehetőség arra, hogy végre olyan otthona legyen, ami Önről szól.
Nekeresdi városrész – nyugodt környezet, mégis közel mindenhez.
Amennyiben a képek és a leírás alapján az ingatlan felkeltette az érdeklődését, keressen bizalommal a megadott elérhetőségeken, keresse az ingatlant a honlapunkon, több kép is segíti Önt a választásban!
Irodánk teljes körű, díjmentes szolgáltatást nyújt kereső ügyfeleinknek, amennyiben Önnek hitelre van szüksége, segítünk! Szakszerű tanácsadással, hitel ügyintézéssel, energetikai tanúsítvány elkészítésével és kedvező díjszabású ügyvéddel nyújtunk segítséget!
Tágas nappali + 3 külön nyíló szoba – ahol mindenki megtalálja a saját terét. Letisztult formák, modern megoldások és egy otthon, ami már az első pillanatban megérinti.
Amitől igazán különleges:
- 700 nm-es telek
- Nappali +3 szoba
- Garázs
– Masszív Porotherm 30 N+F neo Rapid Dryfix falazat + 20 cm hőszigetelés → nyugalom és energiatakarékosság
– 3 rétegű, barna fóliás nyílászárók → elegancia kívül-belül
– Rejtett redőnyrendszer szúnyoghálóval → praktikum kompromisszumok nélkül
– Bramac Tectura Novo antracit tető → karakteres megjelenés
– BOSCH hőszivattyús rendszer padlófűtéssel → jövőálló technológia, alacsony rezsi
– Prémium Ravak és Grohe fürdőszobai szaniterek → válassza ki, ami igazán Ön
– Szabadon választható burkolatok → formálja a saját stílusára
A kulcsrakész állapot nem csak ígéret:
– térkövezett kocsibeálló
– járda
– minden készen áll, hogy beköltözzön
Ez nem egy sablonház. Ez egy lehetőség arra, hogy végre olyan otthona legyen, ami Önről szól.
Nekeresdi városrész – nyugodt környezet, mégis közel mindenhez.
Amennyiben a képek és a leírás alapján az ingatlan felkeltette az érdeklődését, keressen bizalommal a megadott elérhetőségeken, keresse az ingatlant a honlapunkon, több kép is segíti Önt a választásban!
Irodánk teljes körű, díjmentes szolgáltatást nyújt kereső ügyfeleinknek, amennyiben Önnek hitelre van szüksége, segítünk! Szakszerű tanácsadással, hitel ügyintézéssel, energetikai tanúsítvány elkészítésével és kedvező díjszabású ügyvéddel nyújtunk segítséget!