Eladó Ház- házrész
Hirdetéskód: 9185194
OTP Ingatlanpont Siófok
Felújításhoz személyi kölcsönt keres? Kalkuláljon itt! →
Ez a hirdetés megfelelhet a FIX 3%-os programnak.
Tudj meg többet a részletekről itt.
87.00 m2
ALAPTERÜLET2
SZOBASZÁMnincs megadva
ÉPÍTÉSHázközponti
FŰTÉS- CSOK igénybe vehető nem
- Tetőtér beépíthető nem
- Építés éve 1970
- Fűtés Házközponti
- Klíma nem
- Szigetelt nem
A+++
A++
A+
A
B
C
D
E
F
G
H
I
Az ingatlan leírása
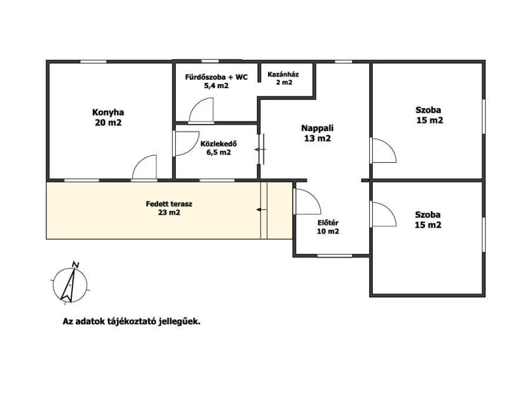
Eladó felújított családi ház Zalában, Tabtól 2-3 km-re, a Balatontól mindössze 25 km-re.
Csendes zsákfalu, nyugalom és vidéki élet várja új tulajdonosát ebben a felújított házban. A két nagy szoba hajópadlóval és gerendás mennyezettel készült, a többi helyiség kerámialappal burkolt, miközben a gerendás mennyezet végig kíséri az egész házat, hangulatos és karakteres tereket teremtve.
A fűtés cserépkályhás központi rendszerrel működik, amely radiátorokon keresztül biztosítja a meleget az egész házban, a konyhában pedig plusz kandalló fokozza a hangulatot. A ház vegyes falazatú, az eredeti részen megőrizték a vályogfalat, a hozzáépített rész téglaépítésű. A tetőszerkezet új, a régi cserepek visszakerültek, a padlás pedig minőségi szigetelést kapott.
Az ingatlan víz- és villanyhálózata teljes körűen felújított, villanybojlerrel felszerelt, a gázcsonk a telken belül található. A házhoz nagy, fedett terasz tartozik.
A tágas, 5498 m2-es telek egy része jelenleg állattartásra használhat, másik része szántóként művelt terület.
A beépített konyhabútor, a cserépkályha és a kandalló az ár részét képezi, így a ház beköltözésre készen áll.
A tulajdonviszonyok rendezettek, az ingatlan per-és tehermentes.
Megfelel az Otthon Start Program feltételeinek.
Az energetikai tanúsítvány készítése folyamatban van, amint rendelkezésre áll, úgy azzal a hirdetés frissítésre kerül.
Csendes zsákfalu, nyugalom és vidéki élet várja új tulajdonosát ebben a felújított házban. A két nagy szoba hajópadlóval és gerendás mennyezettel készült, a többi helyiség kerámialappal burkolt, miközben a gerendás mennyezet végig kíséri az egész házat, hangulatos és karakteres tereket teremtve.
A fűtés cserépkályhás központi rendszerrel működik, amely radiátorokon keresztül biztosítja a meleget az egész házban, a konyhában pedig plusz kandalló fokozza a hangulatot. A ház vegyes falazatú, az eredeti részen megőrizték a vályogfalat, a hozzáépített rész téglaépítésű. A tetőszerkezet új, a régi cserepek visszakerültek, a padlás pedig minőségi szigetelést kapott.
Az ingatlan víz- és villanyhálózata teljes körűen felújított, villanybojlerrel felszerelt, a gázcsonk a telken belül található. A házhoz nagy, fedett terasz tartozik.
A tágas, 5498 m2-es telek egy része jelenleg állattartásra használhat, másik része szántóként művelt terület.
A beépített konyhabútor, a cserépkályha és a kandalló az ár részét képezi, így a ház beköltözésre készen áll.
A tulajdonviszonyok rendezettek, az ingatlan per-és tehermentes.
Megfelel az Otthon Start Program feltételeinek.
Az energetikai tanúsítvány készítése folyamatban van, amint rendelkezésre áll, úgy azzal a hirdetés frissítésre kerül.