Eladó Ház- házrész
Hirdetéskód: 9038470
BJ Ingatlanközvetítő Társulás
Felújításhoz személyi kölcsönt keres? Kalkuláljon itt! →181.00 m2
ALAPTERÜLET4
SZOBASZÁMTégla
ÉPÍTÉSEgyéb fűtés
FŰTÉS- CSOK igénybe vehető igen
- Belső szintek 2
- Tetőtér beépíthető nem
- Ingatlan komfort Duplakomfortos
- Parkolási lehetőség Önálló garázs
- Építés éve 2025
- Fűtés Egyéb fűtés
- Építőanyag Tégla
- Erkély, terasz Terasz
- Klíma nem
- Szigetelt nem
A+++
A++
A+
A
B
C
D
E
F
G
H
I
Az ingatlan leírása
Vonyarcvashegy újonnan parcellázott részén, pár perc sétára a Balaton partjától kínálom eladásra ezt az új építésű, prémium minőségű családi házat.
Az épület tartószerkezete Leiertherm 30 NF téglából készült, a válaszfalak Leiertherm 10 NF téglából épültek, a födém monolit vasbeton szerkezetű. A fa tetőszerkezetet Bramac Tectura tetőcserép borítja.
A falazatot 12 cm vastag ATH80 szigetelés, a lábazatot pedig 12 cm Austrotherm XPS szigetelés borítja. A padlóban 10 cm, a köztes födémben 4 cm szigetelés található, míg a tető 30 cm Isover Akuplat üveggyapottal lett szigetelve.
A kétszintes épület tágas terekkel rendelkezik. Déli tájolásának és a nagyméretű, háromrétegű, prémium minőségű Salamander ablakoknak köszönhetően a belső terek rendkívül világosak. Az ablakok szúnyoghálóval és elektromos rolóval is ellátottak.
Helyiségek:
Alsó szint (131,92 m²):
Közlekedő (szélfogó): 4,04 m²
Előszoba: 6,68 m²
Nappali: 16,44 m²
Konyha-étkező: 30,18 m²
WC: 1,4 m²
Közlekedő: 1,4 m²
Hálószoba: 11,95 m²
Fürdőszoba: 5,04 m²
Háztartási helyiség: 3,24 m²
Gépkocsibeálló: 27,84 m²
Garázs: 23,71 m²
Terasz: 22,8 m²
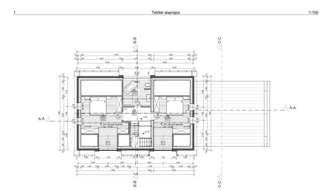
Felső szint (nettó 49,51 m², bruttó 54,57 m²):
Közlekedő: 4,68 m²
Hálószoba: 19,09 m² (bruttó 22 m²)
Hálószoba: 16,59 m² (bruttó 18,74 m²)
Fürdőszoba: 9,15 m²
Az épület fűtését és meleg vízellátását hőszivattyú biztosítja, padlófűtéssel. A hálószobákban és a nappali-konyha térben fan-coil rendszer gondoskodik a kellemes hőmérsékletről a nyári hónapokban. A friss levegőt hővisszanyerő rendszer biztosítja.
A ház kulcsrakész állapotban kerül értékesítésre, napelemes rendszerrel felszerelve, elektromos kapuval rendezett kerttel. Az elektromos autótöltő, valamint a kamera- és riasztórendszer előkészítése megtörtént.
Várható átadás 2026 júliusában!
Az ingatlan egy hat épületből álló, új építésű projekt része. További információkért irodánk készséggel áll rendelkezésére.
Vonyarcvashegy egy kedvelt üdülőhely, mindössze 10 perc autóútra Keszthelytől. A településen bölcsőde, óvoda, általános iskola és orvosi ellátás is elérhető. A népszerű LIDO strand kerékpárral csupán 5 percre található.
Az épület jelenleg szerkezetkész állapotban van.
Előzetes egyeztetés alapján szívesen megmutatom!
Keressen bizalommal!
Lénárt István
BJ Ingatlan
Az épület tartószerkezete Leiertherm 30 NF téglából készült, a válaszfalak Leiertherm 10 NF téglából épültek, a födém monolit vasbeton szerkezetű. A fa tetőszerkezetet Bramac Tectura tetőcserép borítja.
A falazatot 12 cm vastag ATH80 szigetelés, a lábazatot pedig 12 cm Austrotherm XPS szigetelés borítja. A padlóban 10 cm, a köztes födémben 4 cm szigetelés található, míg a tető 30 cm Isover Akuplat üveggyapottal lett szigetelve.
A kétszintes épület tágas terekkel rendelkezik. Déli tájolásának és a nagyméretű, háromrétegű, prémium minőségű Salamander ablakoknak köszönhetően a belső terek rendkívül világosak. Az ablakok szúnyoghálóval és elektromos rolóval is ellátottak.
Helyiségek:
Alsó szint (131,92 m²):
Közlekedő (szélfogó): 4,04 m²
Előszoba: 6,68 m²
Nappali: 16,44 m²
Konyha-étkező: 30,18 m²
WC: 1,4 m²
Közlekedő: 1,4 m²
Hálószoba: 11,95 m²
Fürdőszoba: 5,04 m²
Háztartási helyiség: 3,24 m²
Gépkocsibeálló: 27,84 m²
Garázs: 23,71 m²
Terasz: 22,8 m²
Felső szint (nettó 49,51 m², bruttó 54,57 m²):
Közlekedő: 4,68 m²
Hálószoba: 19,09 m² (bruttó 22 m²)
Hálószoba: 16,59 m² (bruttó 18,74 m²)
Fürdőszoba: 9,15 m²
Az épület fűtését és meleg vízellátását hőszivattyú biztosítja, padlófűtéssel. A hálószobákban és a nappali-konyha térben fan-coil rendszer gondoskodik a kellemes hőmérsékletről a nyári hónapokban. A friss levegőt hővisszanyerő rendszer biztosítja.
A ház kulcsrakész állapotban kerül értékesítésre, napelemes rendszerrel felszerelve, elektromos kapuval rendezett kerttel. Az elektromos autótöltő, valamint a kamera- és riasztórendszer előkészítése megtörtént.
Várható átadás 2026 júliusában!
Az ingatlan egy hat épületből álló, új építésű projekt része. További információkért irodánk készséggel áll rendelkezésére.
Vonyarcvashegy egy kedvelt üdülőhely, mindössze 10 perc autóútra Keszthelytől. A településen bölcsőde, óvoda, általános iskola és orvosi ellátás is elérhető. A népszerű LIDO strand kerékpárral csupán 5 percre található.
Az épület jelenleg szerkezetkész állapotban van.
Előzetes egyeztetés alapján szívesen megmutatom!
Keressen bizalommal!
Lénárt István
BJ Ingatlan