Eladó Ház- házrész
Hirdetéskód: 9236385

ingatlanhirdeto

0.00 m2
ALAPTERÜLET
3
SZOBASZÁM
nincs megadva
ÉPÍTÉS
nincs megadva
FŰTÉS
  • CSOK igénybe vehető nem
  • Belső szintek 1
  • Tetőtér beépíthető nem
  • Építés éve 2027
  • Klíma nem
  • Szigetelt nem
Energetikai besorolás: Nincs meghatározva
A+++
A++
A+
A
B
C
D
E
F
G
H
I

Az ingatlan leírása


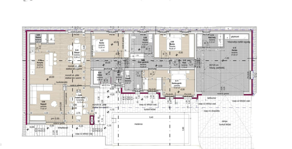
Emeleti elhelyezkedés: Földszinten Épület emeleteinek száma: 1 Állapota: átlagos Komfort besorolása: Luxus komfortos Építési éve: 2027 Alapterülete: 194 m2 Telekterülete: 1 m2 Szobák száma: 3szoba Közművek: Gáz, Víz, Villany, Csatorna Vízellátás: Vezetékes víz, Közelben Áramellátás: Telekhatáron, Közelben Homlokzat állapot: átlagos Építési mód: Tégla Napelem: Van Energetikai besorolás: Nincs adat

Extrák: Különnyíló szobák, Étkező, Energetikai tanúsítvány
Eladó luxus ingatlan panorámás balatoni kilátással!

Kivételes lehetőség a Balaton egyik legszebb pontján! Ez a modern, exkluzív otthon a luxus és a természet harmóniáját kínálja. A három tágas hálószoba, a nagy amerikai konyha-étkező és a világos nappali a kényelmet és a kifinomultságot ötvözi.

A fedett teraszról lenyűgöző panoráma tárul a Balatonra – tökéletes helyszín a reggeli kávéhoz, családi vacsorákhoz vagy baráti összejövetelekhez.

A házhoz tartozó impozáns garázs, elegáns kő- és faelemekkel díszített homlokzat, valamint gondosan megtervezett kert biztosítja a valódi luxus életérzést.

Kiemelt jellemzők:

3 hálószoba

Nagy amerikai konyha-étkező

Nappali és fedett terasz balatoni panorámával

Modern, minőségi anyagokból épülő luxus kivitelezés

Tágas garázs

Ez az otthon nem csupán ingatlan, hanem életstílus – azoknak, akik szeretik a minőséget és a nyugalmat.

⚠️ Az ingatlan jelenleg építés alatt áll. A feltüntetett képek látványtervek, az alaprajz tájékoztató jellegű, a vevő igényei szerint módosítható.

Kérdés esetén keressen bizalommal!

Térkép

A hirdető elérhetősége

ingatlanhirdeto

Málics Máté
+36 30 566