Eladó Ház- házrész
Hirdetéskód: 9318111
Balatonfűzfő Munkás tér 3 - OTP Ingatlanpont Iroda
Felújításhoz személyi kölcsönt keres? Kalkuláljon itt! →350.00 m2
ALAPTERÜLET6
SZOBASZÁMnincs megadva
ÉPÍTÉSElektromos
FŰTÉS- CSOK igénybe vehető nem
- Belső szintek 2
- Tetőtér beépíthető nem
- Építés éve 2026
- Fűtés Elektromos
- Klíma nem
- Szigetelt nem
A+++
A++
A+
A
B
C
D
E
F
G
H
I
Az ingatlan leírása
Panorámás, modern családi villa a Gulya-domb szomszédságában
Veszprém egyik kiemelt, kertvárosias részén, a Veszprémvölgyi úton kínálunk megvételre egy engedélyezett tervek alapján megvalósítható, modern megjelenésű, kétszintes családi házat, 2.391 m?-es telken, a Gulya-domb közvetlen szomszédságában.
Az ingatlan a természetközeli életérzést és a városi kényelem elérhetőségét egyesíti ? tágas terekkel, nagy teraszokkal és átgondolt funkcionális elrendezéssel.
Az épület hasznos alapterülete: 297,65 m2 + 70 m2 terasz + 40 m2 garázs
Szintek száma: 2
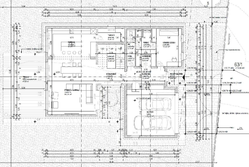
Földszint ? nagyvonalú közösségi terek és közvetlen kertkapcsolat
-Dupla garázs: 40 m2
-48,75 m2-es nappali + étkező
-26,23 m2-es konyha
-Vendégszoba saját fürdővel
-Tároló, gardrób
-47 m2-es terasz, prémium WPC teraszburkolattal
A földszinti nappali és étkező közvetlen kapcsolata a nagyméretű, 47 m2-es WPC burkolatú terasszal kiváló lehetőséget biztosít családi és baráti összejövetelekhez, kültéri étkezésekhez.
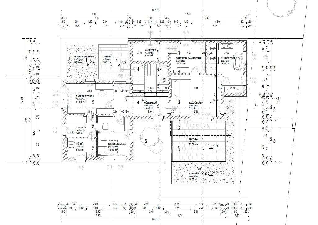
Emelet ? privát élettér teraszkapcsolattal
-Szülői háló saját fürdőszobával és gardróbbal
-Két gyerekszoba
-Külön fürdőszoba
-Gardrób / pánikszoba
-Gépészeti helyiség
-23 m2-es emeleti terasz
Az emeleti, 23 m2-es terasz intim, panorámás pihenőtérként funkcionálhat ? ideális reggeli kávéhoz vagy esti kikapcsolódáshoz.
Műszaki tartalom ? korszerű és energiahatékony megoldások
-Levegős hőszivattyús rendszer fűtésre és hűtésre
-Padlófűtés és fan-coil rendszer
-Napelemes rendszer előkészítés
-15 cm homlokzati hőszigetelés
-Korszerű, hőszigetelt nyílászárók (?1,15 W/m2K)
-Csapadékvíz gyűjtés és részbeni újrahasznosítás
Lokáció ? természetközeli, mégis központi
Az ingatlan a Gulya-domb szomszédságában található, csendes, zöldövezeti környezetben.
Távolságok:
Óváros tér: 2,8 km
Balaton Pláza: 3,5 km
Interspar: 5 km
Így a történelmi belváros, bevásárlási lehetőségek és mindennapi szolgáltatások néhány perc alatt elérhetők.
Kinek ideális?
-Többgyermekes családnak
-Otthoni munkavégzésre is alkalmas életteret keresőknek
-Prémium minőséget és nagy telket kereső vevőknek
-Hosszú távon értékálló ingatlant kereső befektetőknek
Fontos információ az árra és készültségre vonatkozóan:
Az irányár a jelenlegi, szerkezetkész állapotra vonatkozik. Az ingatlan befejezése folyamatban van, amely a leendő tulajdonos igényei szerint alakítható. A befejezéshez két kivitelezőtől is rendelkezésre áll részletes ajánlat, így a további munkálatok tervezhetően és ellenőrizhető költségek mellett valósíthatók meg.
Az ingatlan az OTP Ingatlanpont kínálatában érhető el, OTP bankcsoporti háttérrel, amely biztonságos és átlátható ügyintézést biztosít.
Amennyiben szeretné részletesen megismerni a terveket vagy személyesen is megtekintené a telket, kérem keressen bizalommal.
Veszprém egyik kiemelt, kertvárosias részén, a Veszprémvölgyi úton kínálunk megvételre egy engedélyezett tervek alapján megvalósítható, modern megjelenésű, kétszintes családi házat, 2.391 m?-es telken, a Gulya-domb közvetlen szomszédságában.
Az ingatlan a természetközeli életérzést és a városi kényelem elérhetőségét egyesíti ? tágas terekkel, nagy teraszokkal és átgondolt funkcionális elrendezéssel.
Az épület hasznos alapterülete: 297,65 m2 + 70 m2 terasz + 40 m2 garázs
Szintek száma: 2
Földszint ? nagyvonalú közösségi terek és közvetlen kertkapcsolat
-Dupla garázs: 40 m2
-48,75 m2-es nappali + étkező
-26,23 m2-es konyha
-Vendégszoba saját fürdővel
-Tároló, gardrób
-47 m2-es terasz, prémium WPC teraszburkolattal
A földszinti nappali és étkező közvetlen kapcsolata a nagyméretű, 47 m2-es WPC burkolatú terasszal kiváló lehetőséget biztosít családi és baráti összejövetelekhez, kültéri étkezésekhez.
Emelet ? privát élettér teraszkapcsolattal
-Szülői háló saját fürdőszobával és gardróbbal
-Két gyerekszoba
-Külön fürdőszoba
-Gardrób / pánikszoba
-Gépészeti helyiség
-23 m2-es emeleti terasz
Az emeleti, 23 m2-es terasz intim, panorámás pihenőtérként funkcionálhat ? ideális reggeli kávéhoz vagy esti kikapcsolódáshoz.
Műszaki tartalom ? korszerű és energiahatékony megoldások
-Levegős hőszivattyús rendszer fűtésre és hűtésre
-Padlófűtés és fan-coil rendszer
-Napelemes rendszer előkészítés
-15 cm homlokzati hőszigetelés
-Korszerű, hőszigetelt nyílászárók (?1,15 W/m2K)
-Csapadékvíz gyűjtés és részbeni újrahasznosítás
Lokáció ? természetközeli, mégis központi
Az ingatlan a Gulya-domb szomszédságában található, csendes, zöldövezeti környezetben.
Távolságok:
Óváros tér: 2,8 km
Balaton Pláza: 3,5 km
Interspar: 5 km
Így a történelmi belváros, bevásárlási lehetőségek és mindennapi szolgáltatások néhány perc alatt elérhetők.
Kinek ideális?
-Többgyermekes családnak
-Otthoni munkavégzésre is alkalmas életteret keresőknek
-Prémium minőséget és nagy telket kereső vevőknek
-Hosszú távon értékálló ingatlant kereső befektetőknek
Fontos információ az árra és készültségre vonatkozóan:
Az irányár a jelenlegi, szerkezetkész állapotra vonatkozik. Az ingatlan befejezése folyamatban van, amely a leendő tulajdonos igényei szerint alakítható. A befejezéshez két kivitelezőtől is rendelkezésre áll részletes ajánlat, így a további munkálatok tervezhetően és ellenőrizhető költségek mellett valósíthatók meg.
Az ingatlan az OTP Ingatlanpont kínálatában érhető el, OTP bankcsoporti háttérrel, amely biztonságos és átlátható ügyintézést biztosít.
Amennyiben szeretné részletesen megismerni a terveket vagy személyesen is megtekintené a telket, kérem keressen bizalommal.