Eladó Ház- házrész
Hirdetéskód: 9228694

CsornaIngatlan

Felújításhoz személyi kölcsönt keres? Kalkuláljon itt! →
FIX 3% Program

Ez a hirdetés megfelelhet a FIX 3%-os programnak.
Tudj meg többet a részletekről itt.

174.00 m2
ALAPTERÜLET
4
SZOBASZÁM
Tégla
ÉPÍTÉS
Központi fűtés
FŰTÉS
  • Belső szintek 1
  • Kilátás Udvari
  • Ingatlan komfort Összkomfortos
  • Parkolási lehetőség Önálló garázs
  • Építés éve 2025
  • Fűtés Központi fűtés
  • Építőanyag Tégla
  • Erkély, terasz Terasz 26.00m2
  • Szigetelt igen
  • Bútorozott nem
  • Víz telken belül
  • Csatorna telken belül
  • Gáz utcában
  • Villany telken belül
Energetikai besorolás: Nincs meghatározva
A+++
A++
A+
A
B
C
D
E
F
G
H
I

Az MBH Bank személyi kölcsön ajánlata

Fizetett hirdetés
1 millió Ft
6 évre
20 585 Ft/hó
THM: 14.5%
Részletek →
2 millió Ft
6 évre
41 169 Ft/hó
THM: 14.5%
Részletek →
3 millió Ft
6 évre
61 754 Ft/hó
THM: 14.5%
Részletek →

A tájékoztatás nem teljes körű és nem minősül ajánlattételnek.

Az ingatlan leírása

 


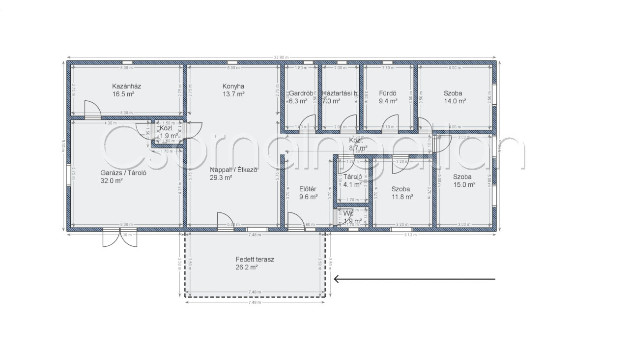
Veszkény - 174 m2-es alapterületű új építésű családi ház 721 m2-es telken eladó.


 


HELYISÉGEK:


- 3 külön bejáratú szoba (11,84 m2; 14 m2; 15 m2)


- tágas nappali + étkező (30 m2)


- konyha (14 m2)


- háztartási helyiség (7 m2)


- méretes fürdő (9,45 m2), külön helyiségben a toalett


- gardrób (6,29 m2)


- tároló (4 m2)


- előtér (13,17 m2)


 


A garázs a lakótérből megközelíthető:


- kazánház (17 m2)


- garázs (32,34 m2) Hörmann szekcionált garázskapuval


- fedett terasz (26 m2)


 


MŰSZAKI JELLEMZŐK:


- Porotherm tégla falazat


- Terrán betoncserép tetőfedés


- Lindab ereszcsatorna


- műanyag nyílászárók 3 rétegű hőszigetelő üvegezéssel


- 15 cm vastag hőszigetelés


- fűtés faelgázosító kazánnal, puffertartály segítségével, központi szabályozóval


- hőleadás padlófűtés és radiátorok által


- meleg víz villanybojler által


 


FONTOS LEHET:


- a lakóház központhoz közeli csendes utcában található


- az ingatlan fűtéskész állapotban azonnal átvehető


- rövid határidővel akár kulcsrakészen is birtokba vehető


- lehetőség van a burkolatok színben és minőségi választására is


 


TELEK:


- 721 m2


- parkolni burkolt kocsibeállón és a házból megközelíthető garázsban is lehetséges


- előkert


 


VESZKÉNY:


A kb. 900 fős település Kapuvártól 8 km-re, Csornától 14 km-re fekszik


- vonattal, busszal jól megközelíthető


- óvoda, általános iskola


- orvosi, védőnői, állatorvosi szolgálat


- boltok, posta stb. helyben megtalálható

Térkép

A hirdető elérhetősége

CsornaIngatlan

Fodor Erika
+36 20 501