Eladó Ház- házrész
Hirdetéskód: 9280745
GDN Ingatlanhálózat - Best Sellers
Felújításhoz személyi kölcsönt keres? Kalkuláljon itt! →145.00 m2
ALAPTERÜLET5
SZOBASZÁMnincs megadva
ÉPÍTÉSnincs megadva
FŰTÉS- CSOK igénybe vehető nem
- Tetőtér beépíthető nem
- Klíma nem
- Szigetelt nem
A+++
A++
A+
A
B
C
D
E
F
G
H
I
Az ingatlan leírása
Eladásra kínáljuk egy új építésű projetben, 960 nm-es telken épülő ikerház mindkét felét Veresegyház kertvárosi részén, a Harmatok városrészben, gyönyörű természeti környezetben, aszfaltozott utcában.
Jelen ikerház fél nettó 145 nm hasznos alapterületű két szintes épület + 20 nm-es fedett garázs, valamint 20 nm-es terasz és fedett belépő.
Az ingatlan 5 szobával rendelkezik és majd 500 nm-es telekrész tartozik hozzá.
HELYISÉGEK:
Földszint
Nappali: 19,5 nm
Étkező-konyha: 18,5 nm
Szoba1: 10 nm
Előtér: 8,6 nm
Kamra : 2,2 nm
Fürdő1: 3, 5 nm
Lépcsőház: 2,4 nm
+1,8 nm fedett belépő+19 nm terasz+20 nm garázs
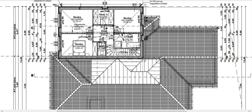
Emelet
Szoba2: 12,4 nm
Szoba3: 10,3 nm
Szoba4: 12,8 nm
Hátartási helyiség: 5 nm
Fürdő2: 6,5 nm
WC: 1,7 nm
Közlekedő: 5,9 nm
Lépcsőház: 4,7 nm
Nappali+ 4 hálószoba, dupla komfort!
MŰSZAKI TARTALOM:
Az épület PTH 30-as falazóelemből, 12cm-es aljzatszigeteléssel, 10cm-es grafitos EPS homlokzati és 25cm-es födém hőszigeteléssel, beton födémmel, Bramac betoncserép fedéssel épül. Korszerű 5-légkamrás műanyag nyílászárók kerülnek beépítésre 3 rétegű üvegezéssel, elektromos redőny előkészítéssel.
A fűtést, hűtést és meleg víz ellátást a legkorszerűbb hőszivattyús rendszer működteti beépített puffertartállyal kiegészítve, padlófűtéses hőleadással, H-tarifás villanyórával. Napelem és riasztó rendszer előkészítést valamint minden szobában klíma kiállást tartalmazza az ár.
KÖRNYEZET:
Veresegyház egyik legszebb városrészében, kertvárosi környezetben épül az ingatlan.
Ajánlom mindenkinek, akik nyugodt, zöldövezeti környezetben szeretnének élni.
Veresegyház rendekezik minden olyan infrastruktúrával, amely a mindennapi élethez elengedhetetlen: iskolák, óvodák, bevásárlási lehetőségek széles választéka, sportcentrumok, színház, egészségügyi központ.
Helyi és kistérségi buszok könnyítik a közlekedést.
Budapest mind tömegközlekedéssel, mind autóval 20-45 perc alatt elérhető.
A beruházó több évtizedes tapasztalattal rendelkező, tőke erős cég, referenciáik a környéken igény esetén megtekinthetőek.
Tervezett átadás. 2026.III. negyedévben.
Ugyanitt az ikerház másik fele is eladó, amely 1 szintes, 4 szobás épület, hasonló műszaki tartalommal, amelynek az irányára: 145 800 000 Ft
Az ingatlanok 10% -al leköthetők!
TÁMOGATOTT ÉS PIACI HITELEKBEN KOLLÉGÁINK OTTHON VANNAK.
EBBEN IS ÁLLUNK VEVŐINK RENDELKEZÉSÉRE.
Várom megtisztelő hívását.
ID:392756 ...TOVÁBBI, TÖBBEZRES INGATLAN KÍNÁLAT: - GDN azonosító: 392756
Jelen ikerház fél nettó 145 nm hasznos alapterületű két szintes épület + 20 nm-es fedett garázs, valamint 20 nm-es terasz és fedett belépő.
Az ingatlan 5 szobával rendelkezik és majd 500 nm-es telekrész tartozik hozzá.
HELYISÉGEK:
Földszint
Nappali: 19,5 nm
Étkező-konyha: 18,5 nm
Szoba1: 10 nm
Előtér: 8,6 nm
Kamra : 2,2 nm
Fürdő1: 3, 5 nm
Lépcsőház: 2,4 nm
+1,8 nm fedett belépő+19 nm terasz+20 nm garázs
Emelet
Szoba2: 12,4 nm
Szoba3: 10,3 nm
Szoba4: 12,8 nm
Hátartási helyiség: 5 nm
Fürdő2: 6,5 nm
WC: 1,7 nm
Közlekedő: 5,9 nm
Lépcsőház: 4,7 nm
Nappali+ 4 hálószoba, dupla komfort!
MŰSZAKI TARTALOM:
Az épület PTH 30-as falazóelemből, 12cm-es aljzatszigeteléssel, 10cm-es grafitos EPS homlokzati és 25cm-es födém hőszigeteléssel, beton födémmel, Bramac betoncserép fedéssel épül. Korszerű 5-légkamrás műanyag nyílászárók kerülnek beépítésre 3 rétegű üvegezéssel, elektromos redőny előkészítéssel.
A fűtést, hűtést és meleg víz ellátást a legkorszerűbb hőszivattyús rendszer működteti beépített puffertartállyal kiegészítve, padlófűtéses hőleadással, H-tarifás villanyórával. Napelem és riasztó rendszer előkészítést valamint minden szobában klíma kiállást tartalmazza az ár.
KÖRNYEZET:
Veresegyház egyik legszebb városrészében, kertvárosi környezetben épül az ingatlan.
Ajánlom mindenkinek, akik nyugodt, zöldövezeti környezetben szeretnének élni.
Veresegyház rendekezik minden olyan infrastruktúrával, amely a mindennapi élethez elengedhetetlen: iskolák, óvodák, bevásárlási lehetőségek széles választéka, sportcentrumok, színház, egészségügyi központ.
Helyi és kistérségi buszok könnyítik a közlekedést.
Budapest mind tömegközlekedéssel, mind autóval 20-45 perc alatt elérhető.
A beruházó több évtizedes tapasztalattal rendelkező, tőke erős cég, referenciáik a környéken igény esetén megtekinthetőek.
Tervezett átadás. 2026.III. negyedévben.
Ugyanitt az ikerház másik fele is eladó, amely 1 szintes, 4 szobás épület, hasonló műszaki tartalommal, amelynek az irányára: 145 800 000 Ft
Az ingatlanok 10% -al leköthetők!
TÁMOGATOTT ÉS PIACI HITELEKBEN KOLLÉGÁINK OTTHON VANNAK.
EBBEN IS ÁLLUNK VEVŐINK RENDELKEZÉSÉRE.
Várom megtisztelő hívását.
ID:392756 ...TOVÁBBI, TÖBBEZRES INGATLAN KÍNÁLAT: - GDN azonosító: 392756