Eladó Ház- házrész
Hirdetéskód: 9235478
Szi-We Otthona Kft.
125 m2
ALAPTERÜLET5
SZOBASZÁMnincs megadva
ÉPÍTÉSnincs megadva
FŰTÉS- CSOK igénybe vehető nem
- Tetőtér beépíthető nem
- Építés éve 2025
- Klíma nem
- Szigetelt nem
A+++
A++
A+
A
B
C
D
E
F
G
H
I
Az ingatlan leírása
Új építésű, prémium minőségű családi ház eladó Veresegyház festői környezetében!
Veresegyház egyik legszebb, csendes, kertvárosi részén kínálunk eladásra egy 2025-ben épülő, földszintes, kimagasló minőségben kivitelezett családi házat.
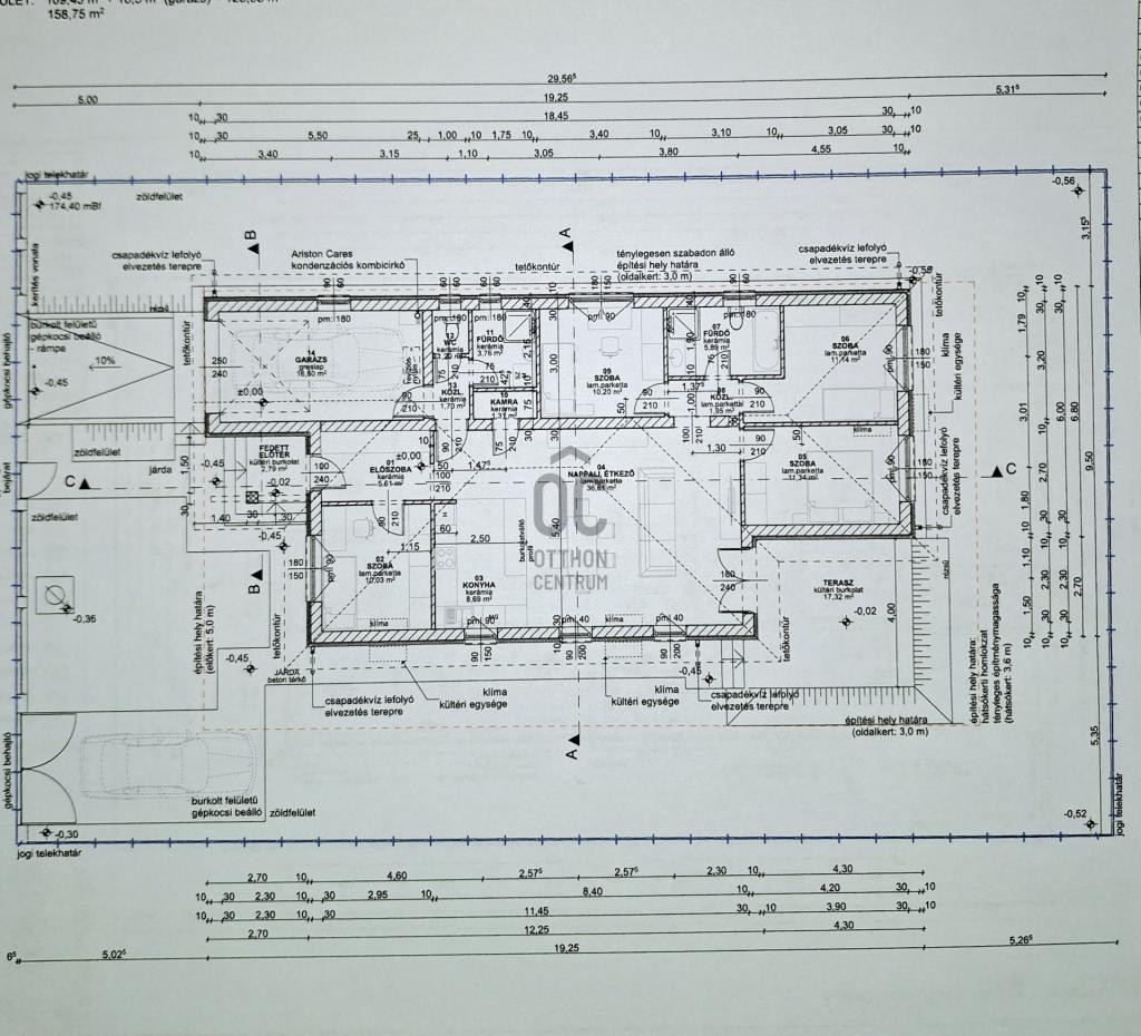
Nettó alapterület: 125,93 m²
Bruttó alapterület: 158,75 m²
Szobák száma: 4 különnyíló szoba
Fürdőszobák: 2 fürdő + különálló WC
Terasz: 20 m², dél-nyugati tájolással
A ház 275 cm-es belmagassággal, világos, átgondolt alaprajzzal, praktikus elrendezéssel és modern műszaki megoldásokkal készül, így tökéletes választás azoknak, akik hosszú távra keresnek értékálló, kényelmes otthont.
Kiemelkedő műszaki tartalom:
30 cm POROTHERM vázkerámia falazat + 10 cm grafitos EPS szigetelés (Austrotherm Reflex)
12 cm lépésálló EPS hőszigetelés a padlószerkezetben (Austrotherm AT-N100)
BRAMAC cserépfedésű magastető, páraáteresztő fóliás alátéttel
Láng- és gombamentesített tetőszerkezet
Fagyálló burkolatok kültéren
Korszerű fűtés előkészítés, igény szerint választható rendszerrel
Gáz cirkó padlófűtés
Minden szoba külön bejáratú
Lokáció és környezet:
A ház festői környezetben, halastó közelében helyezkedik el, távol a város zajától, mégis kiváló közlekedéssel, gyorsan elérhető a főváros irányába is. A környék nyugalma, a természet közelsége és a modern infrastruktúra ideális otthonná teszi az ingatlant családok számára.
Veresegyház egyik legszebb, csendes, kertvárosi részén kínálunk eladásra egy 2025-ben épülő, földszintes, kimagasló minőségben kivitelezett családi házat.
Nettó alapterület: 125,93 m²
Bruttó alapterület: 158,75 m²
Szobák száma: 4 különnyíló szoba
Fürdőszobák: 2 fürdő + különálló WC
Terasz: 20 m², dél-nyugati tájolással
A ház 275 cm-es belmagassággal, világos, átgondolt alaprajzzal, praktikus elrendezéssel és modern műszaki megoldásokkal készül, így tökéletes választás azoknak, akik hosszú távra keresnek értékálló, kényelmes otthont.
Kiemelkedő műszaki tartalom:
30 cm POROTHERM vázkerámia falazat + 10 cm grafitos EPS szigetelés (Austrotherm Reflex)
12 cm lépésálló EPS hőszigetelés a padlószerkezetben (Austrotherm AT-N100)
BRAMAC cserépfedésű magastető, páraáteresztő fóliás alátéttel
Láng- és gombamentesített tetőszerkezet
Fagyálló burkolatok kültéren
Korszerű fűtés előkészítés, igény szerint választható rendszerrel
Gáz cirkó padlófűtés
Minden szoba külön bejáratú
Lokáció és környezet:
A ház festői környezetben, halastó közelében helyezkedik el, távol a város zajától, mégis kiváló közlekedéssel, gyorsan elérhető a főváros irányába is. A környék nyugalma, a természet közelsége és a modern infrastruktúra ideális otthonná teszi az ingatlant családok számára.