Eladó Ház- házrész
Hirdetéskód: 9242821
Kulcs-Pont Ingatlan Kft.
Ez a hirdetés megfelelhet a FIX 3%-os programnak.
Tudj meg többet a részletekről itt.
115.00 m2
ALAPTERÜLET3
SZOBASZÁMnincs megadva
ÉPÍTÉSnincs megadva
FŰTÉS- CSOK igénybe vehető nem
- Tetőtér beépíthető nem
- Építés éve 2026
- Klíma nem
- Szigetelt nem
A+++
A++
A+
A
B
C
D
E
F
G
H
I
Az ingatlan leírása
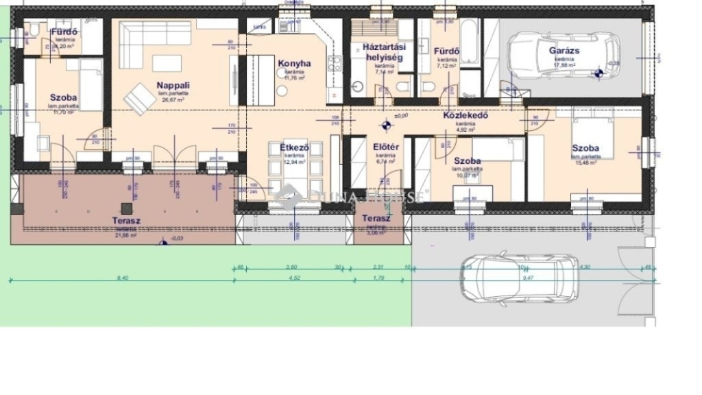
Újépítésű nappali + 3 szobás, teraszos családi ház Veresegyházon!
Megvételre kínálok Veresegyház központjától karnyújtásnyira, a Fővég városrészben egy új építésű, nettó 115 nm-es, amerikai konyhás nappali + 3 szobás, dupla komfortos családi házat, gépkocsi beállóval egy 698 nm-es telken.
A lakótér 115 nm + 29 nm és 3 nm terasz, + gépkocsi beálló.
A családi élet színterét egy 51 nm-es amerikai konyhás nappali étkező biztosítja, privátszférát mindenki megtalálhatja a 3 külön nyíló hálószobában, a család kényelmét fokozza a 2 fürdőszoba, továbbá kamra, előtér, közlekedő is megtalálható a házban.
Az ingatlan energiahatékonyságát a korszerű építőanyagok és technológia biztosítja. A házhoz Concept 8KW-os hőszivattyús rendszer tartozik, mely a fűtést és a melegvizet biztosítja, beépített melegvíz tárolóval. A hőleadás padlófűtéssel történik. A rendszerhez 1db fan-coil vagy 1db inverteres klímaberendezés (választható) kerül beszerelésre a nappaliban.
Az átadás várható ideje 2026. június. A családi ház építése szerződéskötés után kezdődik.
Kérésre teljes műszaki tartalmat, alaprajzot szívesen küldök! Igény esetén garázzsal is kérhető!Várom hívását!
Megvételre kínálok Veresegyház központjától karnyújtásnyira, a Fővég városrészben egy új építésű, nettó 115 nm-es, amerikai konyhás nappali + 3 szobás, dupla komfortos családi házat, gépkocsi beállóval egy 698 nm-es telken.
A lakótér 115 nm + 29 nm és 3 nm terasz, + gépkocsi beálló.
A családi élet színterét egy 51 nm-es amerikai konyhás nappali étkező biztosítja, privátszférát mindenki megtalálhatja a 3 külön nyíló hálószobában, a család kényelmét fokozza a 2 fürdőszoba, továbbá kamra, előtér, közlekedő is megtalálható a házban.
Az ingatlan energiahatékonyságát a korszerű építőanyagok és technológia biztosítja. A házhoz Concept 8KW-os hőszivattyús rendszer tartozik, mely a fűtést és a melegvizet biztosítja, beépített melegvíz tárolóval. A hőleadás padlófűtéssel történik. A rendszerhez 1db fan-coil vagy 1db inverteres klímaberendezés (választható) kerül beszerelésre a nappaliban.
Az átadás várható ideje 2026. június. A családi ház építése szerződéskötés után kezdődik.
Kérésre teljes műszaki tartalmat, alaprajzot szívesen küldök! Igény esetén garázzsal is kérhető!Várom hívását!