Eladó Ház- házrész
Hirdetéskód: 9261507
GDN Ingatlanhálózat - GARDEN CITY
Felújításhoz személyi kölcsönt keres? Kalkuláljon itt! →297.00 m2
ALAPTERÜLET6
SZOBASZÁMnincs megadva
ÉPÍTÉSGáz (cirkó)
FŰTÉS- CSOK igénybe vehető nem
- Tetőtér beépíthető nem
- Fűtés Gáz (cirkó)
- Klíma nem
- Szigetelt nem
A+++
A++
A+
A
B
C
D
E
F
G
H
I
Az ingatlan leírása
Exkluzív családi ház Veresegyház legszebb, zöldövezeti részén!
Nyugodt, természetközeli környezetben kínálunk megvételre egy magas műszaki tartalommal, kifinomult ízléssel megépített prémium családi otthont, amely a tágas élettereket, az időtálló minőséget és a privát életstílust helyezi előtérbe.
Reprezentatív terek & elegáns arányok:
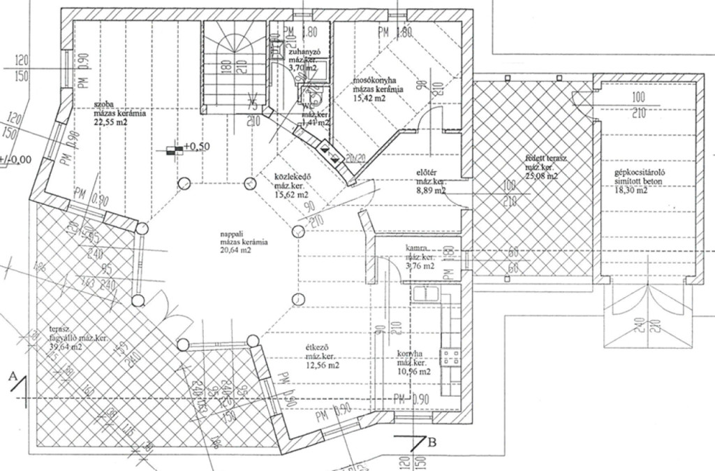
• 297 m² gondosan megtervezett lakótér
• 6 méteres belmagasságú, különleges kivitelezésű, galériás nappali, kandallóval
• nagyvonalú amerikai konyha kényelmes étkezővel
• többfunkciós tetőtéri szint – hatalmas dolgozószoba, hálószobák, vendégtér vagy privát lakrész kialakítására
A belső terek tágas és harmonikus arányai, valamint a természetes fény jelenléte jellemzi az egész épületet.
Prémium anyaghasználat & beépített megoldások:
• porotherm téglából épült, szigetelt ház
• különleges, fa oszlopos tartószerkezetek
• számos egyedileg tervezett beépített bútor
• diszkréten integrált tárolómegoldások
• minőségi kivitelezés, időtálló részletek
Privát kert & kültéri luxus:
• 800 m²-es, parkosított, intim kert
• automata öntözőrendszer kiépítve
• 60 m²-es DNy-i tájolású, fedett terasz, székely dézsával
• két különálló faház - egy kisebb és egy nagyobb tároló
• tökéletes helyszín pihenéshez, családi eseményekhez, vendéglátáshoz
Kényelmes parkolás & praktikum:
• garázs
• fedett autóbeálló
• bőséges tárolási lehetőségek a telken és az épületen belül is
Korszerű technológia & fenntartható komfort:
• padlófűtés kondenzációs kazánról, radiátorokkal kiegészítve
• alternatív megoldások: kandalló, ionkazán
• napelemek, napkollektor, klímaberendezések
• víz kezelő rendszer, riasztó
• energiahatékony, tudatosan kialakított gépészet
Kitűnő lokáció – természet és elérhetőség egyensúlya:
• Csendes, zöldövezeti környezet
• Budapest gyorsan és kényelmesen elérhető
• Ideális külföldi vásárlók számára is, akik értékelik a repülőtér közelségét és a prémium életstílust
Ez az otthon azok számára készült, akik nem kompromisszumokban, hanem életminőségben gondolkodnak. ...TOVÁBBI, TÖBBEZRES INGATLAN KÍNÁLAT: - GDN azonosító: 392254
Nyugodt, természetközeli környezetben kínálunk megvételre egy magas műszaki tartalommal, kifinomult ízléssel megépített prémium családi otthont, amely a tágas élettereket, az időtálló minőséget és a privát életstílust helyezi előtérbe.
Reprezentatív terek & elegáns arányok:
• 297 m² gondosan megtervezett lakótér
• 6 méteres belmagasságú, különleges kivitelezésű, galériás nappali, kandallóval
• nagyvonalú amerikai konyha kényelmes étkezővel
• többfunkciós tetőtéri szint – hatalmas dolgozószoba, hálószobák, vendégtér vagy privát lakrész kialakítására
A belső terek tágas és harmonikus arányai, valamint a természetes fény jelenléte jellemzi az egész épületet.
Prémium anyaghasználat & beépített megoldások:
• porotherm téglából épült, szigetelt ház
• különleges, fa oszlopos tartószerkezetek
• számos egyedileg tervezett beépített bútor
• diszkréten integrált tárolómegoldások
• minőségi kivitelezés, időtálló részletek
Privát kert & kültéri luxus:
• 800 m²-es, parkosított, intim kert
• automata öntözőrendszer kiépítve
• 60 m²-es DNy-i tájolású, fedett terasz, székely dézsával
• két különálló faház - egy kisebb és egy nagyobb tároló
• tökéletes helyszín pihenéshez, családi eseményekhez, vendéglátáshoz
Kényelmes parkolás & praktikum:
• garázs
• fedett autóbeálló
• bőséges tárolási lehetőségek a telken és az épületen belül is
Korszerű technológia & fenntartható komfort:
• padlófűtés kondenzációs kazánról, radiátorokkal kiegészítve
• alternatív megoldások: kandalló, ionkazán
• napelemek, napkollektor, klímaberendezések
• víz kezelő rendszer, riasztó
• energiahatékony, tudatosan kialakított gépészet
Kitűnő lokáció – természet és elérhetőség egyensúlya:
• Csendes, zöldövezeti környezet
• Budapest gyorsan és kényelmesen elérhető
• Ideális külföldi vásárlók számára is, akik értékelik a repülőtér közelségét és a prémium életstílust
Ez az otthon azok számára készült, akik nem kompromisszumokban, hanem életminőségben gondolkodnak. ...TOVÁBBI, TÖBBEZRES INGATLAN KÍNÁLAT: - GDN azonosító: 392254