Eladó Ház- házrész
Hirdetéskód: 9183888
GDN Ingatlanhálózat - Best Sellers
500 m2
ALAPTERÜLET5
SZOBASZÁMnincs megadva
ÉPÍTÉSnincs megadva
FŰTÉS- CSOK igénybe vehető nem
- Tetőtér beépíthető nem
- Klíma nem
- Szigetelt nem
A+++
A++
A+
A
B
C
D
E
F
G
H
I
Az ingatlan leírása
Eladásra kínáljuk egy új építésű projetben, 980 nm-es telken épülő ikerház mindkét felét Veresegyház kertvárosi részén, a Harmatok városrészben, gyönyörű természeti környezetban, aszfaltozott utcában.
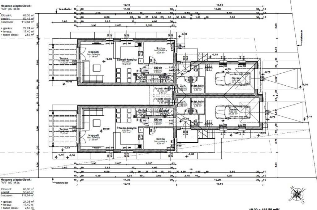
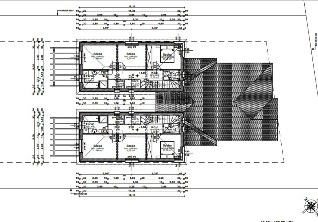
Mindkét ikerház fél nettó 120 nm hasznos alapterületű két szintes épület + mindegyikhez tartozik egy-egy garázs és tároló. A házrészek itt kapcsolódnak egymáshoz.
Az ingatlanok 5 szobával rendelkeznek, mindkettőhöz majd 500 nm-es telekrész tartozik.
HELYISÉGEK:
A lakótér nettó 120 m2 + 22 m2 garázs + 17,4 m2 terasz + 2,53 m2 fedett tároló.
Nappali+ 4 hálószoba, dupla komfort!
MŰSZAKI TARTALOM:
Az épület PTH 30-as falazóelemből, 12cm-es aljzatszigeteléssel, 10cm-es grafitos EPS homlokzati és 25cm-es födém hőszigeteléssel, beton födémmel, Bramac betoncserép fedéssel épül. Korszerű 5-légkamrás műanyag nyílászárók kerülnek beépítésre 3 rétegű üvegezéssel, elektromos redőny előkészítéssel.
A fűtést, hűtést és melegvíz ellátást a legkorszerűbb hőszivattyús rendszer működteti beépített puffertartállyal kiegészítve, padlófűtéses hőleadással, H-tarifás villanyórával. Napelem és riasztó rendszer előkészítést valamint minden szobában klíma kiállást tartalmazza az ár.
KÖRNYEZET:
Veresegyház egyik legszebb városrészében, kertvárosi környezetben épül az ingatlan.
Ajánlom mindenkinek, akik nyugodt, zöldövezeti környezetben szeretnének élni.
Veresegyház rendekezik minden olyan infrastruktúrával, amely a mindennapi élethez elengedhetetlen: iskolák, óvodák, bevásárlási lehetőségek széles választéka, sportcentrumok, színház, egészségügyi központ.
Helyi és kistérségi buszok könnyítik a közlekedést.
Budapest mind tömegközlekedéssel, mind autóval 20-45 perc alatt elérhető.
A beruházó több évtizedes tapasztalattal rendelkező, tőke erős cég, referenciáik a környéken igény esetén megtekinthetőek.
Az építkezés 2025. október végén indul, tervezett átadás. 2026.II. negyedévben.
Az ingatlanok 10% -al leköthetők!
TÁMOGATOTT ÉS PIACI HITELEKBEN KOLLÉGÁINK OTTHON VANNAK.
EBBEN IS ÁLLUNK VEVŐINK RENDELKEZÉSÉRE.
Várom megtisztelő hívását.
id:388196 ...TOVÁBBI, TÖBBEZRES INGATLAN KÍNÁLAT: - GDN azonosító: 388196
Mindkét ikerház fél nettó 120 nm hasznos alapterületű két szintes épület + mindegyikhez tartozik egy-egy garázs és tároló. A házrészek itt kapcsolódnak egymáshoz.
Az ingatlanok 5 szobával rendelkeznek, mindkettőhöz majd 500 nm-es telekrész tartozik.
HELYISÉGEK:
A lakótér nettó 120 m2 + 22 m2 garázs + 17,4 m2 terasz + 2,53 m2 fedett tároló.
Nappali+ 4 hálószoba, dupla komfort!
MŰSZAKI TARTALOM:
Az épület PTH 30-as falazóelemből, 12cm-es aljzatszigeteléssel, 10cm-es grafitos EPS homlokzati és 25cm-es födém hőszigeteléssel, beton födémmel, Bramac betoncserép fedéssel épül. Korszerű 5-légkamrás műanyag nyílászárók kerülnek beépítésre 3 rétegű üvegezéssel, elektromos redőny előkészítéssel.
A fűtést, hűtést és melegvíz ellátást a legkorszerűbb hőszivattyús rendszer működteti beépített puffertartállyal kiegészítve, padlófűtéses hőleadással, H-tarifás villanyórával. Napelem és riasztó rendszer előkészítést valamint minden szobában klíma kiállást tartalmazza az ár.
KÖRNYEZET:
Veresegyház egyik legszebb városrészében, kertvárosi környezetben épül az ingatlan.
Ajánlom mindenkinek, akik nyugodt, zöldövezeti környezetben szeretnének élni.
Veresegyház rendekezik minden olyan infrastruktúrával, amely a mindennapi élethez elengedhetetlen: iskolák, óvodák, bevásárlási lehetőségek széles választéka, sportcentrumok, színház, egészségügyi központ.
Helyi és kistérségi buszok könnyítik a közlekedést.
Budapest mind tömegközlekedéssel, mind autóval 20-45 perc alatt elérhető.
A beruházó több évtizedes tapasztalattal rendelkező, tőke erős cég, referenciáik a környéken igény esetén megtekinthetőek.
Az építkezés 2025. október végén indul, tervezett átadás. 2026.II. negyedévben.
Az ingatlanok 10% -al leköthetők!
TÁMOGATOTT ÉS PIACI HITELEKBEN KOLLÉGÁINK OTTHON VANNAK.
EBBEN IS ÁLLUNK VEVŐINK RENDELKEZÉSÉRE.
Várom megtisztelő hívását.
id:388196 ...TOVÁBBI, TÖBBEZRES INGATLAN KÍNÁLAT: - GDN azonosító: 388196