Eladó Ház- házrész
Hirdetéskód: 9305005
Székesfehérvár és Velencei-tó környéki Franchise iroda
Felújításhoz személyi kölcsönt keres? Kalkuláljon itt! →
Ez a hirdetés megfelelhet a FIX 3%-os programnak.
Tudj meg többet a részletekről itt.
106.00 m2
ALAPTERÜLET4
SZOBASZÁMnincs megadva
ÉPÍTÉSEgyéb fűtés
FŰTÉS- CSOK igénybe vehető nem
- Tetőtér beépíthető nem
- Építés éve 2026
- Fűtés Egyéb fűtés
- Klíma nem
- Szigetelt nem
A+++
A++
A+
A
B
C
D
E
F
G
H
I
Az ingatlan leírása
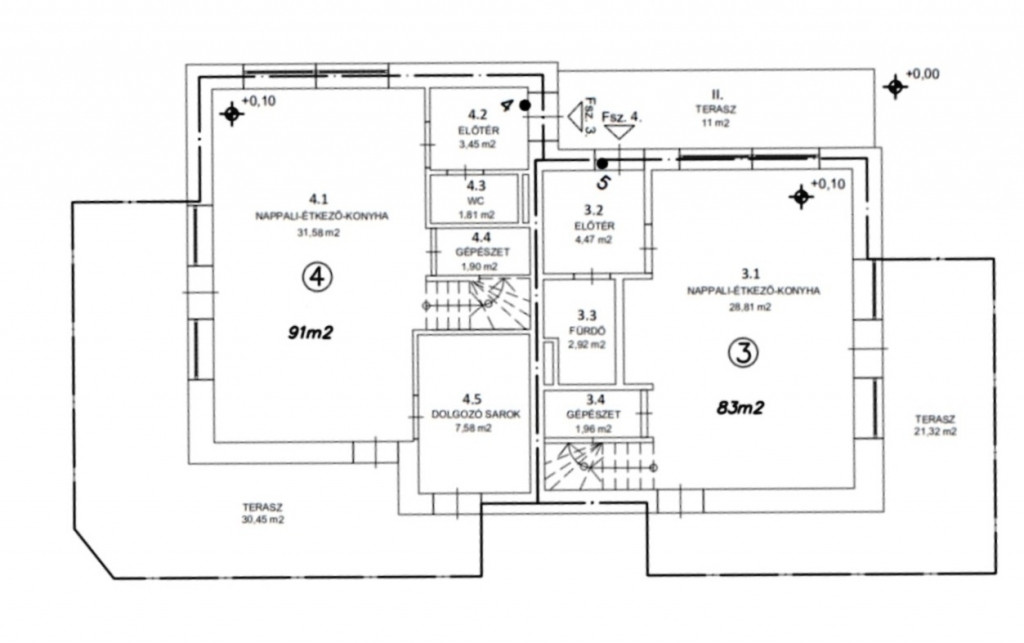
Velencén eladó új építésű nappali + 4 szobás ikerház saját telekrésszel, azonnali költözéssel közel a Velencei tóhoz!
Velencén eladó egy modern kialakítású, új építésű nappali + 4 szobás ikerház, saját használatú telekrésszel.
Az ikerházhoz tartozik egy kizárólagos használatú telekrész és egy nagyméretű terasz.
Ez az Igazan kényelmes otthon, magas műszaki tartalommal, várja új lakóit.
Az ingatlan korszerű hőszivattyús fűtéssel és falhűtéssel rendelkezik, amely energiatakarékos és alacsony fenntartási költséget biztosít.
A ház már elkészült, így szinte azonnal költözhető, ideális választás családok számára vagy akár befektetésnek is.
Főbb jellemzők:
nappali + 4 külön nyíló szoba (a földszinten is helyet kapott egy szoba)
két mellékhelyiség (a földszinten és az emeleten is)
új építésű, modern kialakítás, kedvező fenntartási költség
költséghatékony hűtés és fűtés=H tarifával
hőszivattyús (Rielló 8 KW-os) kényelmes padlófűtés
hőszivattyúval üzemelő modern falhűtés
saját telekrész kb.150 nm (társasházi alapító okiratban kijelölve)
falazat: Winerberger okos tégla (30cm)+15 cm szigetelés
Tető: Fa födém, födémen 30 cm-es szigetelés, cserépfedés
Két ház között dupla falazat és légrés!
azonnal költözhető
kiváló elhelyezkedés (Velencei tó valóban pár perc séta!)
A ház nagyon jó helyen épült azoknak is ajánlom, akik nem szeretnének autóba ülni, minden egy kényelmes rövid sétára található a bevásárlási lehetőségek, a vasútállomás es a Velencei tó is.
Ha egy modern, kényelmes otthont keres közel a Velencei tóhoz, ne hagyja ki ezt a lehetőséget!
Velencén eladó egy modern kialakítású, új építésű nappali + 4 szobás ikerház, saját használatú telekrésszel.
Az ikerházhoz tartozik egy kizárólagos használatú telekrész és egy nagyméretű terasz.
Ez az Igazan kényelmes otthon, magas műszaki tartalommal, várja új lakóit.
Az ingatlan korszerű hőszivattyús fűtéssel és falhűtéssel rendelkezik, amely energiatakarékos és alacsony fenntartási költséget biztosít.
A ház már elkészült, így szinte azonnal költözhető, ideális választás családok számára vagy akár befektetésnek is.
Főbb jellemzők:
nappali + 4 külön nyíló szoba (a földszinten is helyet kapott egy szoba)
két mellékhelyiség (a földszinten és az emeleten is)
új építésű, modern kialakítás, kedvező fenntartási költség
költséghatékony hűtés és fűtés=H tarifával
hőszivattyús (Rielló 8 KW-os) kényelmes padlófűtés
hőszivattyúval üzemelő modern falhűtés
saját telekrész kb.150 nm (társasházi alapító okiratban kijelölve)
falazat: Winerberger okos tégla (30cm)+15 cm szigetelés
Tető: Fa födém, födémen 30 cm-es szigetelés, cserépfedés
Két ház között dupla falazat és légrés!
azonnal költözhető
kiváló elhelyezkedés (Velencei tó valóban pár perc séta!)
A ház nagyon jó helyen épült azoknak is ajánlom, akik nem szeretnének autóba ülni, minden egy kényelmes rövid sétára található a bevásárlási lehetőségek, a vasútállomás es a Velencei tó is.
Ha egy modern, kényelmes otthont keres közel a Velencei tóhoz, ne hagyja ki ezt a lehetőséget!