Eladó Ház- házrész
Hirdetéskód: 9296183
Érd Bajcsy-Zsilinszky út 160 - OTP Ingatlanpont Iroda
Felújításhoz személyi kölcsönt keres? Kalkuláljon itt! →
Ez a hirdetés megfelelhet a FIX 3%-os programnak.
Tudj meg többet a részletekről itt.
88.00 m2
ALAPTERÜLET4
SZOBASZÁMnincs megadva
ÉPÍTÉSEgyéb fűtés
FŰTÉS- CSOK igénybe vehető nem
- Belső szintek 2
- Tetőtér beépíthető nem
- Építés éve 2026
- Fűtés Egyéb fűtés
- Klíma nem
- Szigetelt nem
A+++
A++
A+
A
B
C
D
E
F
G
H
I
Az ingatlan leírása
Velencén, Budapesttől mindössze 47 km-re modern ikerházi lakások eladóak saját kertrésszel!
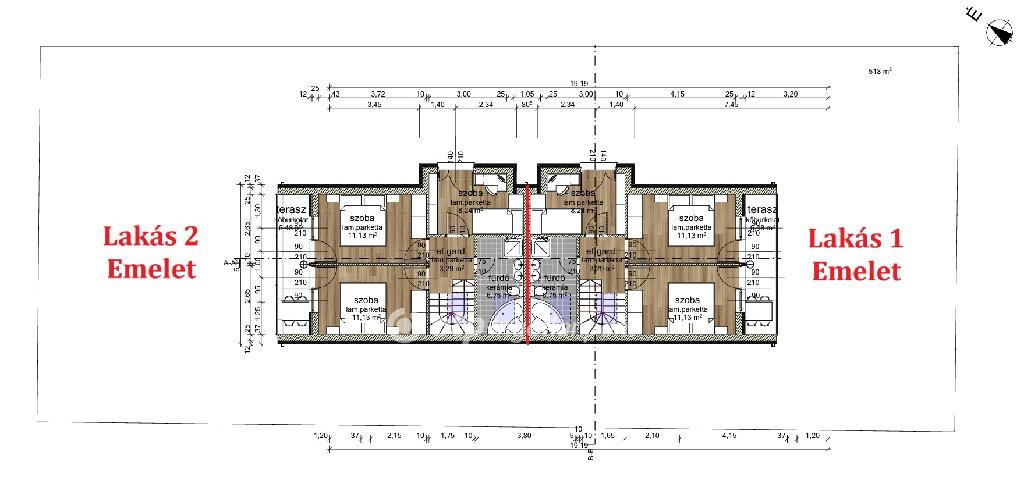
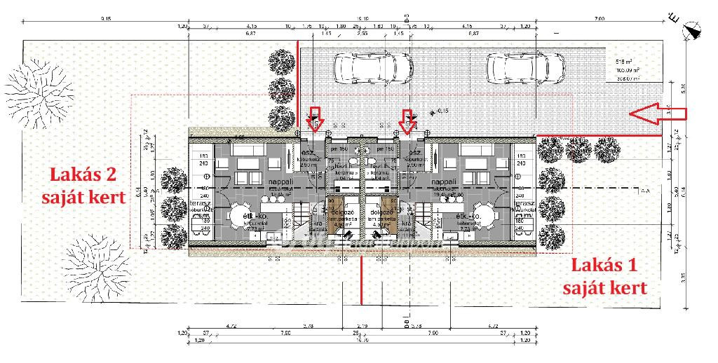
Fejér vármegyében, Velence csendes, zöldövezeti részén, a számozott utcákban kínálok megvételre 88 m2 hasznos alapterületű, új építésű ikerházi lakásokat. A nappali+ 3,5 szobás ingatlanok kamrával, háztartási helyiséggel, saját kertrésszel, két terasszal és felszíni gépkocsibeállóval rendelkeznek, így magas komfortfokozatot biztosítanak leendő tulajdonosaik számára.
Az építkezés már elkezdődött, várható befejezés: 2026 nyara!
Lakás 1.: 74.900.000 Ft (kert: ~150 m2)
Lakás 2.: 79.900.000 Ft (kert: ~260 m2)
Műszaki tartalom és felszereltség:
Fűtés: levegő víz hőszivattyú, padlófűtés
Hűtés: 1 db klímaberendezés
Alapozás: beton sávalap
Vízszigetelés: 1 réteg BITUBIT GV 4,5 hegeszthető bitumenes lemez talajnedvesség ellen
Teherhordó falak: 30 cm YTONG
Födém: 20 cm monolit vasbeton lemez (statikai terv szerint)
Válaszfalak: 10 cm YTONG
Homlokzati hőszigetelés: 8 cm grafitos EPS
Zárófödém szigetelés: 2×15 cm Rockwool Multirock
Földszinti födém szigetelés: 12 cm Austrotherm AT L2
Külső nyílászárók: 3 rétegű üvegezés, argongáz töltés, dupla gumitömítés, 5 légkamrás műanyag szerkezet
Tetőfedés: betoncserép
Burkolatok: ragasztott kerámia és laminált padló választható színben, a teraszokon kőlap
Falburkolatok:
Fürdőszobában mennyezetig csempe,
Konyhában a munkapult fölötti rész csempézve
Homlokzat: törtfehér vékonyvakolat szürke díszítő elemekkel
Csapadékvíz-elvezetés: tározóba vezetve
A lakások elrendezése praktikus, tágas és világos tereket biztosít, a korszerű építészeti megoldások pedig alacsony fenntartási költséget eredményeznek. A környék nyugodt, családbarát, a Velencei-tó közelsége pedig különleges életminőséget kínál.
Az OTP Ingatlanpont teljeskörű ügyintézéssel áll az eladók és a vevők rendelkezésére! A választott ingatlan finanszírozásához kedvezményes hitel- és pénzügyi konstrukciókat kínálunk. Otthon Start hitel, CSOK Plusz teljeskörű ügyintézését vállaljuk. Az adásvétel teljes folyamatát végigkísérjük és ügyvédi közreműködést biztosítunk!
Amennyiben modern, energiahatékony otthont keres természetközeli környezetben, ezek a velencei ikerházi lakások kiváló választást jelentenek.
Fejér vármegyében, Velence csendes, zöldövezeti részén, a számozott utcákban kínálok megvételre 88 m2 hasznos alapterületű, új építésű ikerházi lakásokat. A nappali+ 3,5 szobás ingatlanok kamrával, háztartási helyiséggel, saját kertrésszel, két terasszal és felszíni gépkocsibeállóval rendelkeznek, így magas komfortfokozatot biztosítanak leendő tulajdonosaik számára.
Az építkezés már elkezdődött, várható befejezés: 2026 nyara!
Lakás 1.: 74.900.000 Ft (kert: ~150 m2)
Lakás 2.: 79.900.000 Ft (kert: ~260 m2)
Műszaki tartalom és felszereltség:
Fűtés: levegő víz hőszivattyú, padlófűtés
Hűtés: 1 db klímaberendezés
Alapozás: beton sávalap
Vízszigetelés: 1 réteg BITUBIT GV 4,5 hegeszthető bitumenes lemez talajnedvesség ellen
Teherhordó falak: 30 cm YTONG
Födém: 20 cm monolit vasbeton lemez (statikai terv szerint)
Válaszfalak: 10 cm YTONG
Homlokzati hőszigetelés: 8 cm grafitos EPS
Zárófödém szigetelés: 2×15 cm Rockwool Multirock
Földszinti födém szigetelés: 12 cm Austrotherm AT L2
Külső nyílászárók: 3 rétegű üvegezés, argongáz töltés, dupla gumitömítés, 5 légkamrás műanyag szerkezet
Tetőfedés: betoncserép
Burkolatok: ragasztott kerámia és laminált padló választható színben, a teraszokon kőlap
Falburkolatok:
Fürdőszobában mennyezetig csempe,
Konyhában a munkapult fölötti rész csempézve
Homlokzat: törtfehér vékonyvakolat szürke díszítő elemekkel
Csapadékvíz-elvezetés: tározóba vezetve
A lakások elrendezése praktikus, tágas és világos tereket biztosít, a korszerű építészeti megoldások pedig alacsony fenntartási költséget eredményeznek. A környék nyugodt, családbarát, a Velencei-tó közelsége pedig különleges életminőséget kínál.
Az OTP Ingatlanpont teljeskörű ügyintézéssel áll az eladók és a vevők rendelkezésére! A választott ingatlan finanszírozásához kedvezményes hitel- és pénzügyi konstrukciókat kínálunk. Otthon Start hitel, CSOK Plusz teljeskörű ügyintézését vállaljuk. Az adásvétel teljes folyamatát végigkísérjük és ügyvédi közreműködést biztosítunk!
Amennyiben modern, energiahatékony otthont keres természetközeli környezetben, ezek a velencei ikerházi lakások kiváló választást jelentenek.