Eladó Ház- házrész
Hirdetéskód: 9257699
Velence Tópart utca 47 - OTP Ingatlanpont Iroda
190.00 m2
ALAPTERÜLET5
SZOBASZÁMnincs megadva
ÉPÍTÉSnincs megadva
FŰTÉS- CSOK igénybe vehető nem
- Tetőtér beépíthető nem
- Építés éve 2024
- Klíma nem
- Szigetelt nem
A+++
A++
A+
A
B
C
D
E
F
G
H
I
Az ingatlan leírása
SZEMÉLYRE SZABHATÓ LUXUS VELENCÉN - PRÉMIUM OTTHON SAJÁT KERTTEL, VÁLASZTHATÓ BURKOLATOKKAL
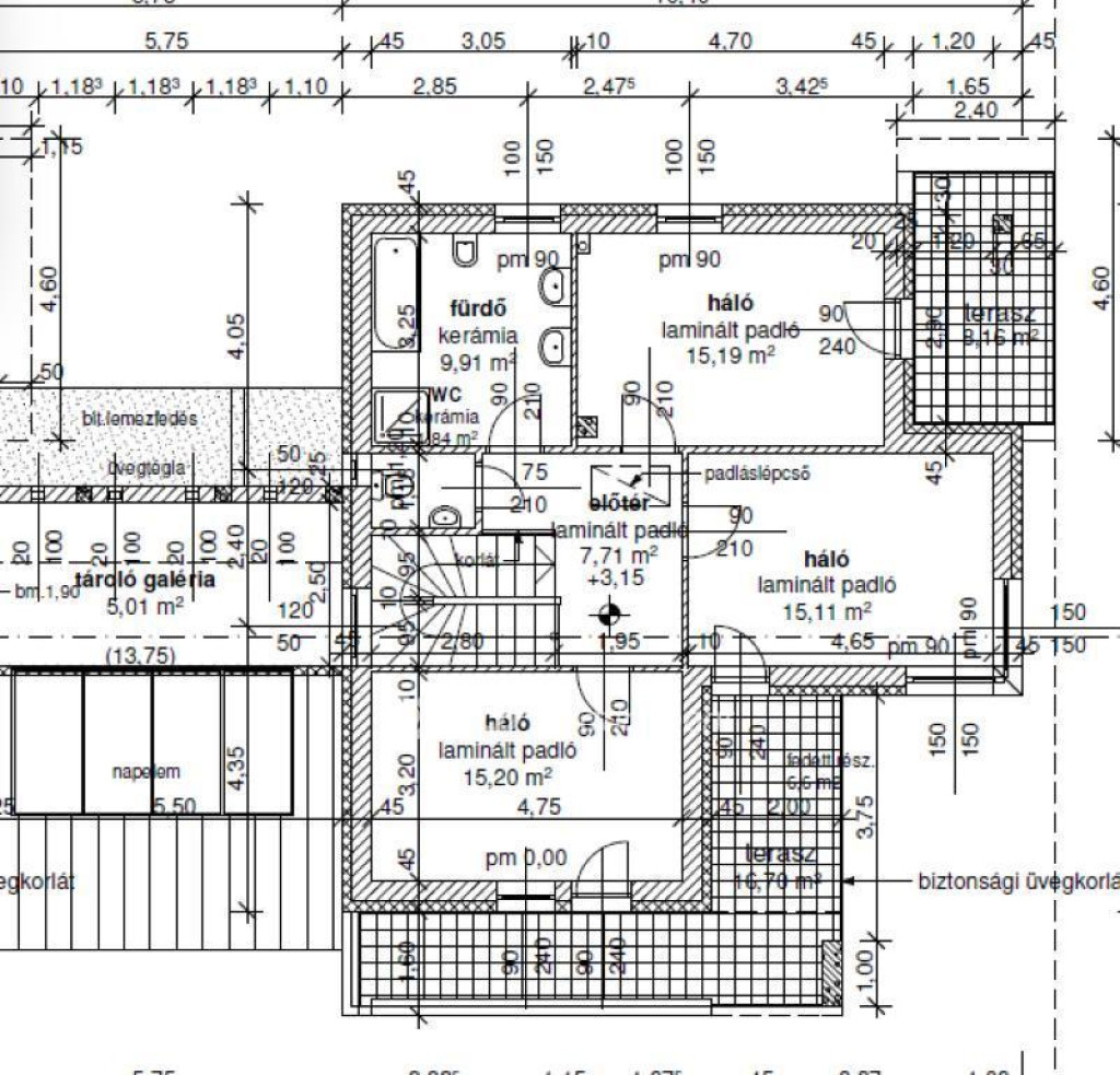
A 2297nm-es telken elhelyezkedő 4 lakásos lakóépület, első lakása, melyhez nagyobb kertrész tartozik.
Eladásra kínálunk Velence egyik legkedveltebb, rendezett részén egy exkluzív kialakítású, 190 nm-es (teljes hasznos terület), kétszintes luxuslakást, amelyhez saját használatú, kert tartozik. Az ingatlan szerkezetileg és műszakilag TELJESEN KÉSZ, a belső befejező munkálatok (burkolatok, szaniterek) az új tulajdonos egyedi igényei szerint valósíthatók meg.
Ez az ingatlan ideális választás azoknak, akik nem akarnak éveket várni egy építkezésre, de szeretnék saját ízlésükre formálni otthonuk belső világát.
Főbb Paraméterek:
Lakótér: 154 nm nettó alapterület
Terasz: 52 nm-es, hatalmas, kertkapcsolatos terasz
Állapot:
Emelt szintű szerkezetkész / belső befejezés előtti állapot. A legnehezebb munkálatok és a gépészet már készen vannak!
Földszint:
Tágas, napfényes amerikai konyhás nappali kamrával, egy master hálószoba saját fürdőszobával, külön mosókonyha, vendég WC és egy 36 nm-es dupla garázs.
Emelet:
3 kényelmes hálószoba, mindegyik saját terasszal, tágas fürdőszoba és külön mellékhelyiség, mindegyik szobához saját terasz tartozik.
Kiemelkedő műszaki tartalom (Már megvalósult):
A kivitelező kompromisszummentes minőségben, a legkorszerűbb technológiával építette meg az ingatlant:
Falszerkezet: POROTHERM 30 N+F teherhordó falak és POROTHERM 10 N+F válaszfalak.
Szigetelés: Kimagasló hővédelem a 15 cm-es Austrotherm Grafit rendszernek köszönhetően.
Nyílászárók: Antracit színű, 3 rétegű, argon gáztöltéses prémium nyílászárók, elektromos redőnnyel és szúnyoghálóval.
Gépészet: Modern hőszivattyús technológia, minden helyiségben padlófűtés és egyedileg szabályozható légkondicionálás (külön termosztátokkal) biztosítja a komfortot.
Tetőszerkezet: Monolit vasbeton födém, fogópáros-állószékes fedélszék Bramac cseréppel.
Extrák: Hörmann garázskapu, előkészített riasztórendszer.
Miért ezt az ingatlant válassza?
Mivel a belső burkolatok és szaniterek még nincsenek beépítve, Ön döntheti el, milyen stílusú csempét, parkettát vagy szanitereket látna szívesen álmai otthonában. A műszaki alapok (hőszivattyú, padlófűtés, szigetelés) már adottak és a legmagasabb minőséget képviselik.
(A belsőről készült képek a már elkészült 4. lakás kialakítását és felszerelségét tükrözi)
Irányár: Forint
Hívjon bizalommal, és tekintse meg az ingatlant, hogy el tudja képzelni benne saját, egyedi otthonát!
Az OTP Bankcsoport teljes körű ügyintézéssel áll az eladók és a vevők rendelkezésére! A kínálatunkból választott ingatlan finanszírozásához kedvezményes hitel konstrukciókat kínálunk. Az adásvételi szerződés megkötéséhez igény szerint megbízható ügyvédi közreműködést biztosítunk, és segítséget nyújtunk az adásvételhez kapcsolódó ügyek intézésében.
Ft
A 2297nm-es telken elhelyezkedő 4 lakásos lakóépület, első lakása, melyhez nagyobb kertrész tartozik.
Eladásra kínálunk Velence egyik legkedveltebb, rendezett részén egy exkluzív kialakítású, 190 nm-es (teljes hasznos terület), kétszintes luxuslakást, amelyhez saját használatú, kert tartozik. Az ingatlan szerkezetileg és műszakilag TELJESEN KÉSZ, a belső befejező munkálatok (burkolatok, szaniterek) az új tulajdonos egyedi igényei szerint valósíthatók meg.
Ez az ingatlan ideális választás azoknak, akik nem akarnak éveket várni egy építkezésre, de szeretnék saját ízlésükre formálni otthonuk belső világát.
Főbb Paraméterek:
Lakótér: 154 nm nettó alapterület
Terasz: 52 nm-es, hatalmas, kertkapcsolatos terasz
Állapot:
Emelt szintű szerkezetkész / belső befejezés előtti állapot. A legnehezebb munkálatok és a gépészet már készen vannak!
Földszint:
Tágas, napfényes amerikai konyhás nappali kamrával, egy master hálószoba saját fürdőszobával, külön mosókonyha, vendég WC és egy 36 nm-es dupla garázs.
Emelet:
3 kényelmes hálószoba, mindegyik saját terasszal, tágas fürdőszoba és külön mellékhelyiség, mindegyik szobához saját terasz tartozik.
Kiemelkedő műszaki tartalom (Már megvalósult):
A kivitelező kompromisszummentes minőségben, a legkorszerűbb technológiával építette meg az ingatlant:
Falszerkezet: POROTHERM 30 N+F teherhordó falak és POROTHERM 10 N+F válaszfalak.
Szigetelés: Kimagasló hővédelem a 15 cm-es Austrotherm Grafit rendszernek köszönhetően.
Nyílászárók: Antracit színű, 3 rétegű, argon gáztöltéses prémium nyílászárók, elektromos redőnnyel és szúnyoghálóval.
Gépészet: Modern hőszivattyús technológia, minden helyiségben padlófűtés és egyedileg szabályozható légkondicionálás (külön termosztátokkal) biztosítja a komfortot.
Tetőszerkezet: Monolit vasbeton födém, fogópáros-állószékes fedélszék Bramac cseréppel.
Extrák: Hörmann garázskapu, előkészített riasztórendszer.
Miért ezt az ingatlant válassza?
Mivel a belső burkolatok és szaniterek még nincsenek beépítve, Ön döntheti el, milyen stílusú csempét, parkettát vagy szanitereket látna szívesen álmai otthonában. A műszaki alapok (hőszivattyú, padlófűtés, szigetelés) már adottak és a legmagasabb minőséget képviselik.
(A belsőről készült képek a már elkészült 4. lakás kialakítását és felszerelségét tükrözi)
Irányár: Forint
Hívjon bizalommal, és tekintse meg az ingatlant, hogy el tudja képzelni benne saját, egyedi otthonát!
Az OTP Bankcsoport teljes körű ügyintézéssel áll az eladók és a vevők rendelkezésére! A kínálatunkból választott ingatlan finanszírozásához kedvezményes hitel konstrukciókat kínálunk. Az adásvételi szerződés megkötéséhez igény szerint megbízható ügyvédi közreműködést biztosítunk, és segítséget nyújtunk az adásvételhez kapcsolódó ügyek intézésében.
Ft