Eladó Ház- házrész
Hirdetéskód: 9252306
Velence Tópart utca 47 - OTP Ingatlanpont Iroda
Felújításhoz személyi kölcsönt keres? Kalkuláljon itt! →190.00 m2
ALAPTERÜLET5
SZOBASZÁMnincs megadva
ÉPÍTÉSEgyéb fűtés
FŰTÉS- CSOK igénybe vehető nem
- Tetőtér beépíthető nem
- Építés éve 2022
- Fűtés Egyéb fűtés
- Klíma nem
- Szigetelt nem
A+++
A++
A+
A
B
C
D
E
F
G
H
I
Az ingatlan leírása
LUXUS ÉS MODERNITÁS A VELENCEI-TÓ PARTJÁN- AZONNAL KÖLTÖZHETŐ ÁLOMOTTHON
Eladásra kínálunk Velence egyik legkedveltebb, rendezett részén egy exkluzív kialakítású, 190 nm-es, kétszintes, új építésű luxuslakást, amelyhez 430 nm-es saját használatú, privát kert tartozik.
Ez az ingatlan a modern építészet és a prémium minőség találkozása: a legkorszerűbb energetikai megoldások és a tágas, élhető terek teszik páratlanná a piacon.
Főbb paraméterek:
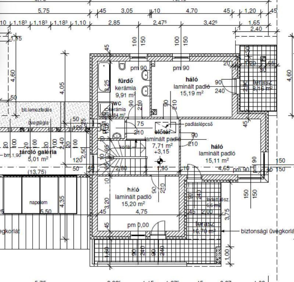
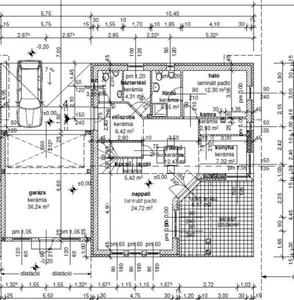
Alapterület: 154 nm lakótér + 36 nm dupla garázs + 52 nm terasz.
Telek: 430 nm saját, szeparált, körbekerített zöldterület.
Elrendezés:
Földszint: Tágas amerikai konyhás nappali, kamra teraszkapcsolattal, 1 master háló fürdőszobával , külön mosókonyha, vendég WC, dupla garázs.
Emelet: 3 kényelmes hálószoba fürdőszoba, külön mellékhelyiség.
Állapot: Új építésű, prémium kivitelezés, AZONNAL KÖLTÖZHETŐ.
A kivitelező kizárólag magas minőségű anyagokkal dolgozott, figyelve a fenntarthatóságra és az alacsony rezsiköltségre!
Az ingatlan szerkezete és gépészete a legmagasabb piaci standardoknak is megfelel!
Falszerkezet:
A teherhordó falak POROTHERM 30 N+F téglából, a válaszfalak POROTHERM 10 N+F téglából épültek.
Szigetelés:
Kimagasló hővédelem a 15 cm-es Austrotherm Grafit hőszigetelésnek köszönhetően, amely hatékonyabb a hagyományos szigeteléseknél.
Födém és Tető:
20 cm vastag monolit vasbeton födém, a tetőszerkezet fogópáros-állószékes fedélszékkel készült, Bramac Duna cserépfedéssel.
Nyílászárók:
Antracit színű, modern műanyag szerkezetek, fokozott hőszigetelésű, 3 rétegű, argon gáztöltéses üvegezéssel. Az ablakok elektromos redőnnyel és szúnyoghálóval felszerelt.
Fűtés és hűtés:
Hőszívattyús technológia. Minden helyiségben padlófűtés és egyedileg szabályozható légkondicionálás (külön termosztátokkal) garantálja a tökéletes komfortot.
Extrák: Szigetelt Hörmann garázskapu, kiépített riasztórendszer.
Az ingatlan központi elhelyezkedése miatt minden fontosabb helyszín (iskola, bevásárlás, vasútállomás, Velence Korzó) gyorsan elérhető, mégis biztonságos környezetben fekszik. Az 52 nm-es óriási terasz és a 430 nm-es saját kert tökéletes helyszínt biztosít a pihenéshez és a családi programokhoz.
Ez az otthon kiváló választás azoknak a családoknak, akik kompromisszummentes minőséget, modern technológiát és azonnal birtokba vehető, exkluzív életteret keresnek Fejér megye egyik legszebb településén.
További információért vagy megtekintéssel kapcsolatban hívjon a hét bármely napján.
Irányár: 2Forint
Az OTP Bankcsoport teljes körű ügyintézéssel áll az eladók és a vevők rendelkezésére! A kínálatunkból választott ingatlan finanszírozásához kedvezményes hitel konstrukciókat kínálunk. Az adásvételi szerződés megkötéséhez igény szerint megbízható ügyvédi közreműködést biztosítunk, és segítséget nyújtunk az adásvételhez kapcsolódó ügyek intézésében.
2Ft
Eladásra kínálunk Velence egyik legkedveltebb, rendezett részén egy exkluzív kialakítású, 190 nm-es, kétszintes, új építésű luxuslakást, amelyhez 430 nm-es saját használatú, privát kert tartozik.
Ez az ingatlan a modern építészet és a prémium minőség találkozása: a legkorszerűbb energetikai megoldások és a tágas, élhető terek teszik páratlanná a piacon.
Főbb paraméterek:
Alapterület: 154 nm lakótér + 36 nm dupla garázs + 52 nm terasz.
Telek: 430 nm saját, szeparált, körbekerített zöldterület.
Elrendezés:
Földszint: Tágas amerikai konyhás nappali, kamra teraszkapcsolattal, 1 master háló fürdőszobával , külön mosókonyha, vendég WC, dupla garázs.
Emelet: 3 kényelmes hálószoba fürdőszoba, külön mellékhelyiség.
Állapot: Új építésű, prémium kivitelezés, AZONNAL KÖLTÖZHETŐ.
A kivitelező kizárólag magas minőségű anyagokkal dolgozott, figyelve a fenntarthatóságra és az alacsony rezsiköltségre!
Az ingatlan szerkezete és gépészete a legmagasabb piaci standardoknak is megfelel!
Falszerkezet:
A teherhordó falak POROTHERM 30 N+F téglából, a válaszfalak POROTHERM 10 N+F téglából épültek.
Szigetelés:
Kimagasló hővédelem a 15 cm-es Austrotherm Grafit hőszigetelésnek köszönhetően, amely hatékonyabb a hagyományos szigeteléseknél.
Födém és Tető:
20 cm vastag monolit vasbeton födém, a tetőszerkezet fogópáros-állószékes fedélszékkel készült, Bramac Duna cserépfedéssel.
Nyílászárók:
Antracit színű, modern műanyag szerkezetek, fokozott hőszigetelésű, 3 rétegű, argon gáztöltéses üvegezéssel. Az ablakok elektromos redőnnyel és szúnyoghálóval felszerelt.
Fűtés és hűtés:
Hőszívattyús technológia. Minden helyiségben padlófűtés és egyedileg szabályozható légkondicionálás (külön termosztátokkal) garantálja a tökéletes komfortot.
Extrák: Szigetelt Hörmann garázskapu, kiépített riasztórendszer.
Az ingatlan központi elhelyezkedése miatt minden fontosabb helyszín (iskola, bevásárlás, vasútállomás, Velence Korzó) gyorsan elérhető, mégis biztonságos környezetben fekszik. Az 52 nm-es óriási terasz és a 430 nm-es saját kert tökéletes helyszínt biztosít a pihenéshez és a családi programokhoz.
Ez az otthon kiváló választás azoknak a családoknak, akik kompromisszummentes minőséget, modern technológiát és azonnal birtokba vehető, exkluzív életteret keresnek Fejér megye egyik legszebb településén.
További információért vagy megtekintéssel kapcsolatban hívjon a hét bármely napján.
Irányár: 2Forint
Az OTP Bankcsoport teljes körű ügyintézéssel áll az eladók és a vevők rendelkezésére! A kínálatunkból választott ingatlan finanszírozásához kedvezményes hitel konstrukciókat kínálunk. Az adásvételi szerződés megkötéséhez igény szerint megbízható ügyvédi közreműködést biztosítunk, és segítséget nyújtunk az adásvételhez kapcsolódó ügyek intézésében.
2Ft