Eladó Ház- házrész
Hirdetéskód: 9227838

Velence Tópart utca 47 - OTP Ingatlanpont Iroda

154 m2
ALAPTERÜLET
4
SZOBASZÁM
nincs megadva
ÉPÍTÉS
nincs megadva
FŰTÉS
  • CSOK igénybe vehető nem
  • Tetőtér beépíthető nem
  • Építés éve 2020
  • Klíma nem
  • Szigetelt nem
Energetikai besorolás: Nincs meghatározva
A+++
A++
A+
A
B
C
D
E
F
G
H
I

Az ingatlan leírása

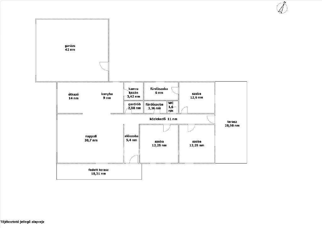
Fejér megye, Velence 154 nm-es mediterrán családi ház eladó. Az ingatlan 2020-ban épült, a Venezia villanegyedben egy 1040 nm-es gyönyörűen parkosított, dísznövénykerttel, gyümölcsfákkal betelepített telken helyezkedik el. A tégla falazatú, szigetelt házban tágas nappali, 3 szoba, étkező, konyha, kamra, gardrób, 2 fürdőszoba, 1 külön mosdó található, valamint tartozik hozzá egy 42 nm-es garázs, 18,31 nm-es fedett terasz, egy 28,98 nm-es terasz, kerti sütögető, játszótér, térkövezett kocsibeálló több autó számára. A fűtésről Ariston gázkazán gondoskodik radiátoros hő leadással. Az ingatlanba beszerelésre került egy 3,5 kW-os hűtő fűtő klíma is. Az épület 4 kW napelemmel is felszerelt, mely fedezi a teljes villanyfogyasztást. Az ingatlan fenntartása nagyon kedvező, a gáz átalány 12 000 Ft, köszönhetően a 38-as tégla falazatnak, a homlokzati és a födém szigetelésnek. Az összes nyílászáró műanyag. Kiváló adottságokkal rendelkező ingatlan, új építésű családi házas övezetben, közel a Velencei tóhoz. Amennyiben felkeltette az érdeklődését, további kérdések esetén várom hívását, akár hétvégén is! Kedvezményes kamatú hitellel, teljes körű ügyintézéssel segítjük ügyfeleinket díjtalanul, az adásvétel és ingatlanátírás teljes lebonyolításával.

2Ft

Térkép

A hirdető elérhetősége

Velence Tópart utca 47 - OTP Ingatlanpont Iroda

Lepsényi Kornél
+36 70 884