Eladó Ház- házrész
Hirdetéskód: 9219667

Székesfehérvár Palotai út 8 - OTP Ingatlanpont Iroda

154 m2
ALAPTERÜLET
4
SZOBASZÁM
nincs megadva
ÉPÍTÉS
Gáz (cirkó)
FŰTÉS
  • CSOK igénybe vehető nem
  • Belső szintek 1
  • Tetőtér beépíthető nem
  • Építés éve 2020
  • Fűtés Gáz (cirkó)
  • Klíma nem
  • Szigetelt nem
Energetikai besorolás: Nincs meghatározva
A+++
A++
A+
A
B
C
D
E
F
G
H
I

Az ingatlan leírása

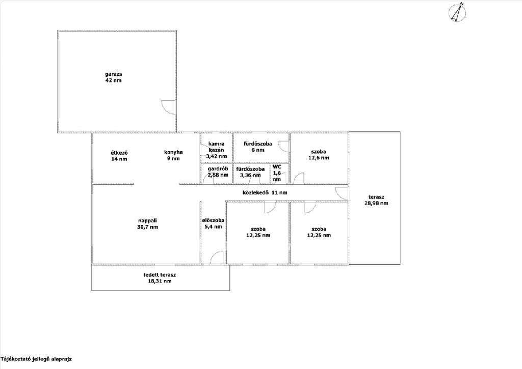
Fejér megye, Velence 154 nm-es mediterrán családi ház eladó. Az ingatlan 2020-ban épült, a Venezia villanegyedben egy 1040 nm-es gyönyörűen parkosított, dísznövénykerttel, gyümölcsfákkal betelepített telken helyezkedik el. A tégla falazatú, szigetelt házban tágas nappali, 3 szoba, étkező, konyha, kamra, gardrób, 2 fürdőszoba, 1 külön mosdó található, valamint tartozik hozzá egy 42 nm-es garázs, 18,31 nm-es fedett terasz, egy 28,98 nm-es terasz, kerti sütögető, játszótér, térkövezett kocsibeálló több autó számára. A fűtésről Ariston gázkazán gondoskodik radiátoros hő leadással. Az ingatlanba beszerelésre került egy 3,5 kW-os hűtő fűtő klíma is. Az épület 4 kW napelemmel is felszerelt, mely fedezi a teljes villanyfogyasztást. Az ingatlan fenntartása nagyon kedvező, a gáz átalány 12 000 Ft, köszönhetően a 38-as tégla falazatnak, a homlokzati és a födém szigetelésnek. Az összes nyílászáró műanyag. Kiváló adottságokkal rendelkező ingatlan, új építésű családi házas övezetben, közel a Velencei tóhoz. Amennyiben felkeltette az érdeklődését, további kérdések esetén várom hívását, akár hétvégén is! Kedvezményes kamatú hitellel, teljes körű ügyintézéssel segítjük ügyfeleinket díjtalanul, az adásvétel és ingatlanátírás teljes lebonyolításával.

Térkép

A hirdető elérhetősége

Székesfehérvár Palotai út 8 - OTP Ingatlanpont Iroda

Darnai Henrietta
+36 20 487