Eladó Ház- házrész
Hirdetéskód: 9249183

Duna House - Új-Lak Bázis Kft.

FIX 3% Program

Ez a hirdetés megfelelhet a FIX 3%-os programnak.
Tudj meg többet a részletekről itt.

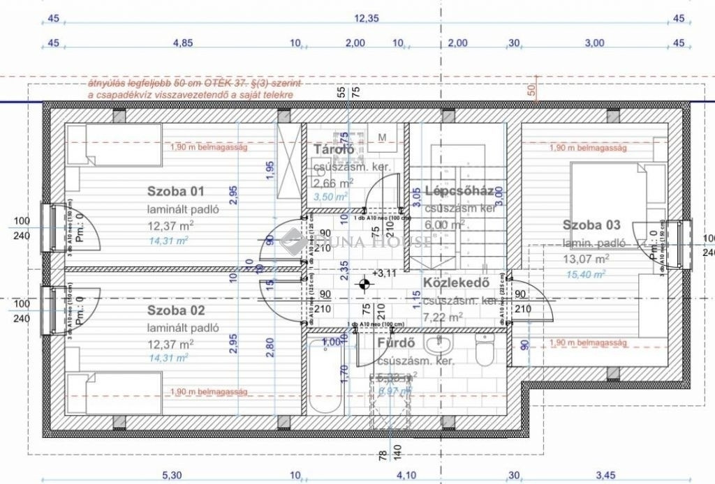
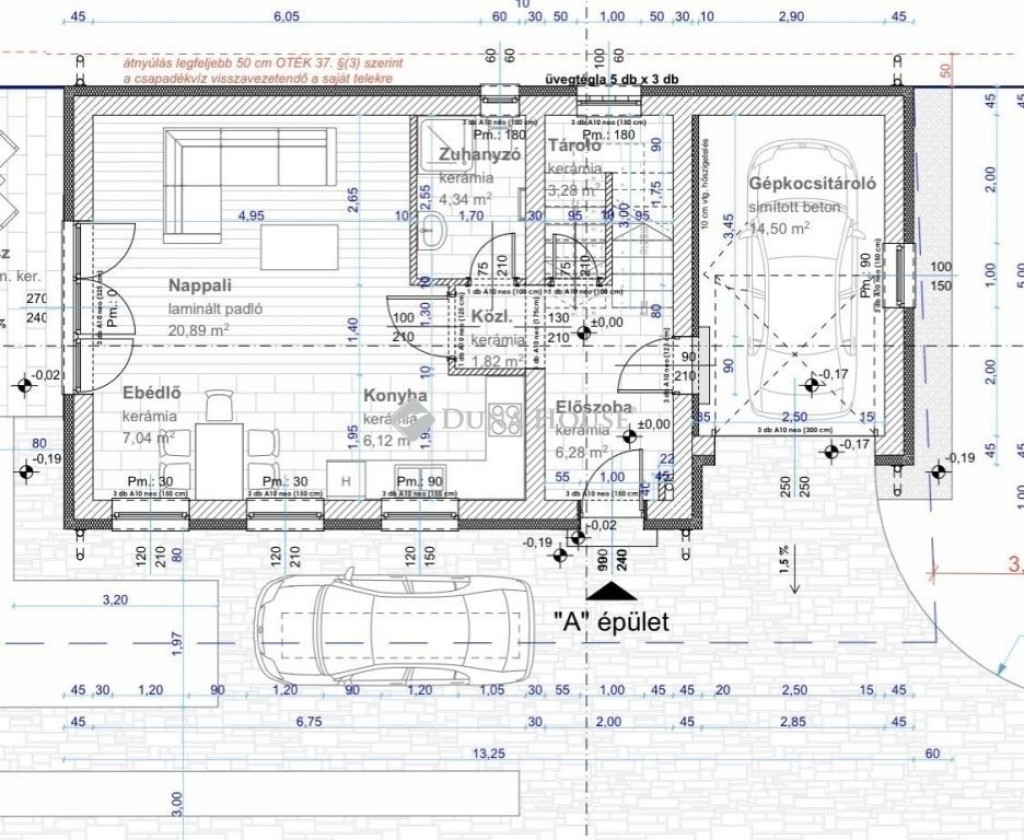
119.00 m2
ALAPTERÜLET
5
SZOBASZÁM
nincs megadva
ÉPÍTÉS
nincs megadva
FŰTÉS
  • CSOK igénybe vehető nem
  • Tetőtér beépíthető nem
  • Építés éve 2025
  • Klíma nem
  • Szigetelt nem
Energetikai besorolás: Nincs meghatározva
A+++
A++
A+
A
B
C
D
E
F
G
H
I

Az ingatlan leírása

Vecsésen frekventált helyen kínálok megvételre egy új építésű családi házat .1174 nm -es telken ügyvédi megosztással 2 db különálló családi ház épült. Készültségi fok 100 %Telek mérete 540 nm ( saját )Nettó alapterület 119 nmKialakításAlsó szinten :-amerikai konyhás nappali-szoba -Közlekedő-Zuhanyzós Fürdőszoba-Lépcsőtér ( alatta kamra kialakítva)Emeleten :- 3 db hálószoba- Fürdőszoba káddal ellátva-Gardrób-KözlekedőSzobákban laminált parketta , a többi helységben kő burkolatok kerültek lerakásra. Az ingatlan beton alapon b 30-as Porotherm téglából épül , 15 cm vastagságú eps 80 -as szigeteléssel ellátva, rajta nemes vakolattal.A tető fa födémes 30 cm es szigeteléssel ellátva , a héjazat Tonndach tetőcserép.Hőszivattyús fűtésrendszer , padlón keresztül történő hőleadással. Nyílászárók 3 rétegű műanyag nyílászárókAz épület mellett egy fedett autó beálló került kialakításra. Bár osztott telken található az ingatlan mégis külön érzetet ad hiszen nincs közös bejárat sem közös fal, ráadásul a telek is 540 nm !Közlekedés szempontjából bevásárlás, iskola, óvoda, orvosi ellátás pár percnyire elérhető. Amennyiben hirdetésem felkeltette érdeklődését keressen bizalommal.

Térkép

A hirdető elérhetősége

Duna House - Új-Lak Bázis Kft.

Káplár Ildikó
+36 30 468