Eladó Ház- házrész
Hirdetéskód: 9312532

Dunaharaszti Bocskai utca 10 - OTP Ingatlanpont Iroda

Felújításhoz személyi kölcsönt keres? Kalkuláljon itt! →
120.00 m2
ALAPTERÜLET
3
SZOBASZÁM
nincs megadva
ÉPÍTÉS
Elektromos
FŰTÉS
  • CSOK igénybe vehető nem
  • Tetőtér beépíthető nem
  • Építés éve 1970
  • Fűtés Elektromos
  • Klíma nem
  • Szigetelt nem
Energetikai besorolás: Nincs meghatározva
A+++
A++
A+
A
B
C
D
E
F
G
H
I

Az MBH Bank személyi kölcsön ajánlata

Fizetett hirdetés
1 millió Ft
6 évre
20 585 Ft/hó
THM: 14.5%
Részletek →
2 millió Ft
6 évre
41 169 Ft/hó
THM: 14.5%
Részletek →
3 millió Ft
6 évre
61 754 Ft/hó
THM: 14.5%
Részletek →

A tájékoztatás nem teljes körű és nem minősül ajánlattételnek.

Az ingatlan leírása

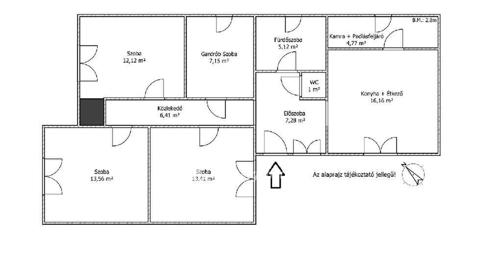
Eladó egy jó állapotú vegyes falazatú családi ház Vecsésen, 893 négyzetméteres telken. A ház 87 négyzetméteres alapterületű részben felújított három plusz egy félszobás. A felújított zuhanyzó és tágas étkezős konyha napfényes, igény szerint az első szoba kellemes nappalinak is kialakítható. 2023-ban a teljes épületfalazat vízszigetelést kapott injektálós technológiával. A villamos vezetékek és a csövek cseréje már megtörtént. Jelenleg elektromos fűtéssel rendelkezik egy H- tarifás nagy teljesítményű klímával kiegészítve. Mivel a cserépkályhákat megőrizték akár fával is fűthető a ház. Melegvizet modern Hajdú villanybojler szolgáltat. Tartozik még hozzá egy 34 négyzetméteres téliesített melléképület ami jelenleg lakássá van alakítva, de akár üzlethelyiségnek (Pl.: körmös, fodrász) is kiváló lehet. A telken található még egy betonalapos lemez fészer és egy kisház ami műhelynek vagy tárolónak is hasznosítható. Parkolni a ház előtt de a kertben is van hely akár több autónak is. Vecsés egy jó infrastruktúrájú város szinte minden szolgáltatás helyben elérhető, Budapestre ingázóknak pedig vonzó lehetőség az agglomerációban, hiszen autóval és tömegközlekedéssel is megoldhatóak a mindennapok. Elsősorban pároknak és családosoknak ajánlanám, de érdekes lehet bárkinek aki otthonról dolgozik vagy vállalkozik. Ha érdekesnek találta jöjjön el és tekintse meg élőben is! Időpont egyeztetéshez hívjon bizalommal!

Teljes körű ügyintézéssel állunk az eladók és a vevők rendelkezésére! A kínálatunkból választott ingatlan finanszírozásához minősített fogyasztóbarát, piaci és kedvezményes hitel- és lízingkonstrukciókat kínálunk (lakásvásárlási hitel, szabad felhasználású hitel, babaváró hitel, CSOK Plusz intézés, Otthonfelújítási Támogatás, egyéb felújítási hitelek). Az adásvételi szerződés megkötéséhez igény szerint megbízható ügyvédi közreműködést biztosítunk, és segítséget nyújtunk az adásvételhez kapcsolódó egyéb ügyek intézéséhez.

Kérdéseire az esti órákban és hétvégén is szívesen válaszolok! Ha az új ingatlana megvásárlásához a jelenlegi ingatlanát el kell adnia, abban is szívesen segítünk.

Térkép

Ingatlan adásvétel ügyvédi díja
346 500 Ft
a hirdetésben szereplő ár alapján
  • A vételár 0,45%-a
  • Szerződéscsomag teljeskörű képviselettel
  • Ingyenes tulajdoni lap ellenőrzés
  • Az ÁFA-t már tartalmazza
Érdekel az ajánlat →
A tájékoztatás nem teljes körű és nem minősül ajánlattételnek. Minimum díj: 150 000 Ft, maximum díj: 600 000 Ft. A díj kizárólag lakóingatlan adásvételére vonatkozik.

A hirdető elérhetősége

Dunaharaszti Bocskai utca 10 - OTP Ingatlanpont Iroda

Terjék Nikolett Erzsébet
+36 70 941