Eladó Ház- házrész
Hirdetéskód: 9266925

Duna House - Új-Lak Bázis Kft.

140.00 m2
ALAPTERÜLET
5
SZOBASZÁM
nincs megadva
ÉPÍTÉS
nincs megadva
FŰTÉS
  • CSOK igénybe vehető nem
  • Tetőtér beépíthető nem
  • Építés éve 2026
  • Klíma nem
  • Szigetelt nem
Energetikai besorolás: Nincs meghatározva
A+++
A++
A+
A
B
C
D
E
F
G
H
I

Az ingatlan leírása

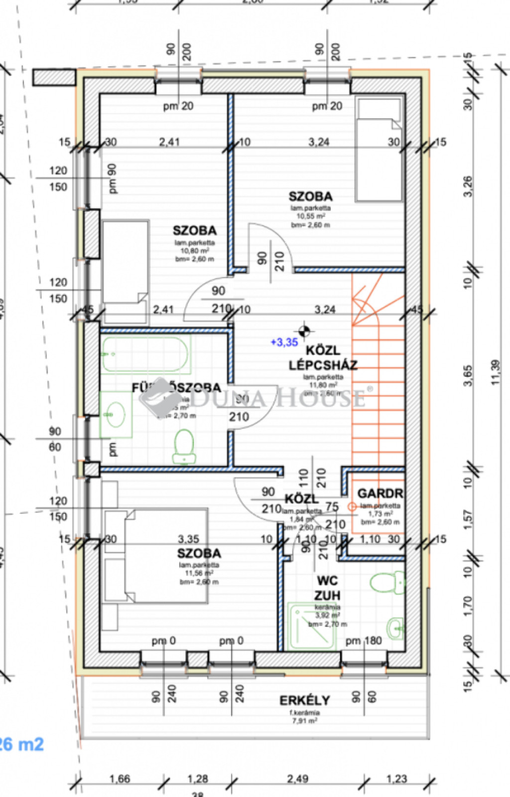
Eladó új építésű, kétszintes ikerházfél Vecsés központjában modern kialakítás, saját garázzsal, terasszal és udvarrésszel!Vecsés egyik legkeresettebb, legnagyobb presztízsű részén, a Fő út közelében, kiváló infrastruktúrával rendelkező területen megvételre kínálunk egy 140 m²-es, új építésű ikerházfelet. A projekt átadása 2026. I. negyedévében várható.Ez az ingatlan egyedülálló lehetőséget kínál azoknak, akik korszerű, energiahatékony otthont keresnek Vecsés központjában.Főbb jellemzők:* Alapterület: 140 m²* Telek területe: 253 m²* Szerkezet: Ytong falazat, kiváló hő- és hangszigeteléssel* Fűtés: hőszivattyú (padlófűtéses rendszer)* Szintek: földszint + emelet* Gépkocsibeállás: garázs + külső parkolóhely (10-20 m-re az ingatlantól)* Terasz és óvott udvarrész* Erkély a felső szinten, a hálószobákból közvetlen kijárattal* A ház a garázsnál kapcsolódik az ikerfélhez, ezáltal teljesen szeparált, intimitása és önállósága megmaradt.Választható belső elemek:* Hideg- és melegburkolatok 7.000 Ft/m² árig* Belső ajtók 100.000 Ft/db árig* Szaniterek 600.000 Ft értékhatárigMűszaki felszereltség:* Korszerű hőszivattyús fűtési rendszer* Hőszigetelt, 3 rétegű nyílászárók* Padlófűtés minden helyiségben* Elektromos redőny és klímaelőkészítés* Igényes, minőségi burkolatok és szaniterekElhelyezkedés:* Iskola: közvetlenül az utca túloldalán* Bevásárlási lehetőségek: Market Centrál, Lidl, Aldi néhány perc autóval* Busz- és vasútállomás gyalogosan is közel* Budapest központja kb. 20 perc alatt elérhető autóval vagy tömegközlekedésselMiért érdemes megtekinteni?* Kiváló lokáció Vecsés legkeresettebb része* Modern, energiatakarékos technológia* Magas műszaki tartalom* Saját garázs, udvar és terasz* Tökéletes választás családoknak és befektetőknek egyarántEz az ikerházfél egy olyan új építésű otthon, ahol a modern technológia és a kénylem találkozik a kiváló elhelyezkedéssel. A kivitelezés magas minőségű, a ház építése folyamatban van, az átadás 2026 tavaszára várható.Érdeklődés esetén több információval, alaprajzzal és személyes egyeztetési lehetőséggel állok rendelkezésre.Ügyvédi közreműködés és hitelügyintézés egy helyen.

Térkép

A hirdető elérhetősége

Duna House - Új-Lak Bázis Kft.

Szabó Róbert
+36 20 520