Eladó Ház- házrész
Hirdetéskód: 9219490
Duna House - Új-Lak Bázis Kft.
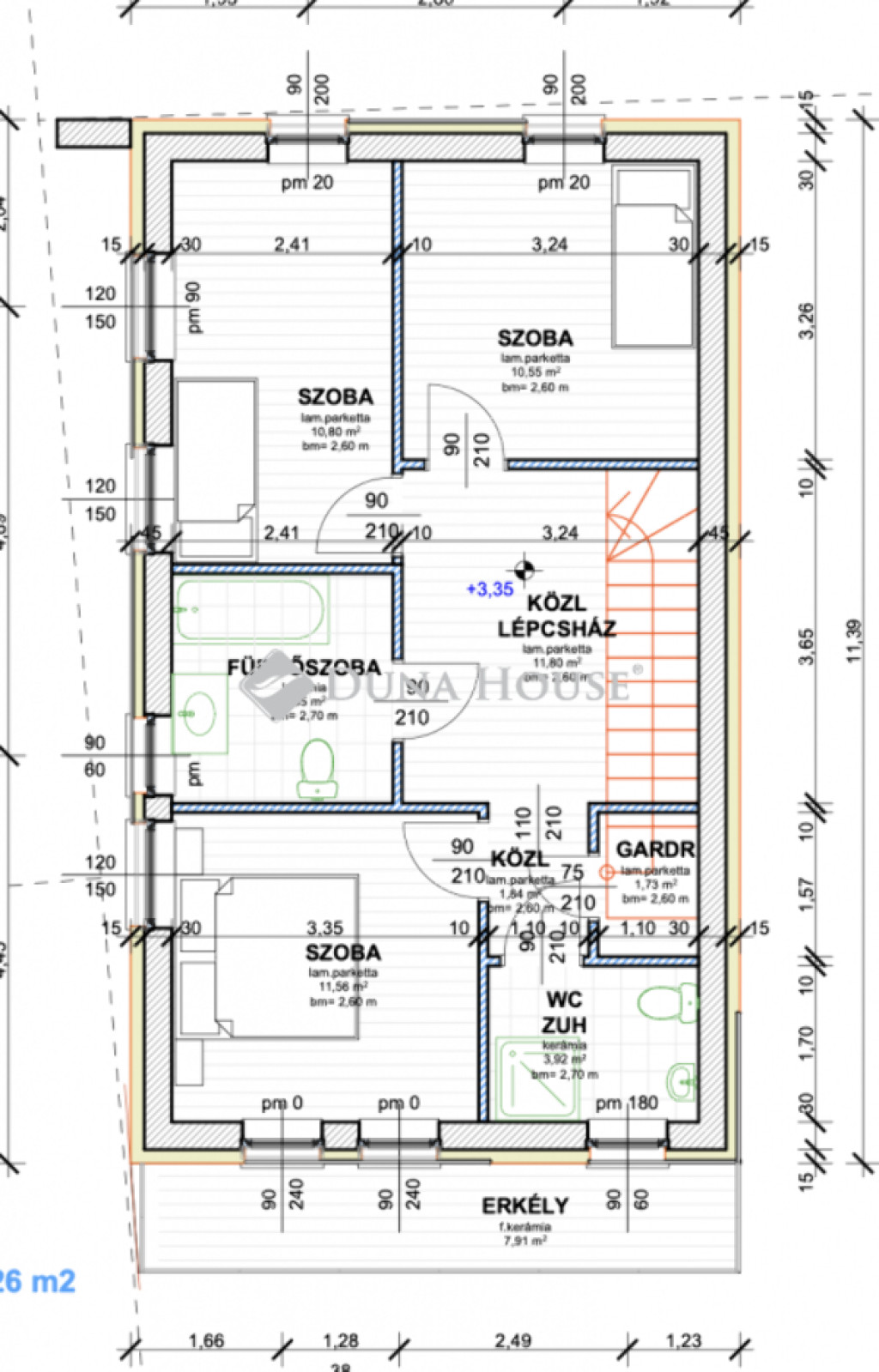
140 m2
ALAPTERÜLET5
SZOBASZÁMnincs megadva
ÉPÍTÉSnincs megadva
FŰTÉS- CSOK igénybe vehető nem
- Tetőtér beépíthető nem
- Építés éve 2026
- Klíma nem
- Szigetelt nem
A+++
A++
A+
A
B
C
D
E
F
G
H
I
Az ingatlan leírása
Eladó új építésű, kétszintes ikerházfél Vecsés központjában modern kialakítás, saját garázzsal, terasszal és udvarrésszel!
Vecsés egyik legkeresettebb, legnagyobb presztízsű részén, a Fő út közelében, kiváló infrastruktúrával rendelkező területen megvételre kínálunk egy 140 m²-es, új építésű ikerházfelet. A projekt átadása 2026. I. negyedévében várható.
Ez az ingatlan egyedülálló lehetőséget kínál azoknak, akik korszerű, energiahatékony otthont keresnek Vecsés központjában.
Főbb jellemzők:
* Alapterület: 140 m²
* Telek területe: 256 m²
* Szerkezet: Ytong falazat, kiváló hő- és hangszigeteléssel
* Fűtés: hőszivattyú
* Szintek: földszint + emelet
* Gépkocsibeállás: garázs + külső parkolóhely (10-20 m-re az ingatlantól)
* Terasz és óvott udvarrész
* Erkély a felső szinten, a hálószobákból közvetlen kijárattal
* A ház a garázsnál kapcsolódik az ikerfélhez, ezáltal teljesen szeparált, intimitása és önállósága megmaradt.
Választható belső elemek:
* Hideg- és melegburkolatok 7.000 Ft/m² árig
* Belső ajtók 100.000 Ft/db árig
* Szaniterek 600.000 Ft értékhatárig
Műszaki felszereltség:
* Korszerű hőszivattyús fűtési rendszer
* Hőszigetelt, 3 rétegű nyílászárók
* Elektromos redőny és klímaelőkészítés
* Igényes, minőségi burkolatok és szaniterek
Elhelyezkedés:
* Iskola: közvetlenül az utca túloldalán
* Bevásárlási lehetőségek: Market Centrál, Lidl, Aldi néhány perc autóval
* Busz- és vasútállomás gyalogosan is közel
* Budapest központja kb. 20 perc alatt elérhető autóval vagy tömegközlekedéssel
Miért érdemes megtekinteni?
* Kiváló lokáció Vecsés legkeresettebb része
* Modern, energiatakarékos technológia
* Magas műszaki tartalom
* Saját garázs, udvar és terasz
* Tökéletes választás családoknak és befektetőknek egyaránt
Ez az ikerházfél egy olyan új építésű otthon, ahol a modern technológia és a kénylem találkozik a kiváló elhelyezkedéssel. A kivitelezés magas minőségű, a ház építése folyamatban van, az átadás 2026 tavaszára várható.
Érdeklődés esetén több információval, alaprajzzal és személyes egyeztetési lehetőséggel állok rendelkezésre.
Ügyvédi közreműködés és hitelügyintézés egy helyen.
Vecsés egyik legkeresettebb, legnagyobb presztízsű részén, a Fő út közelében, kiváló infrastruktúrával rendelkező területen megvételre kínálunk egy 140 m²-es, új építésű ikerházfelet. A projekt átadása 2026. I. negyedévében várható.
Ez az ingatlan egyedülálló lehetőséget kínál azoknak, akik korszerű, energiahatékony otthont keresnek Vecsés központjában.
Főbb jellemzők:
* Alapterület: 140 m²
* Telek területe: 256 m²
* Szerkezet: Ytong falazat, kiváló hő- és hangszigeteléssel
* Fűtés: hőszivattyú
* Szintek: földszint + emelet
* Gépkocsibeállás: garázs + külső parkolóhely (10-20 m-re az ingatlantól)
* Terasz és óvott udvarrész
* Erkély a felső szinten, a hálószobákból közvetlen kijárattal
* A ház a garázsnál kapcsolódik az ikerfélhez, ezáltal teljesen szeparált, intimitása és önállósága megmaradt.
Választható belső elemek:
* Hideg- és melegburkolatok 7.000 Ft/m² árig
* Belső ajtók 100.000 Ft/db árig
* Szaniterek 600.000 Ft értékhatárig
Műszaki felszereltség:
* Korszerű hőszivattyús fűtési rendszer
* Hőszigetelt, 3 rétegű nyílászárók
* Elektromos redőny és klímaelőkészítés
* Igényes, minőségi burkolatok és szaniterek
Elhelyezkedés:
* Iskola: közvetlenül az utca túloldalán
* Bevásárlási lehetőségek: Market Centrál, Lidl, Aldi néhány perc autóval
* Busz- és vasútállomás gyalogosan is közel
* Budapest központja kb. 20 perc alatt elérhető autóval vagy tömegközlekedéssel
Miért érdemes megtekinteni?
* Kiváló lokáció Vecsés legkeresettebb része
* Modern, energiatakarékos technológia
* Magas műszaki tartalom
* Saját garázs, udvar és terasz
* Tökéletes választás családoknak és befektetőknek egyaránt
Ez az ikerházfél egy olyan új építésű otthon, ahol a modern technológia és a kénylem találkozik a kiváló elhelyezkedéssel. A kivitelezés magas minőségű, a ház építése folyamatban van, az átadás 2026 tavaszára várható.
Érdeklődés esetén több információval, alaprajzzal és személyes egyeztetési lehetőséggel állok rendelkezésre.
Ügyvédi közreműködés és hitelügyintézés egy helyen.