Eladó Ház- házrész
Hirdetéskód: 9187150
Duna House - Új-Lak Bázis Kft.
Ez a hirdetés megfelelhet a FIX 3%-os programnak.
Tudj meg többet a részletekről itt.
140 m2
ALAPTERÜLET4
SZOBASZÁMnincs megadva
ÉPÍTÉSnincs megadva
FŰTÉS- CSOK igénybe vehető nem
- Tetőtér beépíthető nem
- Építés éve 2001
- Klíma nem
- Szigetelt nem
A+++
A++
A+
A
B
C
D
E
F
G
H
I
Az ingatlan leírása
Exkluzív lehetőség Vecsés szívében a Kispatak Lakóparkban
Önálló, egyszintes családi ház saját kerttel, tökéletes harmóniában a kényelemmel és a természet közelségével.
Fedezze fel Vecsés egyik legkedveltebb, kertvárosi részét, ahol a csend, a biztonság és a modern életérzés találkozik! A Kispatak Lakóparkban egy gondosan tervezett, körbejárható, egyszintes családi ház várja új tulajdonosát .
Mindennapi kényelem és aktív élet egy karnyújtásnyira
Néhány perc sétára modern játszótér és futópálya kínál kikapcsolódást kicsiknek és nagyoknak. A közelben óvoda, iskola, orvosi rendelő (SZTK), gyógyszertár és bevásárlási lehetőségek állnak rendelkezésre, gépkocsival pedig mindössze 10 perc a Market Central bevásárlóközpont. Mindez egy nyugodt, csendes, családbarát lakóparkban, ahol az otthon valóban a béke szigete.
Tágas elegancia és sokoldalúság!
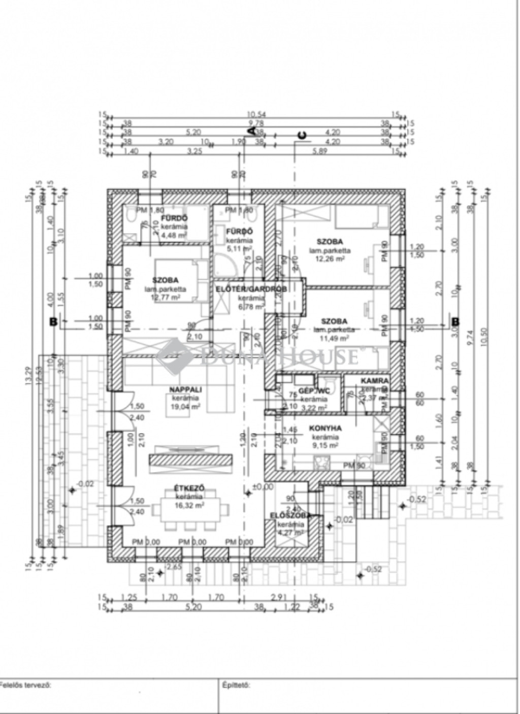
- 107,26 m² lakótér + 20 m² terasz + 63 m² pince
- 326 m² saját, körbekerített telek
- Előszoba, nappali + étkező + 3 szoba, konyha, kamra, 2 fürdő, 3 WC, gépészeti helyiség
- Udvari beálló 2 autó részére, ingyenes utcai parkolás
- Exkluzív lehetőség: a pince spa-részleggé vagy önálló lakássá alakítható /megbeszélés alapján/
Teljes körű felújítás 2025. decemberi átadás
- Új villamos- és vízvezeték-rendszer
- Prémium hő- és hangszigetelt nyílászárók redőnnyel
- Modern 24 kW-os cirkófűtés
- minden helyiségben hűtő-fűtő inverteres klíma
- Bramac tetőcserép
Ideális :
- fiatal pároknak - modern otthon, kiváló indulás
- kisgyermekes családoknak, idősebbeknek -biztonságos, nyugodt környék
- befektetőknek -keresett lokáció, gyorsan kiadható
- mindazoknak, akik értékelik a csendes kertvárosi hangulatot, de nem akarnak lemondani a városi kényelemről.
Ez az ingatlan nem csupán egy ház ez az Ön új életstílusa. Hívjon most, és fedezze fel személyesen!
Önálló, egyszintes családi ház saját kerttel, tökéletes harmóniában a kényelemmel és a természet közelségével.
Fedezze fel Vecsés egyik legkedveltebb, kertvárosi részét, ahol a csend, a biztonság és a modern életérzés találkozik! A Kispatak Lakóparkban egy gondosan tervezett, körbejárható, egyszintes családi ház várja új tulajdonosát .
Mindennapi kényelem és aktív élet egy karnyújtásnyira
Néhány perc sétára modern játszótér és futópálya kínál kikapcsolódást kicsiknek és nagyoknak. A közelben óvoda, iskola, orvosi rendelő (SZTK), gyógyszertár és bevásárlási lehetőségek állnak rendelkezésre, gépkocsival pedig mindössze 10 perc a Market Central bevásárlóközpont. Mindez egy nyugodt, csendes, családbarát lakóparkban, ahol az otthon valóban a béke szigete.
Tágas elegancia és sokoldalúság!
- 107,26 m² lakótér + 20 m² terasz + 63 m² pince
- 326 m² saját, körbekerített telek
- Előszoba, nappali + étkező + 3 szoba, konyha, kamra, 2 fürdő, 3 WC, gépészeti helyiség
- Udvari beálló 2 autó részére, ingyenes utcai parkolás
- Exkluzív lehetőség: a pince spa-részleggé vagy önálló lakássá alakítható /megbeszélés alapján/
Teljes körű felújítás 2025. decemberi átadás
- Új villamos- és vízvezeték-rendszer
- Prémium hő- és hangszigetelt nyílászárók redőnnyel
- Modern 24 kW-os cirkófűtés
- minden helyiségben hűtő-fűtő inverteres klíma
- Bramac tetőcserép
Ideális :
- fiatal pároknak - modern otthon, kiváló indulás
- kisgyermekes családoknak, idősebbeknek -biztonságos, nyugodt környék
- befektetőknek -keresett lokáció, gyorsan kiadható
- mindazoknak, akik értékelik a csendes kertvárosi hangulatot, de nem akarnak lemondani a városi kényelemről.
Ez az ingatlan nem csupán egy ház ez az Ön új életstílusa. Hívjon most, és fedezze fel személyesen!