Eladó Ház- házrész
Hirdetéskód: 9295700

Duna House - Új-Lak Bázis Kft.

Felújításhoz személyi kölcsönt keres? Kalkuláljon itt! →
FIX 3% Program

Ez a hirdetés megfelelhet a FIX 3%-os programnak.
Tudj meg többet a részletekről itt.

118.00 m2
ALAPTERÜLET
5
SZOBASZÁM
nincs megadva
ÉPÍTÉS
Egyéb fűtés
FŰTÉS
  • CSOK igénybe vehető nem
  • Tetőtér beépíthető nem
  • Építés éve 2026
  • Fűtés Egyéb fűtés
  • Klíma nem
  • Szigetelt nem
Energetikai besorolás: Nincs meghatározva
A+++
A++
A+
A
B
C
D
E
F
G
H
I

Az MBH Bank személyi kölcsön ajánlata

Fizetett hirdetés
1 millió Ft
6 évre
20 585 Ft/hó
THM: 14.5%
Részletek →
2 millió Ft
6 évre
41 169 Ft/hó
THM: 14.5%
Részletek →
3 millió Ft
6 évre
61 754 Ft/hó
THM: 14.5%
Részletek →

A tájékoztatás nem teljes körű és nem minősül ajánlattételnek.

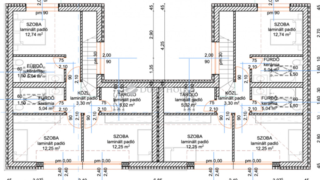
Az ingatlan leírása

Új építésű, modern ikerházfél eladó Vecsés csendes utcájábanVecsés nyugodt, családbarát részén, csendes mellékutcában kínálok megvételre egy új építésű, modern ikerház egyik felét, amely 2026 második felében kerül átadásra.Az ingatlan önálló telekrésszel, átgondolt elrendezéssel és korszerű, energiatakarékos műszaki tartalommal készül, ideális választás családok számára.Főbb adatokLakótér: 118 m²Terasz: 23 m²Telek: 360 m²Épülettípus: ikerházVárható átadás: 2026. II. félévElrendezésAz ikerház praktikus, jól élhető belső kialakítással készül:- tágas, világos amerikai konyhás nappaliétkező- több hálószoba- külön dolgozószoba- fürdőszoba + külön WC- háztartási helyiség / tároló- közvetlen kijárat a teraszon keresztül a kertbeA terek elrendezése ideális mindennapi családi élethez, otthoni munkavégzéshez és pihenéshez egyaránt.Műszaki tartalom, felszereltségAz ingatlan korszerű, költséghatékony és energiatakarékos megoldásokkal épül:15 cm vastag külső hőszigetelés30 cm vázkerámia falazat3 rétegű, hőszigetelt műanyag nyílászárókhőszivattyús fűtési rendszerpadlófűtés minden helyiségbensplit klímás hűtési lehetőségkorszerű elektromos hálózatmegújuló energia arány hőszivattyúval biztosítvaVálasztható belső elemek:* Hideg- és melegburkolatok 8.000 Ft/m² árig* Belső ajtók 110.000 Ft/db árigKültér, parkolássaját kertkapcsolatnagy teraszfedett gépkocsi-beálló az ingatlanhoz tartozikElhelyezkedésAz ingatlan Vecsés belterületén, csendes lakóövezetben található, rendezett környezetben.A település infrastruktúrája kiváló: üzletek, iskola, óvoda, egészségügyi ellátás és tömegközlekedés könnyen elérhető, Budapest gyorsan megközelíthető.ÖsszegzésEz az új építésű ikerházfél ideális választás azok számára, akik:modern, energiatakarékos otthont keresnekfontos számukra a nyugodt környezetkerttel és terasszal rendelkező házra vágynakhosszú távon is értékálló ingatlant szeretnénekAmennyiben hirdetésem felkeltette érdeklődését, keressen bizalommal. Hitelügyintézésben is segítünk.

Térkép

Ingatlan adásvétel ügyvédi díja
584 550 Ft
a hirdetésben szereplő ár alapján
  • A vételár 0,45%-a
  • Szerződéscsomag teljeskörű képviselettel
  • Ingyenes tulajdoni lap ellenőrzés
  • Az ÁFA-t már tartalmazza
Érdekel az ajánlat →
A tájékoztatás nem teljes körű és nem minősül ajánlattételnek. Minimum díj: 150 000 Ft, maximum díj: 600 000 Ft. A díj kizárólag lakóingatlan adásvételére vonatkozik.

A hirdető elérhetősége

Duna House - Új-Lak Bázis Kft.

Káplár Ildikó
+36 30 468