Eladó Ház- házrész
Hirdetéskód: 9267923
Duna House - Új-Lak Bázis Kft.
118.00 m2
ALAPTERÜLET5
SZOBASZÁMnincs megadva
ÉPÍTÉSnincs megadva
FŰTÉS- CSOK igénybe vehető nem
- Tetőtér beépíthető nem
- Építés éve 2026
- Klíma nem
- Szigetelt nem
A+++
A++
A+
A
B
C
D
E
F
G
H
I
Az ingatlan leírása
Új építésű, modern ikerházfél eladó Vecsés csendes utcájában
Vecsés nyugodt, családbarát részén, csendes mellékutcában kínálok megvételre egy új építésű, modern ikerház egyik felét, amely 2026 második felében kerül átadásra.
Az ingatlan önálló telekrésszel, átgondolt elrendezéssel és korszerű, energiatakarékos műszaki tartalommal készül, ideális választás családok számára.
Főbb adatok
Lakótér: 118 m²
Terasz: 23 m²
Telek: 360 m²
Épülettípus: ikerház
Várható átadás: 2026. II. félév
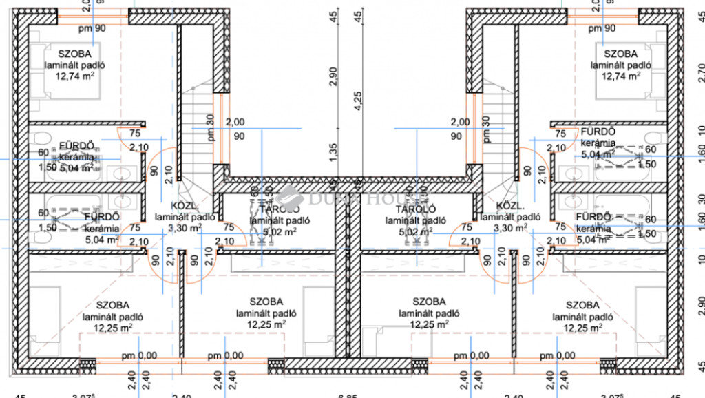
Elrendezés
Az ikerház praktikus, jól élhető belső kialakítással készül:
- tágas, világos amerikai konyhás nappaliétkező
- több hálószoba
- külön dolgozószoba
- fürdőszoba + külön WC
- háztartási helyiség / tároló
- közvetlen kijárat a teraszon keresztül a kertbe
A terek elrendezése ideális mindennapi családi élethez, otthoni munkavégzéshez és pihenéshez egyaránt.
Műszaki tartalom, felszereltség
Az ingatlan korszerű, költséghatékony és energiatakarékos megoldásokkal épül:
15 cm vastag külső hőszigetelés
30 cm vázkerámia falazat
3 rétegű, hőszigetelt műanyag nyílászárók
hőszivattyús fűtési rendszer
padlófűtés minden helyiségben
split klímás hűtési lehetőség
korszerű elektromos hálózat
megújuló energia arány hőszivattyúval biztosítva
Választható belső elemek:
* Hideg- és melegburkolatok 8.000 Ft/m² árig
* Belső ajtók 110.000 Ft/db árig
Kültér, parkolás
saját kertkapcsolat
nagy terasz
fedett gépkocsi-beálló az ingatlanhoz tartozik
Elhelyezkedés
Az ingatlan Vecsés belterületén, csendes lakóövezetben található, rendezett környezetben.
A település infrastruktúrája kiváló: üzletek, iskola, óvoda, egészségügyi ellátás és tömegközlekedés könnyen elérhető, Budapest gyorsan megközelíthető.
Összegzés
Ez az új építésű ikerházfél ideális választás azok számára, akik:
modern, energiatakarékos otthont keresnek
fontos számukra a nyugodt környezet
kerttel és terasszal rendelkező házra vágynak
hosszú távon is értékálló ingatlant szeretnének
Amennyiben hirdetésem felkeltette érdeklődését, keressen bizalommal. Hitelügyintézésben is segítünk.
Vecsés nyugodt, családbarát részén, csendes mellékutcában kínálok megvételre egy új építésű, modern ikerház egyik felét, amely 2026 második felében kerül átadásra.
Az ingatlan önálló telekrésszel, átgondolt elrendezéssel és korszerű, energiatakarékos műszaki tartalommal készül, ideális választás családok számára.
Főbb adatok
Lakótér: 118 m²
Terasz: 23 m²
Telek: 360 m²
Épülettípus: ikerház
Várható átadás: 2026. II. félév
Elrendezés
Az ikerház praktikus, jól élhető belső kialakítással készül:
- tágas, világos amerikai konyhás nappaliétkező
- több hálószoba
- külön dolgozószoba
- fürdőszoba + külön WC
- háztartási helyiség / tároló
- közvetlen kijárat a teraszon keresztül a kertbe
A terek elrendezése ideális mindennapi családi élethez, otthoni munkavégzéshez és pihenéshez egyaránt.
Műszaki tartalom, felszereltség
Az ingatlan korszerű, költséghatékony és energiatakarékos megoldásokkal épül:
15 cm vastag külső hőszigetelés
30 cm vázkerámia falazat
3 rétegű, hőszigetelt műanyag nyílászárók
hőszivattyús fűtési rendszer
padlófűtés minden helyiségben
split klímás hűtési lehetőség
korszerű elektromos hálózat
megújuló energia arány hőszivattyúval biztosítva
Választható belső elemek:
* Hideg- és melegburkolatok 8.000 Ft/m² árig
* Belső ajtók 110.000 Ft/db árig
Kültér, parkolás
saját kertkapcsolat
nagy terasz
fedett gépkocsi-beálló az ingatlanhoz tartozik
Elhelyezkedés
Az ingatlan Vecsés belterületén, csendes lakóövezetben található, rendezett környezetben.
A település infrastruktúrája kiváló: üzletek, iskola, óvoda, egészségügyi ellátás és tömegközlekedés könnyen elérhető, Budapest gyorsan megközelíthető.
Összegzés
Ez az új építésű ikerházfél ideális választás azok számára, akik:
modern, energiatakarékos otthont keresnek
fontos számukra a nyugodt környezet
kerttel és terasszal rendelkező házra vágynak
hosszú távon is értékálló ingatlant szeretnének
Amennyiben hirdetésem felkeltette érdeklődését, keressen bizalommal. Hitelügyintézésben is segítünk.