Eladó Ház- házrész
Hirdetéskód: 9276128

GDN Ingatlanhálózat - Home&Feeling

Felújításhoz személyi kölcsönt keres? Kalkuláljon itt! →
FIX 3% Program

Ez a hirdetés megfelelhet a FIX 3%-os programnak.
Tudj meg többet a részletekről itt.

86.00 m2
ALAPTERÜLET
4
SZOBASZÁM
nincs megadva
ÉPÍTÉS
Gáz (cirkó)
FŰTÉS
  • CSOK igénybe vehető nem
  • Tetőtér beépíthető nem
  • Fűtés Gáz (cirkó)
  • Klíma nem
  • Szigetelt nem
Energetikai besorolás: Nincs meghatározva
A+++
A++
A+
A
B
C
D
E
F
G
H
I

Az MBH Bank személyi kölcsön ajánlata

Fizetett hirdetés
1 millió Ft
6 évre
20 585 Ft/hó
THM: 14.5%
Részletek →
2 millió Ft
6 évre
41 169 Ft/hó
THM: 14.5%
Részletek →
3 millió Ft
6 évre
61 754 Ft/hó
THM: 14.5%
Részletek →

A tájékoztatás nem teljes körű és nem minősül ajánlattételnek.

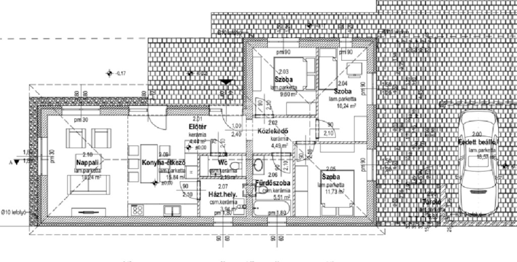
Az ingatlan leírása

Dinamikusan fejlődő településen Vasszécsenyben, nyugodt környéken osztott telken családiházak eladók. A jól átgondolt tervezésnek köszönhetően a házak fedett gépkocsibeállókkal érintkeznek. Az ingatlanok magas műszaki tartalommal épülnek. A sávalapra épülő lakóegységek Porotherm téglából készülnek, vakolt felületekkel. A tető héjazata Bramac Római Novo cseréppel történik. Három rétegű nyílászárói fokozottan hang-és hőszigetreltek, motoros aluredőnyökkel felszereltek. Homlokzatára Austrotherm EPS hőszigetelő rendszer kerül, 15 cm vastagsággal. Födémere 30 cm szigetelést terveztek. Fűtéséről, meleg vízellátásáról kondenzációs gázkazán gondoskodik, padlófűtéses hőleadással. Az ingatlan nappaliában hűtő-fűtő klíma gondoskodik a kellemes hőmérsékletről. Elektromos ellátottsága 3x25 Amperrel történik. Az ingatlanokat vízlágyítókkal is felszerelik. A házak 86 m2 nagyságúak, 15 m2 terasszal. Három hálószoba + nappali kialakításúak. Az utcafronti házhoz 330 m2 saját kert tartozik. A hátsó ingatlan 755 m2-es telekkel rendelkezik. Térkövezés bizonyos hányada, tereprendezés a vételár részét képezi. A Beruházó rugalmasságának köszönhetően belső módosításokra van lehetőség. ...TOVÁBBI, TÖBBEZRES INGATLAN KÍNÁLAT: - GDN azonosító: 392609

Térkép

Ingatlan adásvétel ügyvédi díja
382 500 Ft
a hirdetésben szereplő ár alapján
  • A vételár 0,45%-a
  • Szerződéscsomag teljeskörű képviselettel
  • Ingyenes tulajdoni lap ellenőrzés
  • Az ÁFA-t már tartalmazza
Érdekel az ajánlat →
A tájékoztatás nem teljes körű és nem minősül ajánlattételnek. Minimum díj: 150 000 Ft, maximum díj: 600 000 Ft. A díj kizárólag lakóingatlan adásvételére vonatkozik.

A hirdető elérhetősége

GDN Ingatlanhálózat - Home&Feeling

Berkéné Szűcs Judit
+36 70 575