Eladó Ház- házrész
Hirdetéskód: 9197189

-

Felújításhoz személyi kölcsönt keres? Kalkuláljon itt! →
FIX 3% Program

Ez a hirdetés megfelelhet a FIX 3%-os programnak.
Tudj meg többet a részletekről itt.

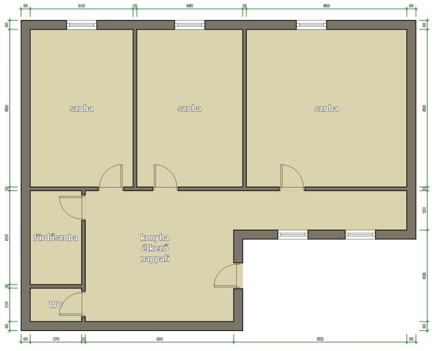
101.00 m2
ALAPTERÜLET
3
SZOBASZÁM
Tégla
ÉPÍTÉS
Gáz (cirkó)
FŰTÉS
  • Tetőtér beépíthető nem
  • Kilátás Utcai
  • Tájolás Délkelet
  • Ingatlan komfort Összkomfortos
  • Parkolási lehetőség Udvari beálló
  • Építés éve 1957
  • Fűtés Gáz (cirkó)
  • Építőanyag Tégla
  • Klíma nem
  • Szigetelt nem
  • Bútorozott nem
  • Víz telken belül
  • Csatorna nincs
  • Gáz telken belül
  • Villany telken belül

Energetikai besorolás: F

A+++
A++
A+
A
B
C
D
E
F
G
H
I

Az MBH Bank személyi kölcsön ajánlata

Fizetett hirdetés
1 millió Ft
6 évre
20 585 Ft/hó
THM: 14.5%
Részletek →
2 millió Ft
6 évre
41 169 Ft/hó
THM: 14.5%
Részletek →
3 millió Ft
6 évre
61 754 Ft/hó
THM: 14.5%
Részletek →

A tájékoztatás nem teljes körű és nem minősül ajánlattételnek.

Az ingatlan leírása

Vasegerszeg település főutcájában található a részlegesen felújított lakóház. A felújítás során a tetőszerkezetet, héjazatot, valamint az összes közművet kicserélték. A nyílászárók cseréje is megtörtént és megoldották a ház újra szigetelését. A lakóház a nagy telek miatt több hasznosítási lehetőséggel rendelkezik, van lehetőség állattartásra, akár kisebb vállalkozás indítására. 


Teljeskörű Otthon Start, Csok, Csok+ Hitel, Piaci Hitel ügyintézéssel! Ne feledje, amennyiben Csok-ot igényel, az ingatlanvásárlása illetékmentes!


Video: https://youtu.be/RRt2evDlr2A 

Térkép

A hirdető elérhetősége

S1Ingatlan

Csuka Milán
+36 30 217