Eladó Ház- házrész
Hirdetéskód: 9221790
Openhouse Monor
Ez a hirdetés megfelelhet a FIX 3%-os programnak.
Tudj meg többet a részletekről itt.
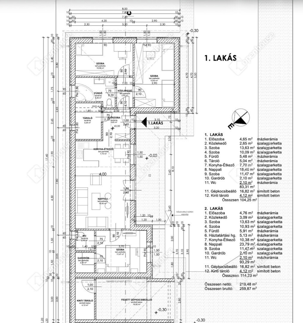
83.00 m2
ALAPTERÜLET4
SZOBASZÁMnincs megadva
ÉPÍTÉSnincs megadva
FŰTÉS- CSOK igénybe vehető nem
- Tetőtér beépíthető nem
- Építés éve 2026
- Klíma nem
- Szigetelt nem
A+++
A++
A+
A
B
C
D
E
F
G
H
I
Az ingatlan leírása
Az Openhouse Monor Ingatlaniroda kínálatában eladó a #178179 hivatkozási számú vasadi családi ház.
Eladásra kínálunk egy 83,31 m²-es, új építésű, 3 szoba + nappalis ikerházfelet Vasad egyik legújabb, csendes lakónegyedében.
Az ingatlanhoz saját 330 m²-es kert, gépkocsi-beálló, valamint külön kinti tároló is tartozik.
A ház modern, energiatakarékos kivitelezésű, A++ energetikai besorolású.
- Főbb műszaki jellemzők:
Hőszivattyús fűtés (padlófűtés minden helyiségben)
3 rétegű, hő- és hangszigetelt nyílászárók
2 fürdőszoba
Saját gépkocsi-beálló + tároló
- Kiváló elhelyezkedés, teljes infrastruktúra:
Bölcsőde, óvoda, kisbolt és buszmegálló 10 perc sétán belül
Könnyen megközelíthető: 4-es főút, M4, 405-ös és M5 autóút
Budapest mindössze 30 perc alatt elérhető
A kivitelező megbízható partner, akivel több sikeres projektet valósítottunk már meg – referenciák személyesen is megtekinthetők
Csendes, barátságos környezet, modern otthon, alacsony rezsivel – ideális választás családok számára!
Ha felkeltette érdeklődését ez az eladó vasadi családi ház, vagy bármely más családi ház és bővebb információt szeretne, keressen bizalommal.Hivatkozási szám: #178179
Az Openhouse Monor Ingatlaniroda tagjaként várom Önt az országos hálózatunk teljes kínálatával.
A családi ház vásárláshoz hitelt igényelne? Ingyenes hitelközvetítéssel segít Önnek bankfüggetlen hitelszakértőnk.
További szolgáltatásainkkal (pl. értékbecslés, energetikai tanúsítvány, jogi háttér) is segítjük Önt a vásárlásban.
Az otthon érték. Az ingatlan üzlet.
Eladásra kínálunk egy 83,31 m²-es, új építésű, 3 szoba + nappalis ikerházfelet Vasad egyik legújabb, csendes lakónegyedében.
Az ingatlanhoz saját 330 m²-es kert, gépkocsi-beálló, valamint külön kinti tároló is tartozik.
A ház modern, energiatakarékos kivitelezésű, A++ energetikai besorolású.
- Főbb műszaki jellemzők:
Hőszivattyús fűtés (padlófűtés minden helyiségben)
3 rétegű, hő- és hangszigetelt nyílászárók
2 fürdőszoba
Saját gépkocsi-beálló + tároló
- Kiváló elhelyezkedés, teljes infrastruktúra:
Bölcsőde, óvoda, kisbolt és buszmegálló 10 perc sétán belül
Könnyen megközelíthető: 4-es főút, M4, 405-ös és M5 autóút
Budapest mindössze 30 perc alatt elérhető
A kivitelező megbízható partner, akivel több sikeres projektet valósítottunk már meg – referenciák személyesen is megtekinthetők
Csendes, barátságos környezet, modern otthon, alacsony rezsivel – ideális választás családok számára!
Ha felkeltette érdeklődését ez az eladó vasadi családi ház, vagy bármely más családi ház és bővebb információt szeretne, keressen bizalommal.Hivatkozási szám: #178179
Az Openhouse Monor Ingatlaniroda tagjaként várom Önt az országos hálózatunk teljes kínálatával.
A családi ház vásárláshoz hitelt igényelne? Ingyenes hitelközvetítéssel segít Önnek bankfüggetlen hitelszakértőnk.
További szolgáltatásainkkal (pl. értékbecslés, energetikai tanúsítvány, jogi háttér) is segítjük Önt a vásárlásban.
Az otthon érték. Az ingatlan üzlet.