Eladó Ház- házrész
Hirdetéskód: 9292149
Duna House - Új-Lak Bázis Kft.
Felújításhoz személyi kölcsönt keres? Kalkuláljon itt! →89.00 m2
ALAPTERÜLET4
SZOBASZÁMnincs megadva
ÉPÍTÉSnincs megadva
FŰTÉS- CSOK igénybe vehető nem
- Tetőtér beépíthető nem
- Építés éve 2026
- Klíma nem
- Szigetelt nem
A+++
A++
A+
A
B
C
D
E
F
G
H
I
Az ingatlan leírása
ÚJ ÉPÍTÉSŰ UTCAI NÉZETŰ IKERHÁZFÉL VASADON SAJÁT TELEKKEL, MODERN MŰSZAKI TARTALOMMAL
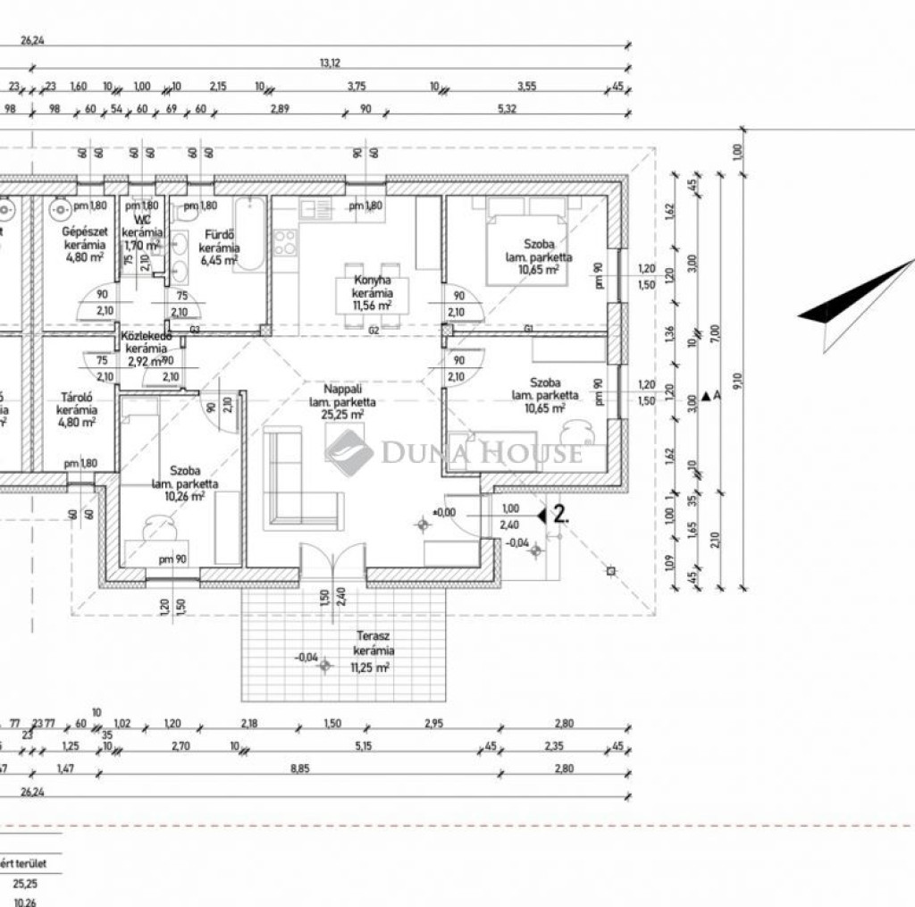
Vasad dinamikusan fejlődő, újépítésű részén kínálunk megvételre egy nettó 89 m²-es, nappali + 3 hálószobás ikerházfelet.
Az ingatlan praktikus elrendezésű, világos terekkel és jól kihasználható helyiségekkel rendelkezik.
Tágas, amerikai konyhás nappali
3 külön nyíló hálószoba
Fürdőszoba
Külön WC
Tároló
Külön gépészeti helyiség
Saját, kb. 500 m²-es privát telek!!
Az ikerházfelek teljesen elszeparáltak, csak a tárolóknál kapcsolódnak, így nincs közös lakótéri fal. A két ingatlan külön kerítéssel leválasztva épül, így valóban önálló otthon érzetét nyújtja.
Az ingatlanhoz saját, murvával tömörített gépkocsi-beálló tartozik.
Műszaki tartalom:
Hőszivattyús fűtési rendszer
Padlófűtés a helyiségekben
Fürdőszobában törölközőszárítós radiátor
Split klíma
30 cm Porotherm főfalazat, rajta 15 cm grafitos hőszigetelés
10 cm válaszfalak
Hagyományos fa tetőszerkezet, cserépfedéssel (kakaóbarna)
Horganyzott bádogos szerkezetek, ereszcsatornák
3 rétegű, hőszigetelt üvegezésű műanyag nyílászárók
Választható burkolatok és belső elemek:
A vételár az alábbi értékhatárig tartalmazza a burkolatokat
Hidegburkolat: 5.500 Ft/m²-ig
Melegburkolat: 6.000 Ft/m²-ig
Beltéri ajtók: 70.000 Ft/db-ig
Így új otthonát részben még saját ízlésére formálhatja.
Ne maradjon le róla! Keressen bizalommal, akár hétvégén is!
Várható átadás: 2026 szeptember
Amennyiben hitelre lenne szüksége, kiváló, szakmailag felkészült kollégánkkal a Credipasstól ingyenes és bankfüggetlen szaktanácsadás keretén belül biztosan megtalálják a lehető legkedvezőbb, személyre szabott konstrukciót. További kérdés esetén állok szíves rendelkezésükre hétvégén is, a megadott elérhetőségek bármelyikén.
Vasad dinamikusan fejlődő, újépítésű részén kínálunk megvételre egy nettó 89 m²-es, nappali + 3 hálószobás ikerházfelet.
Az ingatlan praktikus elrendezésű, világos terekkel és jól kihasználható helyiségekkel rendelkezik.
Tágas, amerikai konyhás nappali
3 külön nyíló hálószoba
Fürdőszoba
Külön WC
Tároló
Külön gépészeti helyiség
Saját, kb. 500 m²-es privát telek!!
Az ikerházfelek teljesen elszeparáltak, csak a tárolóknál kapcsolódnak, így nincs közös lakótéri fal. A két ingatlan külön kerítéssel leválasztva épül, így valóban önálló otthon érzetét nyújtja.
Az ingatlanhoz saját, murvával tömörített gépkocsi-beálló tartozik.
Műszaki tartalom:
Hőszivattyús fűtési rendszer
Padlófűtés a helyiségekben
Fürdőszobában törölközőszárítós radiátor
Split klíma
30 cm Porotherm főfalazat, rajta 15 cm grafitos hőszigetelés
10 cm válaszfalak
Hagyományos fa tetőszerkezet, cserépfedéssel (kakaóbarna)
Horganyzott bádogos szerkezetek, ereszcsatornák
3 rétegű, hőszigetelt üvegezésű műanyag nyílászárók
Választható burkolatok és belső elemek:
A vételár az alábbi értékhatárig tartalmazza a burkolatokat
Hidegburkolat: 5.500 Ft/m²-ig
Melegburkolat: 6.000 Ft/m²-ig
Beltéri ajtók: 70.000 Ft/db-ig
Így új otthonát részben még saját ízlésére formálhatja.
Ne maradjon le róla! Keressen bizalommal, akár hétvégén is!
Várható átadás: 2026 szeptember
Amennyiben hitelre lenne szüksége, kiváló, szakmailag felkészült kollégánkkal a Credipasstól ingyenes és bankfüggetlen szaktanácsadás keretén belül biztosan megtalálják a lehető legkedvezőbb, személyre szabott konstrukciót. További kérdés esetén állok szíves rendelkezésükre hétvégén is, a megadott elérhetőségek bármelyikén.