Eladó Ház- házrész
Hirdetéskód: 9242660
H &K Ingatlaniroda
Felújításhoz személyi kölcsönt keres? Kalkuláljon itt! →
Ez a hirdetés megfelelhet a FIX 3%-os programnak.
Tudj meg többet a részletekről itt.
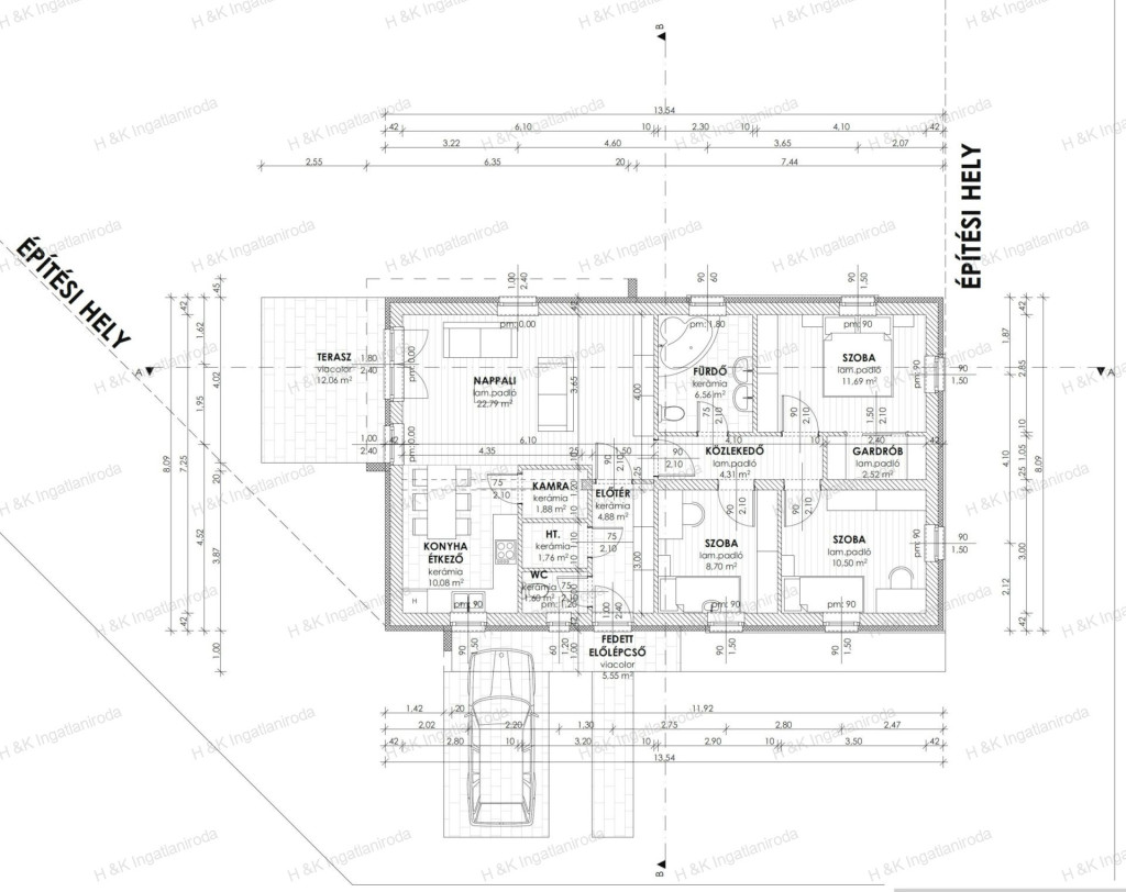
95.00 m2
ALAPTERÜLET4
SZOBASZÁMnincs megadva
ÉPÍTÉSnincs megadva
FŰTÉS- Építés éve 2026
A+++
A++
A+
A
B
C
D
E
F
G
H
I
Az ingatlan leírása
Kedves Otthonkereső!!
Vácrátót újonnan kialakult lakóparkjában új építésű családi házak eladók!!!
CÉGES ÉPÍTKEZÉS, a 2024-től aktuális állami támogatások valamint kedvezményes, kamattámogatott hitelek felvehetőek – akár a 3%-os OTTHON START hitel, CSOK+, babaváró is igényelhető, az ügyintézésben díjmentesen segítünk!
Az építő munkájára jellemző a megbízhatóság és igényesség, leinformálható, referencia házai megtekinthetők.
A házak bruttó 95 nm területűek, nettó lakótér 88 nm + 12 nm terasz, amerikai-konyhás nappali + 3 szobás elosztással, kiemelkedő műszaki tartalommal, választható, nagy telekrészekkel kerülnek kialakításra.
A házak építése folyamatos, ezáltal van lehetőség kisebb belső kialakítási változtatásokra.
A házak külső színét, a kerítés színét, valamint a térkövek színét-mintáját a vevő választhatja ki.
Rövid műszaki tartalom:
A házak téglaépítésűek, grafitos hőszigetelési rendszerrel ellátva, beton cserépfedéssel.
A nyílászárók 5 légkamrás, fehér színű, műanyag szerkezetűek, belül fehér műanyag ablakpárkánnyal, kívül műkő párkánnyal. A riasztó előkészítés, és elektromos redőny előkészítés kialakításra kerül.
A padlófűtés hőszivattyús rendszerről üzemel, a meleg vízellátást bojlerrel biztosítja.
A ház 1x32 amper (ami bővíthető) terhelhetőséggel ellátott elektromos hálózattal készül, riasztó, internet, kábel tv, napelem és elektromos autótöltés előkészítéssel.
A házak körüli járdák, autóbeálló viacoloros burkolással kerül kialakításra, a kerítés utcafonton épített betonkerítés, oldalsó kerítések beton pilléres, dróthálós kerítés.
Portfóliónkban számos, különböző paraméterekkel rendelkező új építésű ingatlan megtalálható Vácrátóton és környékén, az azonnal beköltözhető ingatlanoktól kezdve, a még szabadon alakítható, saját igényre tervezhető lakásokig. Keressen bizalommal és segítünk megtalálni az elképzeléseinek megfelelő otthonát!
A látványterv a lehetséges kialakítást és hangulatot szemlélteti. A tényleges megvalósítás az alaprajz és műszaki tartalom szerint történik. A berendezett kép csak egy látványterv, hogy könnyebb legyen elképzelni a tér lehetőségeit – az ingatlan a valóságban bútorozatlan.
Ára: 86.500.000.- Ft
Azonosító: 4586/8
Vácrátót újonnan kialakult lakóparkjában új építésű családi házak eladók!!!
CÉGES ÉPÍTKEZÉS, a 2024-től aktuális állami támogatások valamint kedvezményes, kamattámogatott hitelek felvehetőek – akár a 3%-os OTTHON START hitel, CSOK+, babaváró is igényelhető, az ügyintézésben díjmentesen segítünk!
Az építő munkájára jellemző a megbízhatóság és igényesség, leinformálható, referencia házai megtekinthetők.
A házak bruttó 95 nm területűek, nettó lakótér 88 nm + 12 nm terasz, amerikai-konyhás nappali + 3 szobás elosztással, kiemelkedő műszaki tartalommal, választható, nagy telekrészekkel kerülnek kialakításra.
A házak építése folyamatos, ezáltal van lehetőség kisebb belső kialakítási változtatásokra.
A házak külső színét, a kerítés színét, valamint a térkövek színét-mintáját a vevő választhatja ki.
Rövid műszaki tartalom:
A házak téglaépítésűek, grafitos hőszigetelési rendszerrel ellátva, beton cserépfedéssel.
A nyílászárók 5 légkamrás, fehér színű, műanyag szerkezetűek, belül fehér műanyag ablakpárkánnyal, kívül műkő párkánnyal. A riasztó előkészítés, és elektromos redőny előkészítés kialakításra kerül.
A padlófűtés hőszivattyús rendszerről üzemel, a meleg vízellátást bojlerrel biztosítja.
A ház 1x32 amper (ami bővíthető) terhelhetőséggel ellátott elektromos hálózattal készül, riasztó, internet, kábel tv, napelem és elektromos autótöltés előkészítéssel.
A házak körüli járdák, autóbeálló viacoloros burkolással kerül kialakításra, a kerítés utcafonton épített betonkerítés, oldalsó kerítések beton pilléres, dróthálós kerítés.
Portfóliónkban számos, különböző paraméterekkel rendelkező új építésű ingatlan megtalálható Vácrátóton és környékén, az azonnal beköltözhető ingatlanoktól kezdve, a még szabadon alakítható, saját igényre tervezhető lakásokig. Keressen bizalommal és segítünk megtalálni az elképzeléseinek megfelelő otthonát!
A látványterv a lehetséges kialakítást és hangulatot szemlélteti. A tényleges megvalósítás az alaprajz és műszaki tartalom szerint történik. A berendezett kép csak egy látványterv, hogy könnyebb legyen elképzelni a tér lehetőségeit – az ingatlan a valóságban bútorozatlan.
Ára: 86.500.000.- Ft
Azonosító: 4586/8